La cucina al piano terra di una costruzione unifamiliare affaccia su un loggiato. Qual è la disposizione migliore per l’arredo? Quesito di Franco P.
- progetto cucina proposto dallo showroom Misura Casa di Milano, via de Amicis 12.
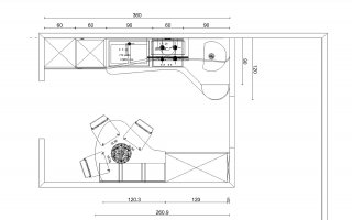
Per arredare la cucina è stata scelta una composizione su due lati: una che termina con un elemento angolare, che sfrutta al meglio lo spazio vicino alla portafinestra; l’altra con una colonna dispensa, pensili a giorno e un piano snack dalla forma stondata che si raccorda con l’armadiatura.
Il progetto è stato realizzato utilizzando un modello di cucina che permette di personalizzare molto l’ambiente, anche in locali di dimensioni contenute o dal semplice sviluppo lineare. I mobili scelti fanno parte di un sistema versatile che può essere adatto ai piccoli spazi come anche a quelli di grandi dimensioni. La lunghezza del locale comunque permette di avere tutte le funzioni operative su una parete, mentre su quella di fronte viene soddisfatta la necessità di aumentare il volume dedicato al contenere.
Il top è stato disegnato con una sagomatura che percorre in modo continuo tutta la cucina creando un gioco di concavità e convessità che favorisce un utilizzo estremamente ergonomico della zona di lavoro, con il vantaggio di una maggiore valorizzazione dello spazio. A parità di dimensioni in lunghezza inoltre si guadagnano centimetri utili rispetto a un piano lineare e si sfrutta il centro stanza altrimenti inutilizzato. Anche in altezza si asseconda l’esigenza di moltiplicare la superficie d’appoggio con una doppia mensola che integra una luce a barre su misura (multiled semincassata) e con un girello angolare portaoggetti dotato di due ripiani in cristallo, per avere tutto a portata di mano. Anche le basi sporgenti sono attrezzate con ampie “tasche” portaoggetti. La finitura scelta alterna due colori ed è adatta a un ambiente giovane e moderno, per un maggior dinamismo estetico.

Progetto realizzato con la cucina Skyline 2.0 di Snaidero, design Lucci e Orlandini. Nel sito https://www.snaidero.it è attualmente disponibile il configuratore che permette a tutti di sbizzarrirsi nelle scelte dei materiali, colori e composizioni.

La cucina del progetto è la Skyline 2.0 di Snaidero, un sistema versatile adatto a piccoli spazi come ad ambienti di grandi dimensioni, sintesi di un design pulito e funzionale, fondato su ergonomia, design e tecnologia. Di fronte alla zona operativa un tavolo dal profilo stondato crea un comodo spazio per il pranzo agevolando i movimenti nello spazio di passaggio.





































