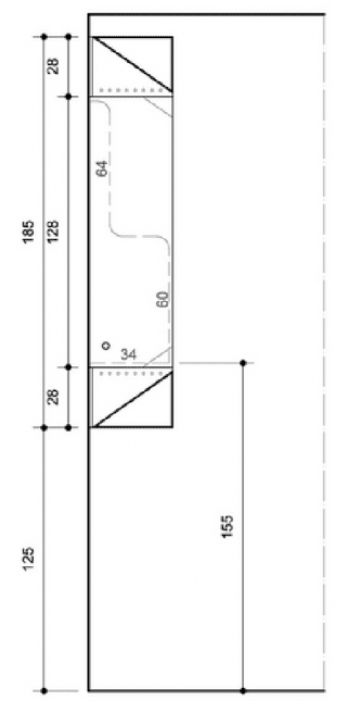
Nascondere il contatore è il problema sottoposto questa volta dalla nostra lettrice Anna, che ci ha inviato una foto. Come rendere invisibile un contatore del gas, che deve restare facilmente ispezionabile, tubi compresi? Nella soluzione che proponiamo (vedi sotto), ci sono due lampade fisse agli estremi, che definiscono un volume centrale “vuoto”, mascherato da un carter: questi sono gli elementi che danno forma a un elemento d’arredo ad angolo. Le tubazioni, il contatore del gas ed i collegamenti elettrici sono alloggiati in uno spazio libero e sono ispezionabili perché le pannellature sono apribili, incernierate al muro e all’occorrenza rimovibili. Il materiale utilizzato è il legno verniciato lucido bianco per la parte centrale ed opaco grigio per gli apparecchi illuminanti. All’interno dei prismi fissati al muro e con due facce triangolari vetrate, ci sono lampade a led che emanano luce d’effetto verso l’alto e verso il basso.

La foto di Anna è stata completata con librerie Mimì e tavolino della serie Flowers di Lema, lampada da parete Potence di Vitra, carta da parati Peacock di Wall&Decò.










































