In una casa di metratura contenuta come dividere la zona giorno? Alla nostra lettrice Marilena Lucia piacerebbe separare cucina e soggiorno con un muro attrezzato con camino a gas. Ecco il progetto preparato per lei dal nostro architetto Stefano Gatti – Bellagio, Como – stefano@stefanogatti.eu
Negli appartamenti di nuova formazione capita sempre più spesso di vedere che la sala da pranzo, il soggiorno e la cucina condividono un unico locale della casa. Questa soluzione può andare bene per appartamenti di taglio medio/piccolo ma, quando le dimensioni lo consentono, è sempre preferibile poter dividere, almeno visivamente, la zona cottura dalla zona pranzo/soggiorno: in presenza di ospiti non ci si dovrà così preoccupare di tenere la cucina in ordine mentre si prepara la cena e sarà più facile evitare che i cattivi odori vadano ad infastidire i fruitori della zona soggiorno.
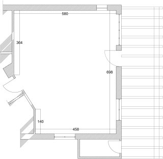
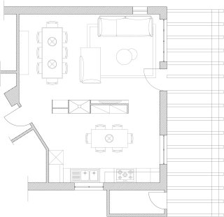
Nel caso proposto dalla lettrice, si è cercato di dividere uno spazio di oltre 36 metri quadri ricavando una zona cottura con un piccolo tavolo per i pranzi in famiglia ed una zona giorno attrezzata con divani, poltrone ed una tavolo più grande adatto ad ospitare un maggior numero di persone.
Tuttavia la divisione è stata fatta in modo tale da non separare completamente le diverse zone creando due stanze indipendenti ma, tramite l’uso di un divisorio centrale attrezzato, si è cercato di mantenere un collegamento tra le due aree. Su richiesta della lettrice è stato inserito nella parete un camino bifacciale, elemento che crea un ulteriore collegamento tra i due locali.
Il divisorio centrale è stato studiato in modo tale da risultare sfruttabile da entrambi i lati: sul lato giorno è stata creata una nicchia nella quale appendere un televisore a schermo piatto: alla base è stato creato un mobile contenitore basso. Accanto alla nicchia per il televisore è stato collocato il camino bifacciale; è stata data maggior importanza all’area camino rivestendola con una lamiera color grigio antracite: lo stesso materiale riveste anche la nicchia adibita a legnaia che si trova accanto al camino bifacciale. Oltre a rappresentare una scelta estetica, il rivestimento in lamiera serve a risolvere il problema di macchie di fuliggine che inevitabilmente si verrebbero a formare su di una superficie di colore chiaro.
Il susseguirsi di nicchie di diversa profondità ha permesso di sfruttare la parete divisoria anche sul lato che affaccia sulla cucina. Dietro la parete sulla quale è alloggiata la televisione sono state create due profonde armadiature nelle quali è possibile riporre stoviglie, pentole e piccoli elettrodomestici. Il retro della zona legnaia è stato sfruttato invece con scaffalature. La presenza del camino anche in cucina porta alla memoria le cucine dei nostri nonni e dona calore ad una stanza che sempre più raramente viene considerata una stanza “di servizio”.
Per l’installazione del camino è comunque necessario verificare la possibilità di un collegamento alla canna fumaria. In mancanza di un possibile collegamento è possibile installare un camino a bioetanolo: va ricordato che, pur non avendo bisogno di una canna fumaria, in presenza di un caminetto a bioetanolo è necessario aerare correttamente il locale nel quale è installato. Il caminetto a bioetanolo svolge poi una funzione quasi puramente estetica.










































