Contenuti trattati
Arredare il soggiorno con la cucina a vista è una necessita di molti. Anche se esistono criteri comuni da seguire, ogni caso è a sé, perché al di là dei gusti personali, delle necessità e dei desideri, ci sono elementi vincolanti: la forma della pianta, la posizione degli attacchi e di porte e finestre, e ovviamente le dimensioni.
Il progetto che proponiamo risponde al quesito della lettrice, Elisabetta L. che ci ha chiesto un suggerimento per arredare, definendo meglio gli spazi, l’openspace che accoglie cucina e soggiorno. Vorrebbe anche un’idea per caratterizzare l’ingresso senza interventi murari. Il pavimento è in gres effetto parquet in tinta miele e indica tra i colori preferiti il cipria e il terracotta.
Soggiorno-cucina con pianta a L
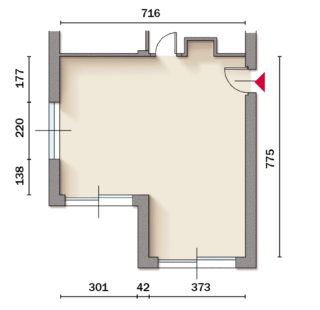
L’ambiente in questione ha una pianta regolare, dimensioni generose ed è bene illuminato dalla luce naturale attraverso tre ampie finestre. Vi si accede direttamente dalla porta d’ingresso e una seconda porta lo collega al resto dell’appartamento.
Il progetto proposto punta, attraverso l’introduzione di una quinta vetrata, a identificare diversi spazi funzionali senza interrompere visivamente la prospettiva.
Quale progetto d’arredo per il living
La quinta, che essenzialmente divide la cucina dalla zona conversazione, fornisce un punto d’appoggio per una serie di basi contenitori dalla parte della cucina e per il divano sul lato salotto. Inoltre aiuta a definire una sorta di corridoio d’invito anche alla zona notte.
Come arredare l’ingresso e la cucina
Considerata la forma della stanza e la posizione della porta d’ingresso, per impreziosire la zona è prevista una mensola sagomata (a destra della porta)
per riporre chiavi e piccoli oggetti, mentre la nicchia esistente (di fianco) viene chiusa da un sistema di ante a battente e trasformata in guardaroba.
Dall’ingresso, attraverso il corridoio virtuale disegnato dalla disposizione studiata degli elementi d’arredo si raggiunge la cucina, un “ambiente” di pianta rettangolare articolato in una composizione a U che stilisticamente si coordina ai mobili del salotto. Prevede:
- sul lato ingresso, tre moduli a colonna, con frigorifero e microonde, chiusi da una serie di mensole in diagonale che offrono uno spazio espositivo per libri e oggetti;
- la parete con il sottofinestra è risolta con basi contenitore attrezzate con lavabo, lavastoviglie, piano cottura e un bancone snack a penisola;
- addossata alla parete in vetro c’è una serie di moduli bassi.
Al di là della penisola trova posto anche un piccolo home office collegato visivamente al living.
Come arredare la zona pranzo e il salotto
L’ampio living, inteso come zona conversazione e pranzo, vede due aree ben distinte. In modo strategico, la prima è sistemata vicino all’ingresso per lasciare maggiore comunicazione fra cucina e tavolo da pranzo. In salotto, è protagonista un divano a penisola (1) appoggiato alla parete in vetro (2). È “servito” da due tavolini, uno rotondo laterale (3) e l’altro ovale posto davanti alle sedute (4). È orientato in modo da consentire la visione della tv che si può collocare all’interno della composizione, con moduli chiusi e a giorno, prevista sulla parete di fronte (5). Fra il divano e il mobile, dalla parte dell’ingresso, c’è anche una poltroncina (6) che completa l’area conversazione, e che si può spostare all’occorrenza intorno al tavolo da pranzo (7). Quest’ultimo, sistemato sul lato opposto in linea con la finestra, è un modello allungabile, abbinato a una panchetta imbottita (8) e a sedute miste (9), da completare, quando si amplia il piano, con quelle di cucina e studio (10).
La scelta dei mobili del soggiorno privilegia per alcuni elementi le tinte neutre – come per il divano bianco – e all’opposto punta su cromie scure per il tavolo, le sedie e i tavolini, così da far risaltare sedute e complementi tessili selezionati nelle palette dei rosa cipria e dei terracotta, tinte preferite dalla lettrice. Il pavimento color miele fa da sfondo.
I pezzi principali per arredare l’openspace
L’angolo studio è sempre utile
Se, come in questo caso, lo si ritaglia in un openspace, può trovare la sua collocazione anche vicino alla cucina. Ovviamente, per renderlo confortevole funzionale e ben assortito, è necessaria un’attenta cura nella scelta dei mobili. Le dimensioni della scrivania dipendono ovviamente dallo spazio disponibile, calcolare almeno 70 cm intorno per i passaggi; per quanto riguardo lo stile, uniformandola al resto degli arredi non si sbaglia. Bianca, minimal, con profili in legno chiaro può essere un vero jolly. Dal punto di vista pratico i modelli con alzatina suddivisa in vani sono molto utili per ripartire il contenuto e tenere in ordine il piano di lavoro. Si può scegliere, però, anche di creare un corner a sé puntando per esempio su uno scrittoio in stile. La poltroncina? Deve essere confortevole ed ergonomica ma non troppo “da ufficio”. 
Scrivania bianca e legno Nordeco di Miliboo (www.miliboo.it)
Progetti per arredare il soggiorno con cucina a vista






















































