In una casa di nuova costruzione come in una ristrutturata, il progetto d’arredo deve essere chiaro sin dall’inizio, soprattutto perché si deve prevedere per tempo la posizione di punti luce, prese e interruttori. Ma spesso, a lavori finiti, ci si accorge di qualche errore di valutazione o che qualcosa di quanto si era deciso non corrisponde a quello che si era immaginato.
Richiesta del lettore Luca: ho da poco acquistato la mia prima casa, in un contesto di vecchie cascine completamente ristrutturate per l’efficientamento energetico, mantenendo intatto il fascino e il carattere originale delle cascine della vecchia Brianza; per esempio convivono riscaldamento a pavimento e le classiche persiane in legno verniciato di verde. La casa deve parte del suo fascino all’illuminazione naturale: nel soggiorno sono presenti 4 finestre e 1 portafinestra, che lo rendono luminosissimo ma anche un vero rebus da arredare. Non riesco a trovare soluzioni che mi consentano di posizionare divano, libreria, tv.
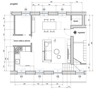
Con il progetto d’arredo, l’area della zona giorno localizzata nello spazio più circoscritto, dove sono già presenti gli impianti, è dedicata alla cucina. Inserita in questa sorta di rientranza, la cucina – per ottimizzare la metratura disponibile e disporre di una composizione più lunga – sfrutta anche il sottofinestra. Si sviluppa quindi su tre lati e, cosa inusuale, si apre verso la zona conversazione: si è deciso, infatti, di collocare la zona pranzo sull’altro lato (e quindi meno vicina alla zona cottura), per poter avere la tv sulla parete davanti al divano (messo in posizione centrale) e vicino al tavolo un altro mobile in cui mettere quel che serve nella zona pranzo, servizi di piatti e biccheri.
Con questa distribuzione delle funzioni, anche i percorsi risultano più razionali: il passaggio centrale resta libero e connette in linea diretta con l’ambito notte e servizi, oltre fa da collegamento anche ai percorsi circolari intorno a zona pranzo e zona conversazione.
La rientranza a lato dell’ingresso è chiusa con porta scorrevole salvaspazio e ospita un piccolo ripostiglio.

Le pareti libere da aperture sono sfruttate per gli arredi fissi. Quella a lato dell’entrata è ancora più luminosa grazie all’eliminazione del setto di accesso al vano scala che porta al sottotetto ed è attrezzata con un sistema componibile alto che contiene scomparti sia a giorno che chiusi con ante, il vano per il televisore ed un elemento ad angolo con panca e appendiabiti. Il divano è un modello particolarmente adatto ad essere posizionato a centro stanza, con libreria integrata nel bracciolo e nello schienale.
Prodotti scelti per il progetto
- Sistema di moduli per arredo, Freedhome di Caccaro
- Divano, Leonard di Doimo Salotti
- Tavolo Silhouette, sedia Lina e tavolini Atollo di Calligaris
- Lampada a sospensione, Neutra di Kartell
- Lampade da terra e tavolo, AJ di Louis Poulsen
- Pavimento in lastre di gres, Grande Stone Look Ceppo di Gré di Marazzi
Cosa mettere sotto la finestra?
Idee, soluzioni d’arredo e progetti di interior design a cui ispirarsi per trovare suggerimenti su come sfruttare lo spazio sotto le finestre:








































