Poco importa se si tratti di una colonna contenente impianti o canne fumarie o se si tratti di un pilastro strutturale, la presenza di un elemento in mezzo alla stanza può rappresentare un vincolo importante per la distribuzione delle funzioni e dei mobili. Vincolo sicuramente superabile con un accurato progetto che lo integri nell’arredo rendendolo quasi invisibile o funzionale. È il problema che si è trovato ad affrontare il nostro lettore Simone, nel valutare la possibilità di acquisto di un immobile su due livelli, dove in quello superiore un ex locale di sgombero, ricavato nel sottotetto, è attraversato da un’ingombrante colonna che contiene le canne fumarie dell’edificio. Simone vuole realizzarvi una camera e mantenere il bagno già realizzato.
- Risponde l‘architetto & Interior Designer Elisa Coffinardi, https://www.archcoffinardi.weebly.com
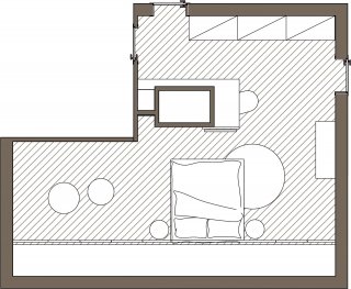
Nella mansarda la parte sfruttabile con l’altezza del colmo più alta è occupata da un vano ingombrante contenente le colonne di scarico dell’edificio. Per progettare una camera con letto matrimoniale, armadio capiente e angolo studio, si è pensato di sfruttare proprio questo volume “di disturbo” e trasformarlo nel fulcro intorno al quale far ruotare il progetto. Lo si è quindi valorizzato come elemento architettonico e si è chiuso il piccolo passaggio adiacente alla parete della scala, comunque inutilizzabile, con una paretina alta 200 cm che lasciasse passare nella parte superiore la luce delle due piccole finestre sul tetto verso l’ingresso e sfruttandolo quindi sui tre lati disponibili.
Verso la porta di ingresso la nicchia che si crea è utilizzata con mensole a libreria ed un piano in legno che lo abbraccia e prosegue sul lato corto del “pilastrone” diventando la scrivania vera e propria, sorretta lateralmente da una parete più bassa del pilastro e a creare un gioco di volumi. Questo elemento verticale è rivestito nello stesso materiale dello scrittoio e nel lato fronte letto diventa sostegno per la tv. Sempre nel lato verso il letto si è posizionata un’applique e la nicchia da quel parte ha un fondale a specchio che lascia comunque aperta la parte alta. Il letto è avanzato rispetto alla parte più bassa del tetto attraverso dei contenitori con ante e la restante zona oltre il letto è attrezzata come piccolo salottino relax/lettura. L’armadio ad ante scorrevoli (tre vani da 120 cm) è posizionato sulla parete più alta sotto al colmo.
Clicca sulle immagini per vederle full screen


















































