Quesito di Alessia S.: Abbiamo due figli di 6 e 2 anni che dormono in un’unica cameretta di piccole dimensioni. Ora che il minore sta crescendo vorremmo arredare la stanza in modo definitivo, con un piccolo angolo studio, ma evitando la soluzione a castello. La parete perimetrale è soggetta a formazioni di muffe, perciò non vorrei occuparla con gli armadi.
Risponde l’architetto Ornella Musilli – https://www.libera-design.it
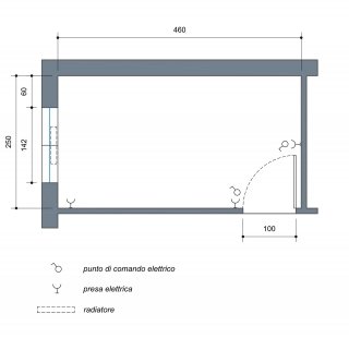
Vista dall’alto – progetto
Poiché lungo e stretto, lo spazio a disposizione è stato allestito secondo tre fasce funzionali longitudinali: in una ci sono i letti, accostati alla parete più libera, quella centrale è di passaggio, mentre nella terza sono collocati gli arredi alti. Il letto del bambino è il più vicino alla finestra; al di sopra sono stati fissati ripiani per appoggiare libri e giocattoli. Vicino all’ingresso è stato inserito il letto della bambina. L’elemento d’arredo scelto è multifunzione, consentendo così di guadagnare spazio: aperto è un letto, chiuso si trasforma in postazione per lo studio. Fra le due zone notte è stato previsto un pannello in legno traforato che divide senza ostacolare il passaggio della luce naturale. Due armadi ad ante scorrevoli ed una libreria sono collocati sulla parete opposta.
Il problema della formazione di muffe sulla parete è generalmente causato dallo scarso isolamento termico dei muri perimetrali dell’edificio ed alla conseguente formazione di condensa soprattutto in corrispondenza dei ponti termici. I ponti termici si hanno dove si accostano materiali con caratteristiche diverse di conduttività termica, ad esempio lungo la linea di contatto fra tamponatura in laterizio e travi e pilastri in cemento armato. Il consiglio è di eliminare la muffa utilizzando prodotti specifici e procedere con speciali pitture protettive, volendo ottimizzare il risultato bisogna intervenire con apposizione, all’interno della parete, di pannelli isolanti in materiali vari stratificati con barriera al vapore e dalle prestazioni elevate. Il miglioramento diventa decisivo se l’edificio viene rivestito esternamente con la tecnica “a cappotto”.











































