Camera matrimoniale piccola: come la arredo?

Una camera abbastanza piccola ma soprattutto con molti vincoli per la presenza di ben tre aperture. Come arredarla? Quesito di Maria Paola P.

Architetto Barbara Piccinno
A cura di Architetto Barbara Piccinno
Pubblicato il 11/07/2013Aggiornato il 06/08/2018
Camera matrimoniale piccola: come la arredo?

Quesito di Maria Paola P.

Prossimamente mi trasferirò in una nuova casa. Devo progettare l’arredo della camera. La stanza dispone di un locale introduttivo, in precedenza probabilmente utilizzato come cabina armadio, che io però adibirò a studio (pur utilizzando alcuni spazi come armadio).
Il problema della stanza sono le aperture: 3 pareti su 4 hanno ne hanno una (due finestre, una porta) in posizione piuttosto centrale. Non so come mettere l’armadio. Tenderei a non mettere la testiera del letto sotto la finestra, ma ad appoggiarla all’unica parete continua.
La stanza in sé non è enorme, per cui voglio evitare armadiature a ponte (che peraltro non mi piacciono).
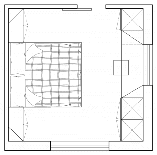
Allego una piccola piantina della camera con relative misure.

 

Z:PROGETTI-A-ZCCOSEDICASAespertocameramatrim Model (1)

Risponde l’architetto Barbara Piccinno dello studio Patetta – https://www.studiopatetta.wix.com/studio

La stanza è effettivamente complicata da risolvere proprio per le tre aperture che rendono difficilmente utilizzabili le pareti che le contengono.  Ho cercato di interpretare in tre maniere diverse il progetto.

 

Z:PROGETTI-A-ZCCOSEDICASAespertocameramatrim Model (1)La prima soluzione prevede la creazione di una parete inclinata che formi una cabina armadio e che il letto venga messo tra le due finestre inclinato. Questa soluzione permette di creare un appoggio diverso al letto, che non sia il tradizionale appoggio a 90° sul muro. Si crea inoltre uno spazio dove prevedere in alto mensole che fungano da libreria e sotto un contenitore con piano da appoggio a ribalta, da sfruttare all’interno e sopra come appoggio dietro la testata in sostituzione dei comodini. La sostituzione della porta a battente con una scorrevole esterno-muro renderebbe gli spazi più fluidi e fruibili.

piccinno-arredo-camera-sol1

 

Z:PROGETTI-A-ZCCOSEDICASAespertocameramatrim Model (1)La seconda soluzione ricalca la posizione del letto analizzata nella prima, ma sfrutta la parete con armadi e non con una struttura in muratura. Gli armadi sono inframmezzati da una piccola zona studio/scrivania che permette di diminuire la profondità degli arredi in concomitanza con l’angolo del letto, rendendo agevole il passaggio. Questa soluzione potrebbe per esempio tornare utile in caso si possedesse già qualche modulo di armadio; basterebbe integrarlo con la nuova parte di moduli a giorno e del piano con la sedia, da far realizzare su misura. Anche in questo caso, una porta scorrevole esterno-muro renderebbe gli spazi più fluidi e fruibili.

piccinno-arredo-camera-sol2

 

piccinno-arredo-camera-sol3-disegnoInfine si è pensato a una terza soluzione più tradizionale , che prevede il letto con testata e grandi comodini contenitori nella parete libera da aperture e di fronte un armadio di 1 + 2 ante ai lati della finestra; per raccordare in modo armonico i moduli con la parete, si possono fissare sui fianchi del guardaroba e sul muro una serie di mensole triangolari e invece, in corrispondenza dell’infisso, si prevede un ampio piano scrivania. In alternativa allo studio, si può mettere una cassettiera, anche se in questo modo l’apertura della finestra risulterebbe meno agevole. La terza soluzione permetterebbe di poter lasciare il locale introduttivo come cabina armadio e avere una comoda zona studio in camera da letto, illuminata anche da luce naturale. In questo caso si può tenere la porta a battente.

 

piccinno-arredo-camera-sol3

Iscriviti alla nostra newsletter

Riceverai una volta alla settimana una mail con i più significativi articoli del nostro sito divisi per categoria. Riempi il form col tuo indirizzo mail e sarai automaticamente iscritto alla newsletter.
Come valuti questo articolo?
12345
Valutazione: 4.5 / 5, basato su 2 voti.
Avvicina il cursore alla stella corrispondente al punteggio che vuoi attribuire; quando le vedrai tutte evidenziate, clicca!
A Cose di Casa interessa la tua opinione!
Scrivi una mail a info@cosedicasa.com per dirci quali argomenti ti interessano di più o compila il form!