A breve dovrò occuparmi dei lavori di ristrutturazione della mia casa. Il mio sogno è sempre stato quello di avere una grande cabina armadio. Come ricavare dal vano attiguo alla stanza da letto il massimo dello spazio possibile per realizzare questo progetto?
Quesito di Emanuela.
Risponde l’architetto Simona Arcasi – studio associato B.R.E.M.A., Napoli – https://www.studiobrema.it
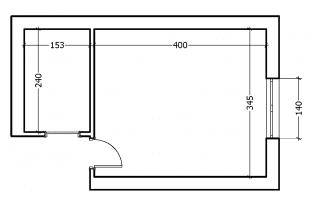
L’ambiente presenta una forma regolare pertanto nella scelta progettuale ho preferito una soluzione classica ottimizzando gli spazi per ottenere la massima superficie da destinare alla cabina armadio. Parallelamente il progetto prevede l’inserimento di vani contenitori allo scopo liberare al più possibile la cabina da destinare unicamente a indumenti e oggetti personali.
La cabina armadio sarà attrezzata con una composizione a elle in tal modo si sfrutteranno per intero le due pareti più lunghe della cabina, ottenendo uno spazio comodo per muoversi e una maggiore sensazione d’ampiezza. I due angoli delle pareti sono attrezzati da un lato con una cassettiera e dall’altro con mensole disposte a tutt’altezza per appoggiarvi scatole portaoggetti o maglieria. La restante parte è attrezzata con appendiabiti su due livelli per organizzare l’abbigliamento e il cambio stagione.
La composizione ad angolo è dettata dall’inclinazione dalla porta d’ingresso all’ambiente. Quest’ultima è stata sistemata con lo scopo di ampliare l’ingresso in camera il quale volendo può essere sottolineato con un abbassamento del soffitto in diagonale per incassare faretti che illumineranno l’ingresso in camera. Maggiore profondità a questo spazio è data dall’inserimento dello specchio nella boiserie in legno, posto di fronte alla porta della cabina armadio. Grazie alle due mensole sottostanti, poi, e all’aggiunta di un pouf si potrà facilmente utilizzare questo spazio anche per il make-up.
Frontalmente al letto la boiserie si sviluppa a tutt’altezza e accoglie la tv e con due mensole, utili per appoggiarvi dvd e tutti gli accessori tecnologici. Questo sistema è molto utile e pratico, infatti, sarà più semplice alloggiare prese tv, dvd e altro nascondendo i cavi elettrici dietro la pannellatura di legno, forata opportunamente.
Continuando lungo la parete, l’estremità della stessa è stata arredata con una cassettiera a spessore ridotto (40 cm) per una lunghezza di 90 cm. Potrà essere utile per riporre biancheria evitando di occupare spazio all’interno della cabina armadio. Al di sopra, inserite nella pannellatura, sono state sistemate delle mensole (o volendo anche dei pensili) per ospitare box portaoggetti. Per dare continuità visiva alla cassettiera è inserito un elemento in legno con la stessa finitura del fianco del mobile, che poggia direttamente e prosegue fino alla pennellatura verticale porta tv. Questo elemento ha valore puramente estetico e vi si potranno appoggiare oggetti ornamentali: piccoli vasetti con piante, ad esempio, contribuiscono a rendere l’ambiente rilassante ed accogliente.
Infine altro elemento contenitore è inserito dietro al letto, diventando anche testata. Grazie ad un’antina a ribalta diventa utile per riporvi i cuscini, mentre lateralmente, accoglie dei cassetti portabiancheria e la parte superiore diventa una base pratica per poggiarvi oggetti e libri. Non sono state inserite lampade o applique, poiché al di sopra del letto è inserita una veletta in cartongesso per l’alloggio di led, tale da garantire un’illuminazione continua, soffusa e ottimale per questa parte della camera, che donerà alla parete rivestita con mattoncini un effetto ancora più chic.












































