Come distribuire le funzioni e illuminare in modo opportuno l’open space del bilocale che deve accogliere l’angolo cottura, una piccola zona pranzo e uno spazio soggiorno/relax? Quesito di Giovanni.
Risponde l’Architetto Simona Arcasi – Studio Associato B.R.E.M.A. – Napoli – https://www.studiobrema.it


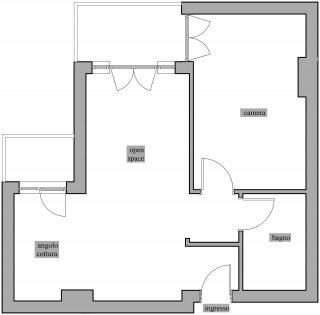
Per questo motivo si è optato per una divisione parziale sfruttando la diagonale che diventa motivo geometrico ed estetico del progetto. L’ingresso, infatti è delimitato alla destra di chi entra dal posizionamento in diagonale di pannelli scorrevoli in vetro bianco opaco che arrivano fino al soffitto.

In diagonale e parallelamente a questi si sviluppa una struttura che sarà realizzata su misura e accoglierà l’armadio per i cappotti e avrà anta rifinita a specchio. In tal modo si definisce l’ingresso, anche grazie all’abbassamento del soffitto per l’alloggio dei faretti e contemporaneamente si disimpegnano la camera e il bagno. 

Proseguendo con la linea diagonale ma posta ortogonalmente alla direzione dell’ingresso, si è posizionato un tramezzo giusto nell’angolo posto tra il salotto e l’angolo cottura. Questo elemento è utilizzato per appoggiarvi il tavolo, che trova una giusta collocazione tra l’angolo cottura e la zona conversazione essendo l’ideale la sequenza cucina – pranzo – soggiorno.

La posizione in diagonale del tavolo,valorizzata da lampade a soffitto, crea armonia tra i due ambienti (angolo cottura e zona conversazione). Ortogonalmente al tavolo, sul lato opposto ho inserito una struttura in cartongesso che può essere opportunamente disegnata per l’inserimento di un mobile credenza (molto utile quando è posto di fronte al tavolo) e di nicchie dal valore estetico, opportunamente illuminate.

Infine, le scelte cromatiche privilegiano il bianco, per aumentare la luminosità, alternato soltanto da accenti di grigio. In particolare la quinta che accoglie il tavolo ed il controsoffitto che prosegue sulla cucina sono tinteggiati grigio perla, mentre la parete di fondo della zona conversazione sarà in grigio scuro.
Gli arredi della cucina e del soggiorno hanno il medesimo stile e colore principale: bianco laccato lucido, in cucina interrotto da accenti di giallo e nero a contrasto. Questi colori sono stati utilizzati per il rivestimento tra basi e pensili dell’angolo cottura (vetro colorato), le nicchie in giallo e nero/grigio scuro che richiamano per forma e colore i cubi della zona tv.


Per alleggerire l’impatto visivo del pranzo il tavolo è in acciaio e cristallo; per dare calore all’ambiente, la pavimentazione è in parquet prefinito in rovere ad eccezione di una fascia di mosaico nera posta davanti la zona operativa dell’angolo cottura. In tal modo uniformando i materiali e giocando con gli stessi colori l’ambiente sarà un ordinato ed accogliente open space.










































