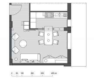
Quando la casa ha dimensioni contenute, soggiorno-pranzo-cucina sono ambienti che si intersecano strettamente con funzioni da soddisfare in modo davvero efficace per ottimizzare lo spazio con un risultato gradevole. Vediamo il progetto del nostro architetto, realizzato per Vito, che ha una cucina a vista schermato solo da un muretto basso.
- Progetto dell‘architetto Ornella Musilli – https://www.libera-design.it
La zona pranzo è contigua alla cucina; gli elementi che la caratterizzano sono il tavolo e l’espositore libreria pensile con faretti incassati. Il tavolo si articola fino ad introdursi nella cucina, si sovrappone al muretto esistente e può scorrere lungo la sua direzione; i due ripiani sono posti ad altezze diverse: quella più bassa è dedicata al pranzo e quella più alta forma un piano d’appoggio aumentando lo spessore della paretina.
Il soggiorno, con divano, poltroncine e tavolino, è definito dal rivestimento di due pareti in carta da parati. Lo spazio necessario per la tv è ottenuto con l’ampliamento della superficie verticale del tramezzo tramite l’accostamento ad esso di un contenitore a colonna con ante a ribalta, fruibile dal soggiorno e dall’ingresso e rifinito con carta da parati in continuità con il divisorio. Il muro sul fondo ospita la libreria; due lame di luce, realizzate con estruso angolare in allumino e strip led interno, mettono in evidenza la trama del rivestimento.
Clicca sulle immagini per vederle full screen















































