Contenuti trattati
Quando si cambia casa, spesso si acquistano mobili nuovi ma in genere si ha l’esigenza di far convivere gli arredi già posseduti con quelli nuovi. Se i primi sono particolarmente decorativi o connotati o in uno stile “importante”, bisogna fare attenzione nell’abbinargli i nuovi. Motivo per cui, per non sbagliare, senza la guida di un architetto o di un interior designer, si tende a consigliare il bianco e lo finiture neutre per pavimenti e rivestimenti.
Oltre alle questioni di stile, ovviamente vanno considerate anche le dimensioni della stanza e dei vari pezzi da inserirvi. Vediamo il caso propostoci da una lettrice, che in una abbastanza ampia stanza di forma quadrata desiderava inserire la cucina nuova e alcuni vecchi mobili di famiglia.
Richiesta della lettrice G.: Nella zona pranzo – cucina della mia casa, vorrei mettere alcuni mobili già in mio possesso (tavolo e/o vetrinetta da restaurare), senza però appesantire troppo l’arredamento, e acquistare nuovi quelli della cucina. Mi piacerebbe molto prevedere una penisola. Vi chiedo un aiuto sulla disposizione di elementi nuovi e vecchi da riutilizzare (vetrina larga 170, mobile con specchio largo 170, tavolo allungabile (misure chiuso 130×117).
Il progetto: dividere cucina e zona pranzo in base a impianti e mobili esistenti
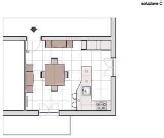
Consideriamo due ipotesi di arredo principali (planimetrie A e C), mentre la terza (pianta B) è una variante della prima.
In tutte le soluzioni la zona con il tavolo e le due credenze esistenti è posizionata all’entrata e vicina al balcone, con possibilità di disporre ad angolo i mobili alti e in modo da poter realizzare due ambiti distinti: cucina e pranzo.
La cucina è allestita in considerazione delle predisposizioni impiantistiche ed è dotata in ogni proposta, come richiesto, di penisola.
Per la finitura dei nuovi arredi, della cucina quindi, si opta per un insieme prevalentemente di colore bianco così che si integri meglio con i mobili esistenti in legno. Per la stessa ragione, neutra anche la proposta per il rivestimento e il pavimento: piastrelle in gres porcellanato effetto pietra di colore neutro, beige e/o grigio. Per il pavimento si può anche al parquet e alla ceramica effetto legno.
La penisola cucina sotto la finestra
Nella proposta A e B sulla composizione cucina angolare si innesta la penisola a disegnare quasi una U, già dotata di numerose basi e pensili. Nella A alcuni moduli cucina sono sistemati anche sulla parete di fondo e affiancano il mobile credenza già esistente così da ampliare notevolmente la capienza. La penisola arriva fino a metà finestra.
Nella proposta B invece la penisola occupa quasi tutto il sottofinestra. Alle sue spalle lo spazio è lasciato libero, e possono essere scelti anche sgabelli per il banco snack dal design meno minimale e di dimensione più rilevante.
La penisola divide cucina e zona pranzo
Nella proposta C l’ambito della cucina risulta più nettamente distinto da quello pranzo. Il sottofinestra è lasciato libero. Il piano cottura è installato sull’altra parete e il lavello













































