Contenuti trattati
Spesso da un bilocale sufficientemente spazioso è possibile ricavare un trilocale, ammesso però che le finestre siano presenti in numero sufficiente. In genere, infatti, se esiste un vano cucina separato, questo ha obbligatoriamente una finestra ed è pertanto possibile trasformarlo in camera eventualmente aumentando la metratura per adeguarlo a quella richiesta per legge per la camera singola (o doppia, nel caso ci siano due figli).
Naturalmente in questi casi la cucina diventa a vista sul soggiorno e viene inglobata a questo in una unica zona giorno open space, che ospiti le zone relax, pranzo e operativa in uno stesso ambiente. Questa soluzione – che da alcuni viene scartata per mantenere isolati gli odori della cucina – ha il vantaggio di creare un effetto visivo di maggiore spazio e di privilegiare la convivialità, scelta che rispecchia in genere i desiderata dei più giovani.
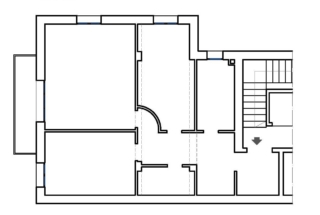
Valutiamo, ad esempio, la richiesta della lettrice Laura C., che per il suo bilocale – abbastanza grande e di pianta molto regolare lungo il perimetro ma con distribuzione interna articolata ma poco funzionale – ci ha chiesto come aggiungere la seconda camera e un bagno di servizio, precisando che quello esistente non voleva cambiare posizione né alla parte di cucina con lavello e piano cottura né al bagno principale. Per rispondere alle richieste della lettrice, ecco quindi abbiamo progettato la soluzione A. Per offrire invece anche una seconda opzione abbiamo progettato la soluzione B, in cui la cucina si sposta di qualche metro, e al suo posto viene prevista la cameretta. Il vantaggio per la zona giorno è notevole perché l’ambiente guadagna una pianta più ariosa e vivibile e viene aeroilluminato da due aperture con grande vantaggio per la luce naturale ed effetto visivo “meno chiuso”, di maggiore ampiezza.
Normativa: per ogni stanza quanti mq e quali regole
Per prendere in considerazione le diverse opportunità di progetto realmente percorribili non si puà prescindere da alcune norme che interessano le abitazioni. Per una verifica dettagliata si consiglia di fare riferimento agli strumenti urbanistici vigenti nel Comune dove è ubicato l’edificio. Eccole:
• la superficie del soggiorno non può essere inferiore a 14 mq;
• la superficie della camera singola non può essere inferiore a 9 mq;
• la superficie della camera doppia non può essere inferiore a 14 mq;
• la cucina deve essere disimpegnata dal bagno attraverso uno spazio filtro (antibagno);
• se la cucina è chiusa in un locale dedicato, deve avere la finestra;
• almeno un bagno deve essere dotato di finestra;
• la superficie aero-illuminante delle aperture esterne (infissi) di ogni stanza dove si prevede la presenza continuativa di persone (soggiorno, camera, etc.), deve essere pari ad almeno 1/8 di quella calpestabile.
Due soluzioni di progetto proposte con alcuni caratteri comuni
Per assicurare l’osservanza delle norme di cui sopra, si possono essenzialmente elaborare due ipotesi progettuali, che hanno come caratteri comuni:
• la cameretta ha una superficie maggiore di 9 mq;
• la cameretta è servita da una finestra, della quale deve essere verificato, come per tutti gli altri locali con permanenza di persone, il necessario apporto aero-illuminante;
• le tubazioni degli scarichi dei due bagni sono allineate fra loro e alla colonna montante;
• la camera doppia raggiunge la superficie minima prescritta dalle norme (14 mq), anche per questa deve essere verificato il rapporto aero-illuminante.
Progetto A: zona giorno a L con tavolo in mezzo
La zona operativa della cucina esistente è stata conservata, mentre la linea degli arredi di fronte è più compatta e formata da due colonne e da una base a profondità ridotta, con pensile.
Mantenendo la cucina nella zona attuale e ricavando la cameretta nello spazio ad angolo con finestra, si determina una zona a giorno a forma planimetrica di L.
Fra i due bagni è previsto uno spazio di disimpegno dalla cucina, in cui viene sistemata anche la lavanderia.
Rientranze per riporre sono collocate in due aree dell’ambito distributivo: una è ad angolo e si trova all’ingresso, l’altra è posta a ridosso della camera doppia ampliata e si chiude con ante raso muro pieghevoli.
Progetto B: con la cameretta al posto della cucina, soggiorno più luminoso e bagno più grande
La cameretta prende il posto della cucina. La nuova zona operativa è collocata sotto la finestra nello stesso vano con il salotto. Questo locale unico con soggiorno e cucina beneficia di doppia esposizione, con portafinestra, balcone e finestra.
Il bagno con finestra ed il ripostiglio sono più grandi rispetto alla versione precedente.












































