Contenuti trattati
In molte abitazioni, soprattutto nei contesti urbani, la necessità di una camera in più si scontra con la disponibilità di metrature contenute. Tuttavia, attraverso una progettazione mirata e un uso intelligente degli spazi, è possibile ottenere un nuovo ambiente sfruttando per esempio parte dell’area dedicata a soggiorno, cucina e ingresso.
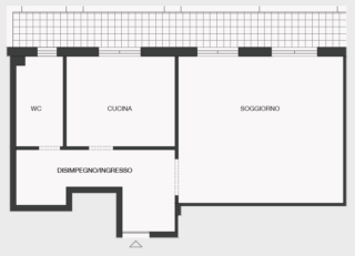
Analisi dello stato di fatto
Nelle planimetrie tradizionali, le zone giorno sono spesso separate da muri divisori che frammentano lo spazio. In un appartamento di taglio classico, ad esempio, la cucina è indipendente, il soggiorno occupa un’area distinta e l’ingresso rappresenta una porzione poco utilizzata della casa. Il primo passo per ricavare una camera in più consiste nel valutare quali pareti possono essere rimosse per ottenere un open space funzionale.
Ridefinizione degli spazi
L’obiettivo principale è creare una nuova stanza senza compromettere il comfort della zona giorno. Una soluzione efficace prevede l’unione di cucina, soggiorno e ingresso in un unico ambiente polifunzionale, liberando lo spazio necessario per una camera aggiuntiva. Questo tipo di intervento può essere realizzato attraverso diverse strategie:
- Demolizione di pareti non portanti per creare un open space luminoso e arioso.
- Utilizzo di elementi divisori flessibili come pareti vetrate, librerie a giorno o pannelli scorrevoli, che mantengono la continuità visiva ma garantiscono separazione funzionale.
- Riposizionamento della cucina in una soluzione a parete o a penisola in un vano insieme al soggiorno
- Ottimizzazione dell’ingresso, trasformandolo in un’area di servizio con armadiature a tutta altezza, riducendo lo spazio inutilizzato.
Planimetria della nuova distribuzione
La nuova configurazione prevede un open space che integra cucina e soggiorno, mantenendo comunque una chiara suddivisione delle funzioni attraverso arredi e illuminazione differenziata. La camera aggiuntiva può essere realizzata a ridosso di una delle pareti perimetrali, dotata di una finestra per garantire un’adeguata illuminazione naturale.
A seconda della metratura disponibile, la nuova stanza può essere destinata a camera da letto o cameretta (come nei due esempi che riportiamo), studio o zona ospiti.
Se le dimensioni sono contenute, soluzioni salvaspazio come letti a scomparsa o arredi multifunzionali possono massimizzare la fruibilità.
Due proposte esemplificative per una stessa casa
Partendo dalla richiesta di un lettore che qui sotto riportiamo, l‘architetto Federico Riva propone due soluzioni che rappresentano due diversi spunti progettuali.
Richiesta: vorrei un progetto per sfruttare l’ampio ingresso di questo bilocale in cui cucina e soggiorno insieme hanno una superficie maggiore di 25 mq. Il progetto dovrebbe prevedere la creazione di una camera da letto (con la possibilità di avere due letti) e un ambiente con cucina soggiorno, cercando di sfruttare l’ampio ingresso. Se possibile, vorrei fossero inclusi dei mobili che ho già: madia L 200 x P 47 x H 76 cm; due poltrone L 110 x P 90 x H 57/67 cm; scrivania L 170 x P 84 x H 70 cm; tavolo diametro 110 cm.
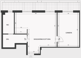
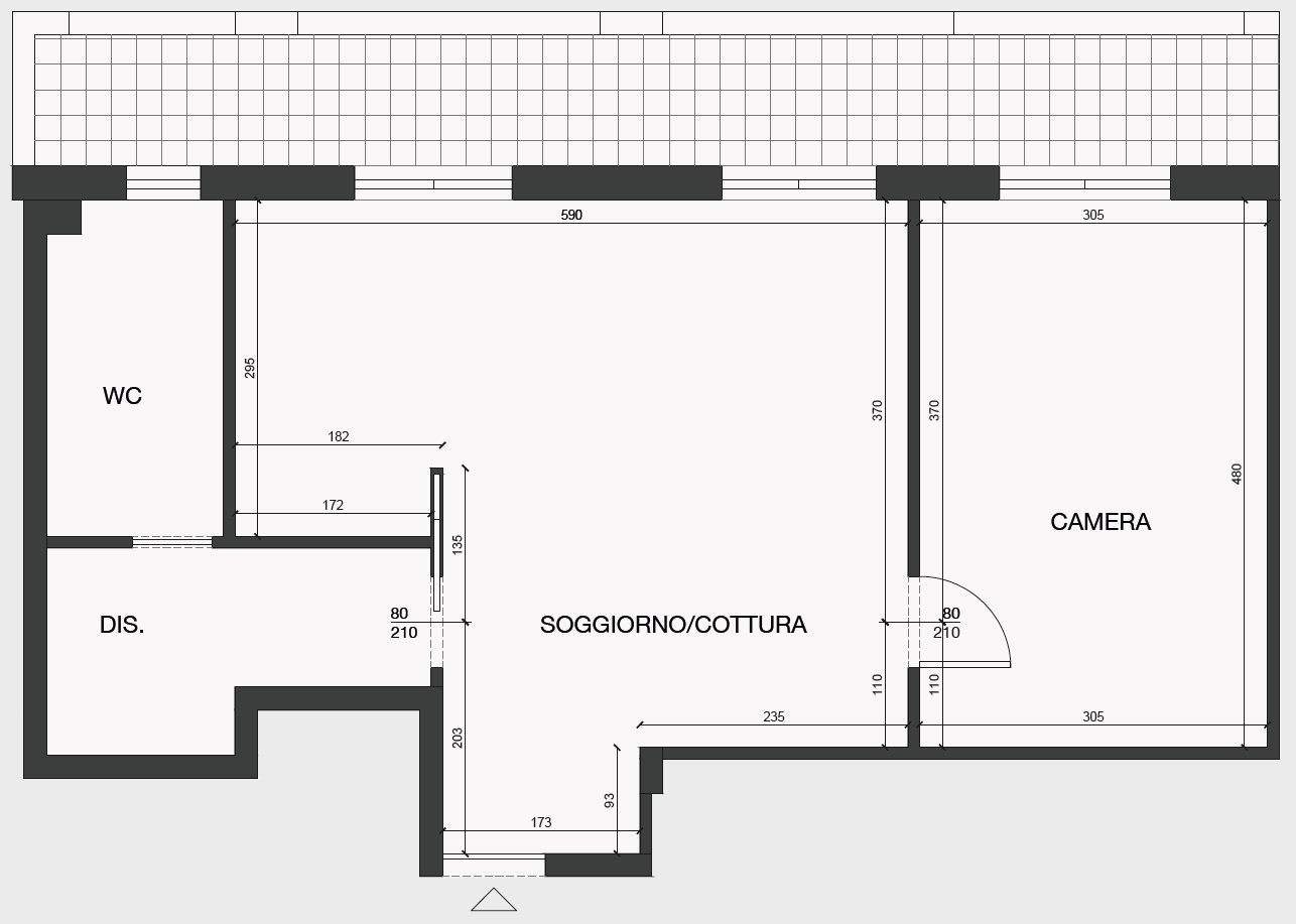
1) Soggiorno con cucina in linea e divano in mezzo alla stanza, più la nuova cameretta
Nella prima soluzione, viene rimossa l’attuale divisione tra la cucina e la zona giorno in favore di un soggiorno con angolo cottura baricentrico rispetto al bagno a sinistra e la camera da letto a destra.
Nella zona giorno la cucina mantiene la sua posizione attuale e viene affiancata dalla scrivania (di proprietà), utilizzata ora come tavolo da pranzo.
Parallelamente a questa è stato posizionato il divano rivolto verso la parete attrezzata con mobile TV.
La madia è stata posizionata vicino all’ingresso, accanto alla porta della camera da letto. Non è stato invece possibile collocare gli altri pezzi di arredo di proprietà.

Legenda 1. cucina – 295×60 cm 2. madia di proprietà – 200×47 cm 3. divano – 250×95 cm 4. tavolino basso – diam. 50 cm 5. mobile TV – 210×40 cm 6. tavolo di proprietà – 170×84 cm 7. letto singolo – 90×200 cm 8. comodino – 40×60 cm 9. armadio – 305×60 cm 10. poltroncina – 60×60 cm 11. mobile contenitore – 150×30 cm
2) Soggiorno e cucina insieme con soluzioni a L, più la camera matrimoniale con cabina armadio
La seconda soluzione elimina l’ingresso per creare una soluzione a L per la cucina e disporre di maggiori vani contenitore, sia basi sia pensili.
Questo genere di configurazione definisce una zona dove è più adatto sistemare un tavolo di forma rotonda. Questa soluzione prevede un disimpegno più grande, necessario come antibagno, e sfruttato con un armadio come nella prima soluzione ma con una porzione di parete libera che si può sfruttare per fissarvi un paio di appendiabiti per cappotti.
Accanto alla zona cucina c’è il salotto con un divano angolare rivolto verso la parete con il mobile tv e permette di godere della vista verso l’esterno.
Nella camera da letto, in questa proposta in versione matrimoniale a con cabina armadio, è stata ipotizzata una cabina armadio (non in muratura ma con divisorio di produzione).
In questa soluzione, degli arredi di proprietà sono stati inseriti solo il tavolo rotondo e la madia.

Legenda arredo: 1. cucina – 295×172 cm 2. madia di proprietà – 200×47 cm 3. tavolo rotondo di proprietà – diam. 110 cm 4. divano a L – 220×220 cm 5. tavolino basso – 80×80 cm 6. mobile TV – 150×35 cm 7. letto matrimoniale – 160×200 cm 8. comodino – diam. 50 cm 9. cabina armadio – 160×200 cm 10. mobile contenitore – 80×35 cm

















































