Contenuti trattati
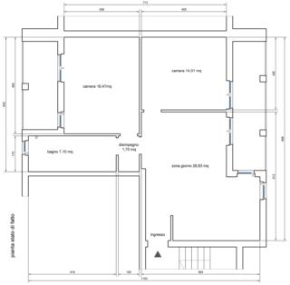
Si può ricavare il secondo bagno in un trilocale di dimensioni contenute? A volte sì, a volte no, dipende da tanti fattori: dalle metratura totale e da quelle degli ambienti che si vanno a ritagliare nel nuovo progetto, dalla presenza o meno di finestre negli ambienti in cui è d’obbligo che ci sia, dai tipi di muri (tramezzi, muri portanti, muri in cemento armato… ). Vediamo a titolo di esempio un progetto dell’architetto Ornella Musilli in risposta alla lettrice Emanuela N.


Al secondo bagno – arredato con sanitari, lavabo e piatto doccia – si accede da una delle camere. Nell’altro, più grande, viene previsto una sorta di box che ingloba doccia e lavanderia in due volumi distinti e chiusi da ante a battente. Entrambi i bagni potranno avere la finestra.
In alternativa, la vasca nel bagno grande
Se nel bagno più largo si desiderasse avere la vasca (al posto della doccia), questa potrebbe trovare posto sotto la finestra; sanitari e lavabo verrebbero traslati verso l’ingresso; la lavanderia potrebbe essere inserita in una rientranza in muratura da chiudere con ante pieghevoli.
I quattro sanitari sono collocati sulla medesima parete; il tramezzo che divide i due bagni ha uno spessore maggiorato per permettere di alloggiarvi i supporti per elementi sospesi e i relativi impianti.
Planimetria: focus sui bagni
Legenda
- porta a battente, filo muro, 80×210 cm – Syntesis Line di Eclisse
- porta scorrevole, senza cornici, 80×210 cm – Syntesis Line di Eclisse
- sanitari a profondità ridotta, 35×45 cm – Moon di Scarabeo Ceramiche
- lavabo, 40×42 cm – Sfera di Scarabeo Ceramiche
- box doccia con ante pieghevoli e piatto 70×80 cm
- pensile, 50×28,5xh75 cm – Phorma di Scarabeo Ceramiche
- scaldasalviette
- box doccia+lavanderia, 80×160 cm – Twin di Vismaravetro
- lavabo, 92×47 cm – ML di Scarabeo Ceramiche
- sanitari sospesi, 36×50,5 cm – Moon di Scarabeo Ceramiche
- pensile, 25×28,5xh75 cm – Phorma di Scarabeo Ceramiche









































