Contenuti trattati
In un’abitazione ricavare il secondo bagno è possibile a patto che vi siano alcune condizioni (essenzialmente: presenza di impianti vicini cui collegarsi, metratura e dimensioni minime previste, presenza o meno di finestra, possibilità di collegamento allo scarico del wc). Non raramente, una delle richieste che come redazione riceviamo più frequentemente è proprio quella di realizzare un bagno in più.
Vediamo per esempio il caso proposto dalla lettrice E.I. e le ipotesi di progetto studiate dal nostro architetto Ornella Musilli.
Avrei bisogno di un secondo bagno (quello esistente è uno stretto corridoio accatastato come lavanderia, non avendo requisiti minimi), una lavanderia e una cucina aperta o semiaperta sul soggiorno. Le camere, che pure avrebbero bisogno di un restyling, non le toccherei per non incidere sul budget.
4 ipotesi di progetti a confronto
Delle 4 possibili soluzioni, tre (soluzioni A, B, D) prevedono la cucina nell’angolo in alto a destra della planimetria, adiacente al bagno con finestra, e in una invece (soluzione C) la cucina è collocata a destra della zona d’entrata. Tutti gli interventi ipotizzati lasciano invariata la parte delle camere, che non subiscono modifiche alle pareti.
Zona giorno open space con divano a L che divide dalla zona pranzo
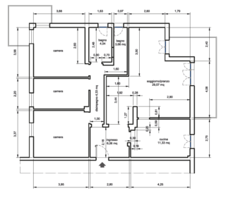
Nel primo progetto, gli ambienti di servizio, tra cui la lavanderia, ed il secondo bagno sono ricavati nella zona centrale dell’appartamento: i sanitari del secondo bagno sono addossati ad una parete di spessore adeguato per contenere la tubazione di scarico che potrà così raggiungere la colonna montante.
Alla lavanderia si accede dall’ingresso attraverso uno spazio filtro che ospita un guardaroba. La cucina è ricavata in adiacenza ai due bagni: l’impianto di scarico della cucina farà convogliare le acque bianche verso una colonna montante separata da quella delle acque nere. La composizione a golfo termina con una penisola verso il soggiorno.
Pianta demolizioni e costruzioni del progetto
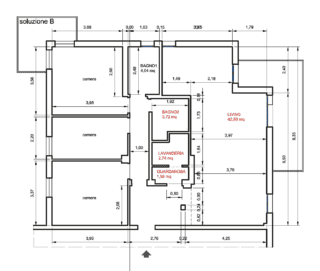
Zona pranzo separata dal salotto da una libreria bifacciale – soluzione B
Questa altra ipotesi di progetto differisce dalla precedente per:
- l’allestimento di soggiorno e area pranzo, che sono separate da una libreria con contenitori, bifacciale.
- la porta di ingresso al secondo bagno che è a battente, l’entrata alla lavanderia che avviene attraverso una sola porta scorrevole.
Pianta demolizioni e costruzioni del progetto
Con cucina nella posizione originaria e isola a muro – soluzione C
- La cucina in questo caso è collocata nella posizione originaria ed è dotata di ampia isola con sporgenza per pasti veloci addossata al muro.
- Al secondo bagno si accede dall’entrata attraverso un antibagno che è anche lavanderia.
Pianta demolizioni e costruzioni del progetto
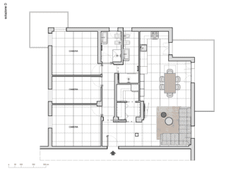
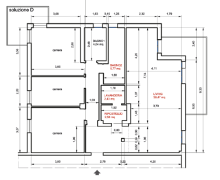
Soggiorno open space con cucina a vista e secondo bagno con finestra – soluzione D
- Entrambi i bagni hanno la finestra, in particolare il secondo è dotato di un grande box doccia.
- Gli ambienti centrali ospitano ripostiglio e lavanderia.
Pianta demolizioni e costruzioni del progetto
Ricavare un bagno in più
Per trovare spunti e idee di progetto per aggiungere un bagno al tuo appartamento, puoi leggere anche questi altri articoli:
- Come ricavare un bagno in più e la lavanderia
- Come ristrutturare una casa d’epoca per ricavare un bagno in più e conservare i pavimenti originari
- Nel trilocale, ricavare un bagno e una camera in più
- Ricavare un bagno in più dove si vuole
- Bagno: un progetto per renderlo più grande e ricavare l’antibagno
- Aggiungere la cameretta e un secondo bagno di servizio nel bilocale
- Ricavare il secondo bagno: quali demolizioni e costruzioni nel trilocale da ristrutturare
- Ricavare il secondo bagno in un piccolo appartamento di 70 mq
























































