Contenuti trattati
Quando nell’unico bagno si vuole inserire la lavatrice, si deve spesso rinunciare al mobile bagno di tendenza in questo momento, sospeso o comunque su gambe. I mobili lavanderia, per contenere la lavatrice, devono infatti necessariamente poggiare a terra e non hanno le linee snelle dei mobili lavabo attualmente di moda.
Una buona soluzione è allora quella di prevedere un’armadiatura in cui inserire la lavatrice nella parte bassa e in quella superiore o l’asciugatrice o mensole per asciugamani, spugne, stracci, detersivi. Questo sempre che sia possibile prevedere una colonna di altezza rilevante all’interno del bagno senza pregiudicare la funzionalità del locale di servizio oltre che l’estetica.
Foto del corridoio e bagno prima dei lavori
Il problema quindi spesso è: dove spostare la lavatrice? In molti casi, anche senza lavori rilevanti, è possibile installarla nell’antibagno (vi presenteremo nei prossimi mesi, un progetto in cui lo scarico dell’elettrodomestico è stato fatto passare dal bagno al ripostiglio adiacente, sostituendo solo un paio di piastrelle) o nel corridoio oppure in un ripostiglio, se adiacenti.
Nella situazione che vi presentiamo qui con un progetto in 3D dell’architetto Elisa Coffinardi, il problema viene risolto ricavando una nicchia nel disimpegno della zona notte in cui viene incassata a misura un’armadiatura dedicata a lavanderia (foto sotto – clicca per vedere full screen).
In un bagno di dimensioni medie, soprattutto quando è l’unico presente nell’abitazione, la presenza della lavatrice diventa spesso un elemento di disturbo nella disposizione dei vari elementi. Nel progetto in questione, la richiesta dei committenti all’architetto era quella di poter anche aggiungere l’asciugatrice, oltre a sostituire i rivestimenti e i sanitari esistenti.
Una colonna lavatrice-asciugatrice all’interno del locale di servizio avrebbe avuto un un ingombro e un impatto visivo non indifferenti. L’idea è stata quella di ricavare, sì, lo spazio nella superficie del bagno, ma di rendere la nicchia accessibile dal disimpegno adiacente. Collocandola poi vicino alla porta di entrata del locale di servizio si annulla l’impatto visivo del volume sporgente.
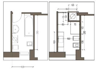
Pianta del bagno prima e dopo i lavori: lavatrice in nicchia nel corridoio
Si è deciso quindi di sostituire la vasca con una comoda doccia 90 x 70 cm addossata alla nuova nicchia, spostare i sanitari dalla precedente posizione (erano uno frontale rispetto all’altro e per di più disassati) e lasciare in questo modo una parete completamente libera per un grande mobile lavabo. Il calorifero precedentemente posizionato sotto la finestra è diventato come un comodo termoarredo sopra al bidet, posizione funzionale anche per la contiguità alla doccia.
La nicchia creata verso il disimpegno può quindi ospitare in colonna sia asciugatrice che lavatrice, ed è chiusa da un sistema scorrevole a due ante che serve anche come porta del bagno.
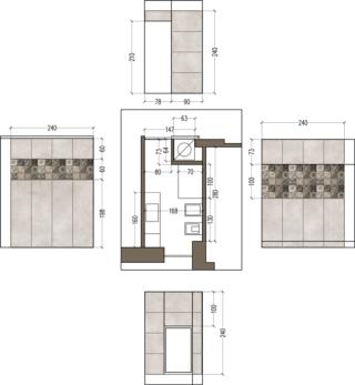
Il nuovo rivestimento in una tonalità neutra e chiara non appesantisce l’ambiente, ma non si è rinunciato a un tocco di colore e contemporaneità grazie a inserti decorativi tipo cementina, nella parete di fondo della doccia, con un richiamo sulla parete frontale accanto al mobile lavabo bianco con lavabo da appoggio e top a mensola in legno che armonizza il tutto allo stile delle cementine.
Pianta del progetto e viste frontali delle pareti con disegno delle nuove piastrelle decor














































