Quando i soffitti sono molto alti, laddove possibile e dove non serva creare un soppalco con nuovi ambienti, la zona giorno a doppia altezza consente di ottenere risultati di un certo effetto. Vediamo il progetto dell’architetto Ornella Musilli per un appartamento in una casa in costruzione al secondo e ultimo piano di un condominio.
L’altezza dei locali è di circa di 5 metri (ultimo piano sotto il tetto). Focalizziamo l’attenzione su tre ambienti (la cucina di 10.7 mq, il soggiorno di 21.8 mq e la camera matrimoniale di 13.4 mq circa) e sulle richieste del committente. Per separare cucina e soggiorno con una porta scorrevole, meglio un’anta o due? Con la doppia porta si avrebbe il vantaggio di una maggiore continuità fra i due locali, ma dove sistemare il tavolo della cucina, in caso lo si voglia mantenere? Nel soggiorno si vorrebbero inserire un tavolo rettangolare (magari allungabile), due divani con la televisione e una libreria/armadio. Nella camera matrimoniale, per poter sfruttare l’altezza del locale, sarebbe possibile prevedere una cabina armadio?
Per la cucina
La porta che mette in comunicazione con il soggiorno è a doppia anta scorrevole, ha una luce di apertura per il passaggio di 70+70 centimetri e la sua posizione è decentrata rispetto al tramezzo per dare spazio al tavolo, che è un modello salvaspazio perché estensibile in larghezza, e ai contenitori di design, piccoli e girevoli collocati nel soggiorno. La porta a doppia apertura è un modello elegante e minimale che si integra con la parete; il controtelaio infatti non ha finiture esterne e nasconde due ante speculari; i pannelli possono essere di vario tipo e finitura, anche in vetro trasparente o traslucido con cornice. Per l’arredo, basi e pensili si sviluppano in una composizione a L e si completano verso l’ingresso con un’armadiatura a tre colonne.
Soggiorno
Anche nella zona pranzo del soggiorno il tavolo è allungabile. Per la parete sul fondo della zona relax, si è scelto un sistema giorno adatto alle doppie altezze, a spalla portante, modulare e molto versatile dal punto di vista delle composizioni, delle finiture e degli elementi, che possono essere a giorno o chiusi da ante a battente, a ribalta o scorrevoli, oltre che predisposti per ospitare il televisore.
Camera e cabina armadio
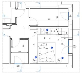
In questa ipotesi progettuale, la cabina armadio viene realizzata sfruttando i volumi presenti al di sopra dei due bagni e del disimpegno, sono funzioni abitative di servizio per cui è in genere prescritta l’altezza minima netta pari a 2,40 metri. Il nuovo solaio e la scala sono in acciaio e legno, hanno spessori minori di una struttura interamente in legno; il solaio è collegato con mensole e piastre bullonate, e dove necessario sospeso, agli elementi strutturali dell’edificio (pilastri e travi). La scala inizia con una pedana in muratura su cui è appoggiata una rampa in metallo con gradini in legno; essendo centrale rispetto alle tre camere, lo spazio rialzato potrebbe essere diviso in due e sfruttato da due camere. La stanza è arredata in modo funzionale con quattro elementi: letto, comodini e contenitore sotto la scala. 
Cabina armadio rialzata
La fattibilità della realizzazione di una struttura sopraelevata in cui inserire la cabina armadio deve essere verificata e deve essere avviata la relativa pratica presso gli enti preposti. È necessario verificare presso l’Ufficio Tecnico del Comune la fattibilità urbanistica relativa alle altezze ed alle volumetrie ammissibili. Trattandosi di un intervento strutturale, il tecnico abilitato deve valutare la fattibilità, dimensionare e verificare la struttura ed elaborare il progetto esecutivo che deve essere depositato al Genio Civile.

1. cucina modello SCENERY di SCAVOLINI
2. porta a doppia anta scorrevole, luce di passaggio 140×210 cm – SYNTESIS LINE ESTENSIONE di ECLISSE
3. tavolo allungabile in larghezza 47/77×140 cm – MINIMAX di SCAVOLINI
4. sedia 50x55x46/78 cm – AIKU di MDF ITALIA
5. tavolo con allunga unica, 90×140/200xh72 cm – EXT di MDF ITALIA
6. sedia 56x54xh81 cm – FLOW di MDF IALIA
7. composizione divano 300x100x60/85 cm – GRAFO di MDF ITALIA
8. contenitore girevole 25xh180 cm – TOTO’ di LEMA
9. specchio 18x150xsp6 cm – MIRAGE di LEMA
10. contenitore 130x132x50 cm – CONCHIGLIA di LEMA
11. composizione sistema giorno 481xsp44xh298 cm – SELECTA di LEMA
12. base con lavello e pensile scolapiatti
13. base con lavastoviglie e pensile
14. base con piano cottura a cinque fuochi e pensile-cappa
15. base d’angolo con pensile
16. base con pensile
17. armadio con frigo/congelatore
18. armadio con cestello estraibile
19. armadio con forni e cassetti alla base
Legenda camera e cabina armadio
1. guida da parete h 196 cm – sistema ALGOT di IKEA
2. guida da parete h 56 cm – sistema ALGOT di IKEA
3. ripiano 60×38 cm, con bastone appendiabiti e staffe – sistema ALGOT di IKEA
4. tavolino contenitore ∅44xh45 cm – IKEA PS 2014
5. cassettiera 80x43xh52 cm – NORDLI di IKEA
6. cassettiera 80x43xh75 cm – NORDLI di IKEA
7. cassettiera 80x43xh120 cm – NORDLI di IKEA
8. pouf ∅48xh45 cm – CANDY di CALLIGARIS
9. letto 183x213xh36/100 cm DREAM VIEW di LEMA
10. tavolino con cassetto ∅45 h48 cm – SIGN di LEMA
11. contenitore notte 125x57xh66 cm – FLIN di LEMA
12. armadio a muro con ante scorrevoli
13. specchio a parete
14. finestra sul soggiorno con vetro fisso
15. mascheramento con listelli in legno a persiana su tramezzo basso in metallo e cartongesso
16. affaccio sulla camera
17. soppalco in acciaio e legno
18. scala in acciaio e legno








































