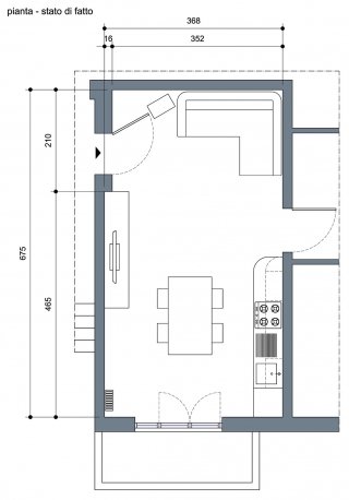
Limitare l’impatto visivo della cucina a vista all’interno del soggiorno l’openspace creando un piccolo ingresso e riorganizzando l’ambiente per renderlo più armonioso e funzionale. Un problema da molti sentito, anche se i modelli attuali sono progettati proprio per essere esibiti nel living. Ecco il progetto in 3D del nostro esperto per la lettrice Anna N.
- Progetto dell’architetto Ornella Musilli – https://www.libera-design.it
Nella soluzione proposta l’ingresso all’appartamento è messo in evidenza da un controsoffitto illuminato con lampade ad incasso; l’ambito è definito dal rivestimento della parete al quale sono applicate le mensole portaoggetti, lo specchio e gli appendiabiti, e da un contenitore a colonna con lato inclinato che in basso ed in alto è chiuso da ante apribili verso la zona pranzo, mentre nella parte centrale è svuotato e dotato di ripiano con fianco in vetro. Costituito da pannelli a fasce opache e vetrate con cornici in acciaio, è fissato al soffitto ed al solaio di calpestio; divide il soggiorno da pranzo e cucina, la sua posizione permette di accedere da entrambi i lati, di disporre di un piano d’appoggio verso il tavolo e di collocare la tv di fronte al divano. La riduzione dell’impatto visivo della cucina è quindi ottenuta realizzando un ingresso attrezzato ma aperto, un elemento di separazione centrale rispetto al locale; la luce naturale proveniente dall’infisso esterno è filtrata dalle superfici vetrate. Il controsoffitto contorna lo spazio soggiorno e sormonta la porta di accesso alla zona notte illuminandola con una lampada ad incasso.











































