Contenuti trattati
Nelle vecchie case di grandi dimensioni, era sempre presente la divisione tra soggiorno e cucina, spesso vi erano due porte di ingresso, una stanza da pranzo detto tinello vicino alla cucina, e tutte le camere e il bagno (anche l’unico) erano distribuiti lungo uno o più corridoi. Oggi con le ristrutturazioni si tende a creare un numero di bagni pari a quello delle camere da letto in modo che ognuna abbia un servizio dedicato, ricavando metri quadri preziosi dalla riduzione degli ambienti di passaggio, dall’eliminazione del doppio ingresso e spesso della cucina separata, che viene accorpata al soggiorno open space. Quest’ultima opzione però resta ancora a molti sgradita e preferiscono mantenere la zona cottura separata per evitare odori in soggiorno e lasciare il disordine di piatti e pentole dopo un pranzo relagato dietro a una porta, da tenere rigoramente chiusa. È il caso dei lettori, proprietari dell’abitazione di 150 mq di cui riportiamo la planimetria, che hanno richiesto al nostro architetto un progetto che mantenesse la separazione della cucina e garantisse la presenza di:
- 2 camerette per bambini/ragazzi
- 1 camera matrimoniale
- 3 bagni (uno può essere cieco)
- 1 zona lavanderia dove inserire asciugatrice e lavatrice.
Per il pavimento è stata espressa la preferenza per un gres effetto legno.
Il nuovo progetto per aggiungere il bagno
L’ipotesi di progetto con una nuova distribuzione è guidata dalle prescrizioni urbanistiche ordinarie elencate di seguito, anche se per indicazioni puntuali relative alla zona specifica in cui ci si trova occorre fare riferimento al regolamento edilizio comunale:
- superficie minima camera singola 9 mq
- superficie minima camera doppia 14 mq
- superficie minima soggiorno 14 mq
- fra cucina e bagno deve essere previsto uno spazio filtro (antibagno)
- la cucina deve essere dotata di finestra
- almeno un bagno deve essere dotato di finestra
Demolizioni e costruzioni necessarie per il nuovo progetto
Rispetto dei rapporti aeroilluminanti
Inoltre per ogni stanza deve essere “verificato” il rapporto aero-illuminante (ossia si devono rispettare alcuni valori previsti dalla normativa) laddove si preveda la permanenza continua di persone. Questo rapporto fa riferimento al rapporto fra la superficie della stanza e quella dell’area finestrata apribile e generalmente deve essere non inferiore a 1/8.
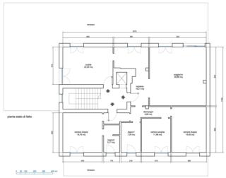
Il nuovo progetto con il bagno in più
In questo caso l’appartamento aveva tre ingressi, e se ne è ridotto il numero a due. Da quello principale, col nuovo progetto, si accede a un disimpegno che conduce al soggiorno e alla zona notte con servizi.
L’area che contorna il vano ascensore è in gran parte sfruttata per ricavare il guardaroba a servizio dell’entrata ed un volume schermato da ante pieghevoli, che ospita la lavanderia ed il ripostiglio e si sviluppa sull’ambito luminoso che collega soggiorno e cucina ed affaccia sul terrazzo.
Alla cucina si accede sia da questo passaggio verso il soggiorno, sia dal secondo ingresso.
I varchi ingresso/soggiorno e soggiorno/cucina hanno porte ampie e vetrate, la prima è leggermente più larga, il meccanismo di apertura delle ante è scorrevole, a scomparsa in un cassonetto laterale unico.
Nella zona notte sono state mantenute le tre stanze da letto ma ridimensionate per fare spazio al terzo bagno, affiancato agli altri due per restare vicini alla colonna di scarico esistente. Come richiesto, due bagni sono dotati di aerazione naturale.
Delle tre camere doppie in progetto (con superfici utili maggiori di 14 mq) una è dotata sia di bagno che di cabina armadio.
I pavimenti, come richiesto, sono in gres effetto legno con eccezioni di inserti effetto cemento in cucina, in parte della superficie del bagno con vasca, nel bagno cieco, nello spazio interno alla camera dove si affacciano gli ingressi a cabina armadio e bagno ed in corrispondenza dell’ambito di raccordo del disimpegno entrata/zona notte: in questo punto c’è anche un cambio di posa dei listoni che sono ruotati di 90 gradi.
Se permesso dai regolamenti edilizio e condominiale, è possibile rivestire anche i terrazzi con lo stesso pavimento: fornito anche in versione strutturata per outdoor consente di ottenere l’effetto di continuità fra interno ed esterno.
Legenda elementi
- arredo cucina in laccato bianco (o colorato), piani lavoro di colore grigio (o nero), elementi a giorno e piano del tavolo in finitura legno di rovere;
- in cucina, fra i due infissi esterni: zona lavaggio con basi e pensili;
- in cucina sulla parete lato scale: basi ad angolo, tavolo in appoggio alla penisola e armadi con forni, scomparti a giorno e frigo combinato;
- fra cucina e soggiorno: box servizi con lavatrice ed asciugatrice, lavapanni, piano lavoro con pensili e contenitore con ruote alla base, pannello divisorio trasversale seguito da scaffalatura e ripiani per il ripostiglio;
- nel guardaroba: rientranza con ripiani e fondo a specchio e bastoni appendiabiti fissati a pavimento ed a muro;
- in soggiorno: parete attrezzata multimediale, con scomparti chiusi da ante e scomparti a giorno, pilastro mascherato con fianchi e montanti; vicino al tavolo da pranzo è sistemata una madia;
- nella camera con cabina e bagno la parete fra le due porte a battente è rivestita a specchio.
I prodotti scelti per il progetto nella zona giorno
Soggiorno
- parete attrezzata con libreria Selecta, divano Warp, poltrone Lennox, tavolini Oydo e Sign, madia Ortelia, tavolo Filo e sedie Hati, di Lema
- arredi outdoor di Emu
Per i due passaggi in soggiorno
- controtelaio filo muro per due porte scorrevoli a trascinamento, a scomparsa in cassonetto unico, porte in vetro trasparente o satinato – Essential Dual di Scrigno
Volume con lavanderia e ripostiglio:
- delimitazioni ed aperture ad ante pieghevoli di Sistemi RasoParete
Zona notte, prodotti
Nel guardaroba, nei bagni ed in una camera
- porta scorrevole, a scomparsa, telaio senza stipiti e cornici coprifilo – Essential di Scrigno
All’ingresso zona notte, in due camere e nella cabina armadio:
- porta a battente raso muro – Essential Battente di Scrigno
Nel bagno in camera
- radiatore con appendino – Rift di Tubes
- sanitari sospesi – di Ceramica Globo
Nel bagno cieco
- struttura porta lavabo in metallo scuro e specchio con luce led – Opi Ring di Ceramica Globo
Nei bagni con finestra:
- lavabo da appoggio su mensola – di Ceramica Globo
- vasca idromassaggio – di Glass 1989
- tappeti su misura
Gallery
Progetti per ricavare nuovo bagno
- Ricavare il secondo bagno: quali demolizioni e costruzioni nel trilocale da ristrutturare
- Ricavare il secondo bagno in un piccolo appartamento di 70 mq
Progetti per ricavare la lavanderia
- Progetto e costi ristrutturazione per spostare la cucina e ricavare stanza in più e lavanderia
- Ricavare la lavanderia in bagno
















































