Quando si deve arredare un unico ambiente inserendovi cucina e soggiorno e magari anche l’ingresso, risultano ancora più cruciali la forma della pianta, la presenza di serramenti e la loro posizione, oltre che la anche la presenza di eventuali elementi strutturali che rendono non modificabile l’assetto del locale. Come sempre, fondamentale anche l’ampiezza o meno del locale.
Vediamo il caso particolare della lettrice Federica, che ci ha inviato una planimetria con questa richiesta:
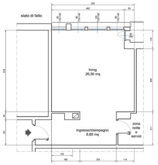
Come arredare questo unico ambiente che deve contenere ingresso-soggiorno-cucina? La cucina lineare si trova sulla parete di 4 metri e non può essere spostata, mentre la tv si trova sulla parete da 133. Vorremmo inoltre inserire sulla parete in ingresso un mobile-libreria contenitore.
Data la metratura contenuta dell’unico ambiente in cui inserire ingresso, soggiorno e cucina, è utile sfruttarlo il più possibile, senza appesantire con mobili anche visivamente ingombranti. Quindi il disimpegno di ingresso viene arredato, a sinistra, attrezzando la nicchia con una soluzione su misura (che può essere, a seconda delle specifiche esigenze, un vano portaoggetti con ripiani, aperto o chiuso, o con un modulo chiuso tipo scarpiera).
Di fronte, invece, c’è lo spazio sufficiente a collocare un’armadiatura a profondità ridotta a più funzioni, sostanzialmente quella di libreria e guardaroba (un modulo ha uno specchio girevole che riflette luce e parte dell’interno). Anche con una profondità ridotta si può prevedere un’appenderia per giacche e cappotti, sempre utile vicino all’ingresso; al posto di un tubo nel senso della larghezza se ne prevedono due perpendicolari al fondo del mobile. Con questa soluzione non si deve rinunciare al guardaroba all’entrata e nemmeno all’ordine che garantisce un vano chiuso.
Tutto il disimpegno di ingresso è poi definito da un controsoffitto con faretti led ad incasso, a filo con un pannello terra-pavimento, in metallo e vetro decorato, installato come prolungamento della parete che divide dal living per permettere di sfruttare lo spazio con un divanetto-panca angolare, a servizio della zona pranzo, che risulta così anche in una posizione di maggiore privacy rispetto alla porta di accesso alla casa, senza togliere spazio e luminosità.
La conformazione pressoché quadrata della pianta del living non consente una netta separazione tra cucina e salotto e ha suggerito quindi una distribuzione in due “fasce” con la cucina presente in entrambe: una con zona pranzo e l’altra con la zona conversazione.
L’inserimento di panche disposte ad angolo, salvaspazio ma di design e comode perché hanno la seduta e lo schienale imbottiti, comporta il decentramento di tavolo e sedute che favorisce funzionalità e maggiore accessibilità degli ambiti che potranno così essere serviti da arredi più generosi.
Nella rientranza perimetrale lunga quattro metri e rivestita interamente in resina di colore grigio antracite, è allestita la cucina in laccato opaco bianco: i moduli base con pensili, disposti al centro e le due colonne ai lati formano una cornice razionale con rivestimento scuro sul fondo; al di sopra una linea di contenitori alti consente di sfruttare interamente il volume.
Quali arredi sono stati inseriti? Marca, modello, misure
- sistema di armadi attrezzati all’entrata, con specchio girevole, librerie e guardaroba – sistema Freedhome® di Caccaro
- separé fisso, L 85 cm, in vetro e acciaio, fra ingresso e soggiorno – su misura
- tavolo, 190 x 107 cm – Conic di Cor
- composizione panche, 200 x 265 x P 65 cm – Mell Bench di Cor
- sedie, 59 x 55 cm – Roc di Cor
- divano a tre posti, L 232 x P 110 x H 88 cm – Lennox di Ditre Italia
- pouf, 110 x 65 cm – Lennox di Ditre Italia
- composizione di contenitori giorno, base tv, 200 x P 52x H 80 cm – Unit di Ditre Italia
- tavolino, L 40 x H 48 cm – Gray di Ditre Italia
- tavolino, diam. 52 x H 53 cm – Monolith di Ditre Italia
- lampade a sospensione – Bon Ton di Il Fanale
- lampada da terra – Tolomeo di Artemide
- vaso I Shine e contenitore Trullo di Kartell
- tessuto cuscino di Maharam
- pavimento in parquet multistrato – Quadrone di Listone Giordano








































