Rendere un bagno accessibile è un intervento fondamentale ai fine della funzionalità e del comfort per le persone con problematiche a livello motorio, anche temporanee. Adeguare un bagno non significa rinunciare al design: le soluzioni moderne combinano estetica e funzionalità, garantendo accessibilità senza compromessi stilistici. Investimento per il futuro, progettare pensando a tutti è un valore aggiuntivo per una casa, non solo in termini di sicurezza, ma anche di valore abitativo.
La normativa italiana in materia, regolata dal Decreto Ministeriale 236/1989, detta i criteri minimi per garantire l’accessibilità alle persone con disabilità, imponendo dimensioni adeguate, spazi di manovra e dispositivi che favoriscono l’autonomia. Per il superamento e l’eliminazione delle barriere architettoniche negli edifici privati e di edilizia residenziale pubblica, definisce tre gradi di qualità dello spazio costruito: l’accessibilità esprime il massimo livello, la visitabilità un livello limitato ad una parte dell’edificio e l’adattabilità un livello ridotto che esprime la potenzialità da prevedere in fase progettuale per la futura accessibilità.
Le varie tipologie di edifici rispondono ad obblighi diversi, per un immobile unifamiliare o plurifamiliare privo di parti comuni è sufficiente che sia soddisfatto il requisito dell’adattabilità. Inoltre nell’edilizia privata le prescrizioni sono meno limitanti quando si debba garantire il raggiungimento del livello di massima di fruizione, ad esempio non ci sono dimensioni predefinite da rispettare per il bagno come avviene invece per gli edifici pubblici. Infatti per le residenze sono fornite regole più semplici che permettono ugualmente di ottenere l’accessibilità, ciò non esclude la possibilità di migliorare oltre, quando possibile.
Il primo aspetto da considerare è l’ampiezza degli spazi. Fra le prescrizioni di legge ci sono diversi aspetti. L’ingresso deve essere privo di barriere e dotato di una porta scorrevole o battente verso l’esterno, con una larghezza minima di 75 cm.
Per il wc, la legge prevede un’altezza compresa tra 45 e 50 cm, con uno spazio laterale misurato dall’asse del sanitario di almeno 100 cm per agevolare i trasferimenti. È fondamentale installare maniglioni di sostegno robusti accanto al wc e al lavabo, il quale dovrebbe essere sospeso e privo di ingombri sottostanti, con una rubinetteria a leva lunga o elettronica.
La doccia deve essere a filo pavimento, con seduta ribaltabile e miscelatori termostatici per garantire la sicurezza. I criteri di buona progettazione suggeriscono inoltre l’uso di materiali antiscivolo e un’illuminazione ben distribuita, per minimizzare i rischi di caduta.
Schemi manovre con sedie a ruote
Ecco alcune rappresentazioni grafiche degli spazi minimi occorrenti alla persona su sedia a rotelle per effettuare svolte, rotazioni e inversioni di marcia. Si tratta delle soluzioni tecniche ritenute conformi dalla Norma:
- gli schemi “a” si riferiscono a manovre che si compiono con movimenti semplici dell’utente, queste si applicano alle costruzioni ex-novo
- gli schemi “b” si riferiscono a manovre combinate e più articolate, ritenute ammissibili nei casi di adeguamento e per consentire la visitabilità degli alloggi, quando non è possibile rispettare i dimensionamenti di cui sopra.
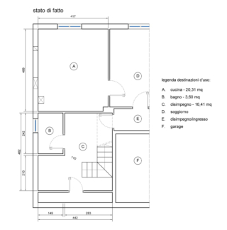
Due progetti per una stessa pianta
Dopo aver scritto a livello teorico, veniamo alla pratica, cioè alle richieste di una lettrice che aveva necessità di modificare un’abitazione per organizzare una zona giorno con cucina a vista ed un bagno accessibile per disabile al piano terra di un’abitazione indipendente di campagna (la planimetria nel disegno sotto), in modo da trasformarlo in un bilocale completo, utilizzabile senza l’uso di scale ma comunicante con l’appartamento ai piani superiori. Risponde l’architetto Ornella Musilli con due suggerimenti progettuali.
In considerazione dei vincoli imposti nella richiesta ed insiti nella struttura dell’edificio esistente, i progetti tendono ad ottenere il livello massimo di fruizione, facendo riferimento alle regole tecniche della normativa di settore.
Il committente vorrebbe mantenere l’attuale posizione del bagno ed ampliarlo al minimo, senza occupare troppo la zona del vano scale. L’attuale soggiorno al piano terra sarà adibito a camera, per questo locale non si chiedono consigli tranne di indicare la posizione della nuova porta. Nella zona giorno dovrebbe essere presente un divano-letto per la persona che presta assistenza e che utilizzerà la cucina per la quale non sono da prevedere ausili particolari. Dovrà essere inserita anche una lavatrice. Nella cucina sono presenti impianti che si vorrebbe inserire in un vano apposito e una credenza possibilmente da riutilizzare.
Per ampliare gli obiettivi, anche in assenza di vincoli normativi restrittivi, il progetto può integrare le soluzioni tecniche suggerite dalle norme e tendere a realizzare un livello più alto di fruizione, superando i minimi inderogabili nella ricerca del miglioramento dell’ambiente di vita di persone svantaggiate anche solo temporaneamente.
In questi progetti lo studio è stato fatto per la fruizione del locale bagno da parte di una persona con disabilità motoria.
Nei disegni sono riportati gli schemi esemplificativi dei movimenti su sedia a ruote che si è scelto di garantire: lo spazio di rotazione a 360° che permette il cambiamento di direzione con movimenti semplici, gli accostamenti laterali a vaso e doccia e frontale al lavabo.
Le porte sono ampie novanta centimetri e, dove consentito dalle strutture, sono scorrevoli.
Progetto 1
Dai disimpegni si accede alla camera, al soggiorno ed al bagno. Soggiorno e camera sono comunicanti direttamente.
I divisori inclinati evitano il formarsi di angoli sporgenti all’interno della zona giorno e consentono di ampliare la superficie utile del bagno, mantenendo fermo il punto più vicino alla rampa della scala e sottraendo poco spazio al relativo vano.
All’interno del bagno:
- nel box doccia che si può chiudere con tenda è presente una panca che può essere spostata ed un maniglione sia orizzontale che verticale con portadoccetta. Il piatto è filo pavimento;
- il vaso sospeso è dotato di doccetta laterale e maniglione ruotabile in due direzioni;
- il lavabo a mensola ha due maniglioni laterali e lo specchio reclinabile;
- in prossimità di vaso e doccia è previsto il campanello di emergenza.
A lato del box doccia, in corrispondenza degli elementi di impianto, è realizzato un piccolo locale tecnico, mentre la lavatrice è inserita nella rientranza posta di fronte alla rampa delle scale, apribile con ante pieghevoli e contenente anche il guardaroba.
Progetto 2
Dalla zona giorno si accede alla camera, al disimpegno e ad un vano tecnico dove è posizionata anche la lavatrice.
In questo caso è stata riutilizzata la credenza che si trova nella rientranza a lato del vano tecnico inoltre è previsto un guardaroba vicino alle scale.
Il bagno è più grande, il box doccia si chiude con porta pieghevole bassa e all’interno c’è un sedile fissato alla parete e richiudibile.
L’ottimizzazione degli spazi e la funzionalità devono coniugarsi con un aspetto gradevole ed accattivante degli interni; per questo gli arredi sono di design, gli accessori del bagno hanno finiture adatte all’abbinamento con i colori dei rivestimenti.














































