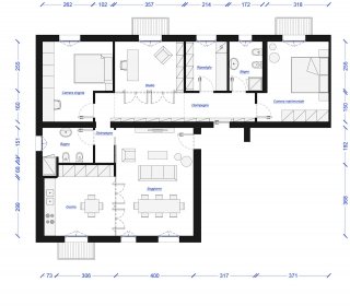
Quesito di Salvatore D.: Nel mio appartamento, realizzato dall’unione di due unità immobiliari, sono ora disponibili due ingressi, uno che si affaccia direttamente sul soggiorno, e che utilizzerei come principale, l’altro che dà sul corridoio, che vorrei nascondere, ma poter utilizzare in caso di necessità. Nella ristrutturazione ho anche ricavato una zona studio, che attualmente si trova in un punto di passaggio: come posso arredarla al meglio e separarla dal disimpegno senza sacrificare troppo il corridoio?
Clicca sulle immagini per vederle full screen
- Rispondono gli architetti Marco Zuttioni e Luca Romagnoli – Studio MODOURBANO Architettura, Milano – https://www.modourbano.it


La soluzione che consente di ottenere uno studio nello spazio prima occupato dalla zona pranzo di una delle due unità abitative (precedenti alla fusione), prevede delle modifiche minime dell’intero appartamento e predilige l’utilizzo dell’ingresso che si affaccia sul soggiorno. I pochi interventi a livello di partizioni e divisori permettono di dividere nettamente la zona giorno dalla zona notte, mentre il secondo ingresso viene adeguatamente nascosto in un’armadiatura che segue l’intero sviluppo del corridoio principale. L’utilizzo dell’ingresso, anche se schermato, viene comunque salvaguardato. La zona giorno sconfina verso la cucina esistente, attraverso la demolizione della partizione in tavolato, formando un unico ampio ambiente.


















































