Contenuti trattati
Nei progetti attuali raramente si trovano corridoi e ingressi chiusi, non solo quando l’appartamento ha dimensioni contenute ma anche quando è ampio e spazioso. Questo perché si tende a privilegiare la presenza di spazi aperti, con passaggi fluidi e ambienti ariosi e vivibili.
Niente di più bello, in effetti, che entrare in una casa e già dall’ingresso intravedere la luce naturale e avere uno scorcio prospettico che crei anche un effetto visivo di maggiore spazio rispetto a quanto non si avrebbe con tavolati divisori tradizionali.
Da qui il “problema”, se così vogliamo chiamarlo, di definire l’ingresso rispetto al resto della stanza, quando si tratti di open space. Un’esigenza molto sentita è quella di creare un filtro tra le diverse funzioni, una blanda divisione, quantomeno estetica.
Il progetto per la zona d’ingresso
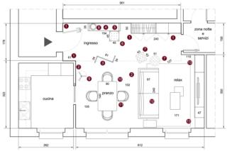
A titolo di esempio, ecco un progetto 3D dell’architetto Ornella Musilli, che ha scelto di differenziare l’ingresso senza prevedere chiusure, in modo più percettivo che volumetrico. Per farlo, ha inserito un paravento per dividere e una stessa finitura/tinta per individuare la zona di entrata.
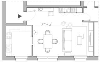
Il soggiorno + ingresso ha una superficie complessiva di 30 mq. Per una funzionale distribuzione degli arredi, sulla parete libera dell’ingresso sono stati sistemati, per prima, la console con lo sgabello e lo specchio, che subito conferiscono all’ambiente un effetto caldo e accogliente, e a seguire il capiente guardaroba-ripostiglio a quattro ante. Collocato in questa posizione, e non vicino all’entrata, l’armadio può avere una profondità maggiore, addossato al muro del disimpegno della zona notte.
L’elemento che maggiormente definisce lo spazio dell’ingresso e crea una separazione tra questo e soggiorno è il paravento in legno, che scherma in parte ma lascia passare la luce attraverso i fori di cui è dotato. All’occorrenza si può spostare per assecondare il desiderio di ambientazioni mutevoli.
Ulteriore elemento che definisce la zona di ingresso, in questo caso prettamente a livello estetico, è il materiale che riveste la parete e il soffitto ribassato che ospita l’impianto di illuminazione: stessa finitura o colore per la boiserie a tutta altezza, la porta blindata, il guardaroba e il controsoffitto.
Foto zona ingresso con diverse soluzioni di colore
Un breve cenno anche al resto dell’ambiente open space che ospita oltre all’ingresso il soggiorno e la zona pranzo, allestite in successione nello spazio vicino alle finestre e più luminoso. Così, vicino alla cucina, c’è il tavolo con le sedie, mentre di fronte alla parete attrezzata con vani chiusi e a giorno è sistemato il divano.
Legenda
- Rivestimento parete, porta blindata e guardaroba/ripostiglio con boiserie di Garofoli
- Pavimento e rivestimento Grande Stone Look Ceppo di Gre’ di Marazzi
- Paravento Hilton di Porada
- Console Asya di Porada
- Specchio Forvanity di Porada
- Sgabello Webby2 di Porada
- Pouf Alcide di Porada
- Lampada da tavolo Bolla di Porada
- Lampada da terra Pileo di Porada
- Tavolo Nené di Midj
- Poltroncina Sonny di Midj
- Divano
- Parete attrezzata (contenitori, libreria, tv)














































