Contenuti trattati
Negli ultimi anni isole e penisole sono diventati veri protagonisti in cucina. Soprattutto in quelle a vista che sono sempre più consuete nelle nostre case, qualche volta per esigenze di spazio qualche volta per scelta, perché corrispondono a uno stile di vita più contemporaneo e aiutano a condividere con famigliari e amici i momenti più conviviali.
Ma se si ha il timore degli odori e dei rumori che, inevitabilmente, si producono quando si cucina, come si può conciliare la presenza di banconi a isola o a penisola con cucine separate magari di dimensioni ridotte?
Vuoi sapere tutto su isole, penisole e banconi in cucina? Leggi
È il dubbio di una nostra lettrice che, per la sua casa ancora in costruzione, ci ha chiesto un’idea che metta d’accorda il suo desiderio di una cucina a vista con un’isola centrale multifunzione con quella del marito che, invece, preferisce una cucina, seppure piccola, ma separata.
In risposta, il nostro architetto, Ornella Musilli, propone tre soluzioni. Nei tre progetti la cucina occupa la stessa posizione e indicativamente il medesimo spazio, di circa 260 x 390 cm. Cambiano la disposizione dei mobili e i sistemi utilizzati per separare la zona cottura dal soggiorno, che risulterà, di volta in volta, risolto in modo diverso.
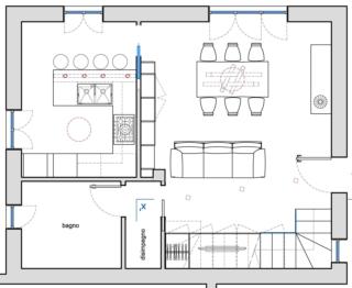
A) Cucina semi-aperta con bancone centrale e pannelli scorrevoli in vetro
Come separare la zona cottura senza rinunciare al living
In questa proposta la cucina è attrezzata su due lati, uno di fronte all’altro. Su quello addossato alla parete, arredato con basi e pensili, è concentrata la zona lavaggio completa di lavastoviglie.
Di fronte a quest’area c’è il blocco operativo con il piano cottura: è composto da una serie di basi circondate da un bancone a sbalzo che funziona come top, ma anche come tavolo per consumare per snack veloci. La composizione è sormontata da un elemento a ponte in cartongesso che si combina con moduli pensili e su cui si innesta un sistema di pannelli scorrevoli in vetro.
Scopri di più sul cartongesso
È pensato per isolare, all’occorrenza, la zona cottura ma lascia il bancone a vista su una parte del soggiorno che gira intorno al volume della cucina: così il piano può diventare un angolo studio/lavoro.
Sulla parete ortogonale è presente una doppia porta a vetri che mette in comunicazione la cucina e il living. A mediare il passaggio fra i due ambienti c’è un ampio tavolo da pranzo, al quale è allineato un divano a tre posti orientato verso una parete attrezzata.
Questa soluzione permette di godere di un living aperto e molto vivibile ma allo stesso tempo di avere un filtro fra i due i due ambienti capace di contenere la diffusione di odori e rumori.
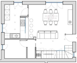
B) Cucina chiusa con composizione a a U e penisola snack
Soluzione funzionale per separare gli ambienti e avere più spazio operativo
Qui la cucina è chiusa in modo tradizionale con una parete in muratura e risulta un po’ più spaziosa.
L’arredo è disposto secondo la cosiddetta composizione a golfo, che disegna una sorta di U: due lati sono appoggiati alle pareti e attrezzati con basi, pensili e armadiature.
Il terzo, collegato al resto della composizione, è costituito da un’ampia penisola che include i fuochi e il bancone snack.
La maggiore superficie destinata alla cucina determina rispetto alla soluzione precedente una diversa disposizione degli arredi dedicati al pranzo e al relax: il tavolo in piena luce è in comunicazione diretta con la porta della cucina, mentre il divano è posizionato di fronte a una parete attrezzata che sfrutta il sottoscala.
C) Cucina con bancone snack verso il soggiorno e struttura a ponte
Il compromesso tra open space e cucina separata
Questa soluzione, che rielabora e riunisce le due precedenti, ripropone la struttura a ponte con basi e pensili, ma in questo caso il piano snack è rivolto verso il soggiorno dalla parte del lato lungo.
La composizione che integra il bancone ospita il piano cottura affiancato da un’ampia superficie libera di lavoro che prosegue e elle con una serie di basi attrezzate con doppio lavello e lavastoviglie.
Di fronte alla porta che dà accesso al locale, sistemata vicino alla cucina, è concentrata una zona office, con armadiature/dispensa e colonne forno e frigorifero.
Le finiture
Per quanto riguarda i colori e lo stile, l’idea è quella di puntare su un pavimento in parquet di rovere naturale e su un arredo di tipo minimale, lineare, con prevalenza di bianco che amplifica la luminosità e la percezione degli spazi, inserendo qualche pezzo colorato come il divano, le sedie, le lampade, per ravvivare l’ambiente e renderlo più dinamico.









































