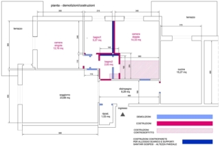
Ricavare secondo bagno: primo progetto
In una prima soluzione progettuale viene mantenuto l’impianto generale della casa, con cucina e soggiorno distanti e con l’infisso vetrato tra sala ed ingresso, che è stato conservato, dato che l’espressa menzione da parte della lettrice ha fatto ipotizzare la volontà di conservarlo.
In tutte le proposte per ricavare il secondo bagno, il locale di servizio è posizionato in modo tale che il tratto di scarico da realizzare sia di lunghezza breve e abbia la necessaria pendenza. Questo obiettivo si raggiunge attraverso l’installazione di sanitari sospesi ed il mascheramento di tubazioni e supporti, che vengono incassati nelle partizioni murarie, dallo spessore aumentato da contropareti ad altezza parziale.
Al secondo bagno si accede dalla camera doppia; all’interno di questo ambito è presente una seconda porta scorrevole salvaspazio, dalla quale si può entrare nel piccolo volume che disimpegna la cameretta ed il bagno più grande.
Per migliorare la funzionalità del bagno con finestra è prevista l’installazione di una vasca asimmetrica; in alternativa, in questo vano potrebbe essere collocata una doccia nello spazio ad angolo più vicino alla porta ed il lavabo essere posto in adiacenza all’infisso esterno.
- porta a battente, filo muro, 80×210 cm – ESSENTIAL di SCRIGNO
- porta scorrevole, senza cornici, 80×210 cm – ESSENTIAL di SCRIGNO
- porta scorrevole, senza cornici, 70×210 cm – ESSENTIAL di SCRIGNO
- porta scorrevole, senza cornici, 60×210 cm – ESSENTIAL di SCRIGNO
- porta scorrevole, senza cornici, con pannello vetrato, 80×210 cm – ESSENTIAL di SCRIGNO
- controparete ad altezza parziale, in struttura metallica e cartongesso, con sostegni per sanitari sospesi nel bagno2, tipo DUOFIX di GEBERIT
- vasca asimmetrica, 100×160 cm – LINEA di GLASS 1989
- sanitari di DURAVIT
- sanitari sospesi e a profondità ridotta di DURAVIT
- lavabo di DURAVIT
- scaldasalviette verticale
- scaldasalviette orizzontale rialzato
- lampada a soffitto
- lampada a parete di FLOS
- faretti led incassati nel controsoffitto
- lampada a sospensione
- tappeto nel soggiorno, DIAMANTINA di AMINI CARPET
Altre due proposte, con interventi maggiori
Se la prima soluzione vista non prevede altre modifiche rilevanti, se non quelle necessarie per ricavare il secondo bagno, ne presentiamo altre due, più “invasive”, utili però a migliorare la vivibilità dell’intero appartamento.
Queste due ipotesi di ridistribuzione – da intendersi come schemi di possibili cambiamenti più incisivi – sono realizzabili previa verifica dei rapporti aero-illuminanti e prevedono la revisione dell’assetto funzionale, pur mantenendo la necessaria vicinanza fra loro dei due bagni ed alla colonna di scarico esistente. In entrambe le piante:
- la zona giorno è open
- nel living è sempre previsto l’affaccio esclusivo su uno dei due terrazzi
- una delle stanze ha un bagno dedicato
- le camere hanno entrambe una superficie maggiore di 14 mq, possono quindi essere destinate a due persone.
La preferenza per l’uno o per l’altro dei due progetti seguenti può ritenersi legata all’affaccio dei due terrazzi, di cui il lettore non ha fornito indicazioni. In questi casi, per esempio, è preferibile optare per quello più silenzioso per la zona notte e per quello più godibile dal punto vista panoramico per la zona giorno.

In questa ipotesi distributiva, l’ingresso si apre sul soggiorno open space con cucina a vista e affaccio sul terrazzo di fronte e a destra dell’entrata principale. La zona servizi si pone a netta separazione fra le aree giorno e notte; inoltre il ripostiglio è ampio e può accogliere più funzioni.

In quest’ultima ipotesi distributiva, la cucina viene spostata (con i relativi impianti) e si affaccia sull’altro dei due terrazzi. La zona giorno – sempre open space – si trova a sinistra dell’ingresso, che dà invece su un corridoio, garantendo una maggiore privacy al living.











































