Quesito di Salvatore: Vorrei sapere come disporre al meglio nel mio soggiorno un divano moderno, una parete attrezzata con tv lcd e un tavolo grande (magari allungabile) dove cenare quando ci sono invitati. E ancora come ricavare un piccolo spazio di ingresso, con attaccapanni e specchio?
- Risponde l’architetto Stefano Gatti – Bellagio, Como – stefano@stefanogatti.eu

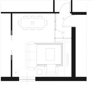
Per risolvere questo problema si è pensato quindi di ricavare una piccola area di ingresso separata dal resto del soggiorno mediante una struttura in metallo e legno: si è scelta questa soluzione piuttosto che una tradizionale divisione con pannelli in cartongesso, per limitare lo spessore delle pareti ed evitare quindi di togliere spazio al salotto.

La struttura della nuova parete verso l’ingresso ospita uno specchio e gli appendiabiti. Uno dei pannelli è apribile e consente l’accesso al soggiorno. Da questo lato la zona giorno si configura come un volume di legno, che puo essere in tinta naturale o del colore che si desidera. Per accentuare lo stacco tra le pareti in legno ed il resto della stanza, la nuova struttura ha un’altezza inferiore a quella del locale. Ospita una libreria dalla quale prende il via il mobile tv: questi gli elementi che insieme a un divano moderno e a una poltrona definiscono la zona conversazione. Il tavolo è stato posto invece vicino alla parete di fondo della stanza: i pannelli della zona di ingresso (una volta chiuso anche il pannello porta) fanno da quinta alla zona pranzo contribuendo, grazie alla parete in legno, a rendere l’ambiente più caldo e accogliente.










































