Contenuti trattati
Quando in una stanza ci sono diverse aperture sulle pareti e le dimensioni sono contenute, può non essere così facile trovare la migliore distribuzione delle funzioni e arredare senza incertezze. In questi casi, difficoltà ricorrenti sono per esempio negli open space poter arredare dividendo almeno idealmente cucina e soggiorno, oppure zona conversazione e zona pranzo, magari trovando anche la collocazione ideale per la tv rispetto al divano o persino dal tavolo.
Ecco il progetto 3D di un living tutt’altro che facile da arredare, realizzato dall’architetto Elisa Coffinardi.
Il progetto per il soggiorno
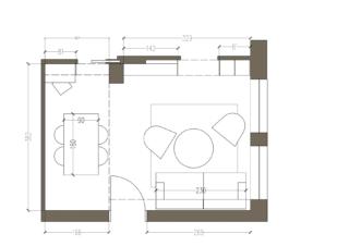
Il soggiorno da arredare presenta una sola parete totalmente libera, cioè senza aperture; sulle altre ci sono: la porta della cucina, il varco per la zona notte e tra le due anche un pilastro sporgente di circa 60 cm sulla seconda; sulla terza la porta di ingresso e sulla quarta finestra e portafinestra.
Solitamente, quando c’è un’intera parete libera, l’ideale è sfruttarla il più possibile, ma in questo caso – utilizzandola per il divano – non si sarebbe potuto mettervi di fronte il mobile tv; e, appoggiandovi un sistema giorno-libreria, sarebbe stato impossibile sistemare il divano al centro stanza, per le dimensioni contenute del locale.
La soluzione adottata è stata invece quella di inglobare porte e pilastro in una libreria su misura, con un vano tv al centro; di fronte, solo lievemente decentrato, il divano con due poltroncine disegnano lo spazio della zona conversazione.
Lo spazio libero rimasto può ospitare una comoda zona pranzo davanti alla porta della cucina, definita e incorniciata da una veletta, e all’interno della composizione libreria un piccolo angolo studio con mini scrivania illuminata dall’alto da faretti a incasso.
Stesse finiture, diverse solo per le poltrone
Quando le finiture di fondo dell’ambiente sono state scelte in colori neutri (in pratica, non colori), con il tempo si può facilmente cambiare look all’ambiente sostituendo solo accessori e complementi, piccoli elementi d’arredo che in genere hanno costo ridotto, magari rivestendo le poltrone con nuovi tessuti, magari nei colori portati in auge delle tendenze più recenti. Qui sotto, lo stesso ambiente con poltrone di colore bordeaux.
Clicca per vedere full screen lo stesso ambiente con poltrone bordeaux

Nella zona conversazione da arredare, si può prevedere in alternativa al divano due posti con due poltroncine (pianta più in alto) un divano con chaise-longue abbinato a un pouf.







































