La presenza di superfici vetrate è decisamente un plus in una casa, grande o piccola che sia. Qualche volta
Il progetto
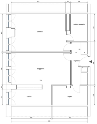
L’ingresso della casa è un corridoio con rientranze che vengono chiuse con ante pieghevoli; una viene attrezzata come guardaroba, l’altra come utile ripostiglio; una terza, ricavata all’interno del bagno, chiusa con scorrevoli e trasformata in mobile lavanderia.
Vicino alle vetrate, nel soggiorno, viene sistemata la zona pranzo, mentre a lato della porta d’entrata il divano ad angolo è completato da due i tavolini. A servizio di tutte le aree funzionali, è stata prevista una composizione lineare di contenitori, vano tv e libreria, alle spalle del tavolo. Di fronte a questa, il grande piano operativo esistente scherma in parte la cucina; gli vengono accostati degli sgabelli per poterlo sfruttare anche come bancone snack per pasti veloci.
Nel bagno, c’è posto per il doppio lavabo e un box doccia maxi.
Nella camera, lungo il percorso verso l’infisso esterno sono sistemati l’angolo relax e la spazio adibito a studio. L’ambito con le due porte (quella della stanza e quella della cabina armadio) è reso uniforme da una controsoffittatura con faretti incassati e arredato con una grande cassettiera.Le attrezzature della cabina armadio sono addossate a tre pareti.
Legenda

Legenda arredi camera: 1. letto Nathalie di Flou – 2. poltrona Alton di Lema – 3. tavolino Cruise di Lema – 4 cassettiera Flindi Lema – 5. scrittoio Saffo di Porada – 6. sedia Ella di Porada – 7. libreria Cell di Porada – 8. tavolino Pausa di Porada – 9. specchio Hook di Porada – 10. carta da parati di Yo² – 11. parquet di Listone Giordano – 12. lampade di Nemo – 13 radiatore di Tubes – 14 tappeto di Sitap









































