Contenuti trattati
Ampliare la cucina – uno spazio in cui funzionalità, convivialità e stile devono coesistere in equilibrio – è una scelta che migliora non solo la vivibilità degli spazi, ma anche l’esperienza quotidiana di chi li abita. Ogni progetto deve essere studiato con cura, valutando sia i vantaggi funzionali che le eventuali rinunce.
Quando l’area dedicata alla cucina risulta insufficiente, esistono molteplici strategie per ampliarla e renderla più fruibile. Tuttavia, ogni intervento richiede un’attenta valutazione degli spazi esistenti e delle priorità abitative, poiché aumentare le dimensioni della cucina spesso implica ridisegnare altre zone della casa.
Se l’obiettivo finale di creare un ambiente armonioso, capace di adattarsi alle necessità e al gusto estetico dei proprietari di casa è sempre il medesimo, sono diverse invece le possibili modalità per ottenerlo: dall’utilizzo dell’open space agli interventi che ridisegnano stanze adiacenti la cucina.
Ampliare la cucina unendola al soggiorno
Il più frequente e scontato intervento è quello di ingrandire la cucina rinunciando alla separazione dal soggiorno e ricorrendo a un open space che li integri. Unire la cucina con il soggiorno, creando un ambiente open space, consente di eliminare le barriere visive, regalando in genere maggiore luminosità e senso di ampiezza.
La zona giorno si trasforma in uno spazio polifunzionale, perfetto per accogliere gli ospiti o vivere la quotidianità in modo fluido.
Tuttavia, è preferibile organizzare il layout con cura, delimitando visivamente le aree con elementi come isole, penisole o pavimentazioni diverse, per garantire una separazione funzionale tra zona cottura e living.
Ingrandire la cucina riducendo il corridoio
Ridimensionare o eliminare il corridoio permette di guadagnare metratura senza compromettere altre stanze. Spesso infatti i corridoi occupano superfici ampie ma poco sfruttate. Recuperare parte del loro spazio per ampliare la cucina può essere una scelta strategica, soprattutto negli appartamenti dove ogni metro quadrato è prezioso.
Questo intervento richiede un’attenta progettazione, per rispettare i rapporti aeroilluminanti e avere un corretto ricambio d’aria e, quando possibile, per creare al posto del corridoio armadiature-parete o nicchie strategiche.
Avere una cucina più grande togliendo un po’ di spazio alla camera
In alcune abitazioni, la camera adiacente alla cucina può rappresentare un’opportunità per ampliare la zona cottura. Riducendo leggermente la superficie della stanza da letto fino alla metratura minima necessaria si può ottenere un incremento significativo dello spazio in cucina, ideale per chi ama cucinare o desidera un’area pranzo più comoda.
Aumentare la superficie della cucina ridimensionando un po’ il bagno
Un’altra opzione – se la pianta della casa lo consente – è sottrarre spazio al bagno per ampliare la cucina. Ad esempio, una stanza da bagno (anche non enorme) può essere ridotta senza sacrificare gli elementi essenziali (lavabo, sanitari e doccia/vasca). In questo caso, è necessario pianificare attentamente eventuali modifiche nella distribuzione degli impianti, specie se si deve spostare il wc. Questa soluzione è particolarmente adatta per case con più bagni, dove una leggera riduzione di uno dei servizi può rivelarsi poco impattante.
Recuperare metratura per la cucina dal ripostiglio
Nei contesti in cui è presente un ripostiglio vicino alla cucina, eliminarlo o ridimensionarlo può rappresentare un’opzione intelligente per guadagnare spazio prezioso. Questo intervento è particolarmente indicato per chi desidera ampliare la cucina senza intaccare le stanze principali della casa. Per compensare la mancanza di un ripostiglio, è possibile sfruttare soluzioni alternative come la realizzazione di ripostigli nel controsoffitto.
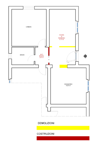
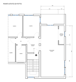
6 PROPOSTE CHE CONSENTONO DI AMPLIARE LA CUCINA
Ristrutturare casa permette di far rinascere un’abitazione cambiandole completamente i connotati e plasmandola secondo le proprie esigenze. Certo, ogni modifica migliorativa su un ambiente ha conseguenze sugli altri. Per esempio, per ampliare la cucina di un appartamento che deve essere ristrutturato, quali stanze possono doverne “fare le spese”? Vediamo alcune proposte di progetto per ingrandire la cucina, realizzate dall’architetto Ornella Musilli, esemplificative delle eventuali piccole e grandi rinunce che si devono mettere in conto.
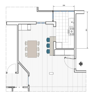
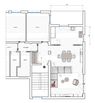
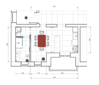
A – Eliminando il divisorio tra cucina e disimpegno di ingresso
In questo progetto demolendo la parete che separa dall’entrata si ottiene un locale unico, che comprende cucina, entrata e soggiorno. Viene realizzato il prescritto antibagno e sostituita la porta di ingresso, che avviene direttamente dall’esterno, con un infisso vetrato e blindato.

Pianta con cucina ampliata eliminando il vano di ingresso accorpato al centro a soggiorno da un lato e cucina dall’altro.
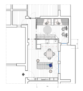
B – Sottraendo spazio all’ingresso
Nel progetto sotto si guadagnano i centimetri necessari, ricavandoli dall’ingresso, per ampliare la cucina sfruttando anche la parete corta del locale, che prima non aveva la profondità necessaria per creare una composizione su due pareti, ad angolo. L’armadio all’entrata è traslato, e le sue ante a battente vengono sostituite con ante scorrevoli.
C – Sottraendo spazio al soggiorno
In questo progetto, al posto dell’angolo cottura, si forma un locale abitabile chiuso con un’ampia porta scorrevole a scomparsa in vetro con due ante.
D – Togliendo spazio alla camera e al disimpegno
Il piccolo soggiorno con cucina in linea viene ampliato formando un volume più ampio che ospita una cucina ad angolo. Il disimpegno è ridimensionato e la camera mantiene la superficie utile della camera doppia.
E – Eliminando il ripostiglio
La cucina ha una pianta articolata e cuna zona ripostiglio. Per mantenerla separata e ingrandirla, potendovi sistemare una penisola, una base ribassata, il grande frigorifero a due ante recuperato dalla casa precedente ed i pensili si elimina il vano di servizio.
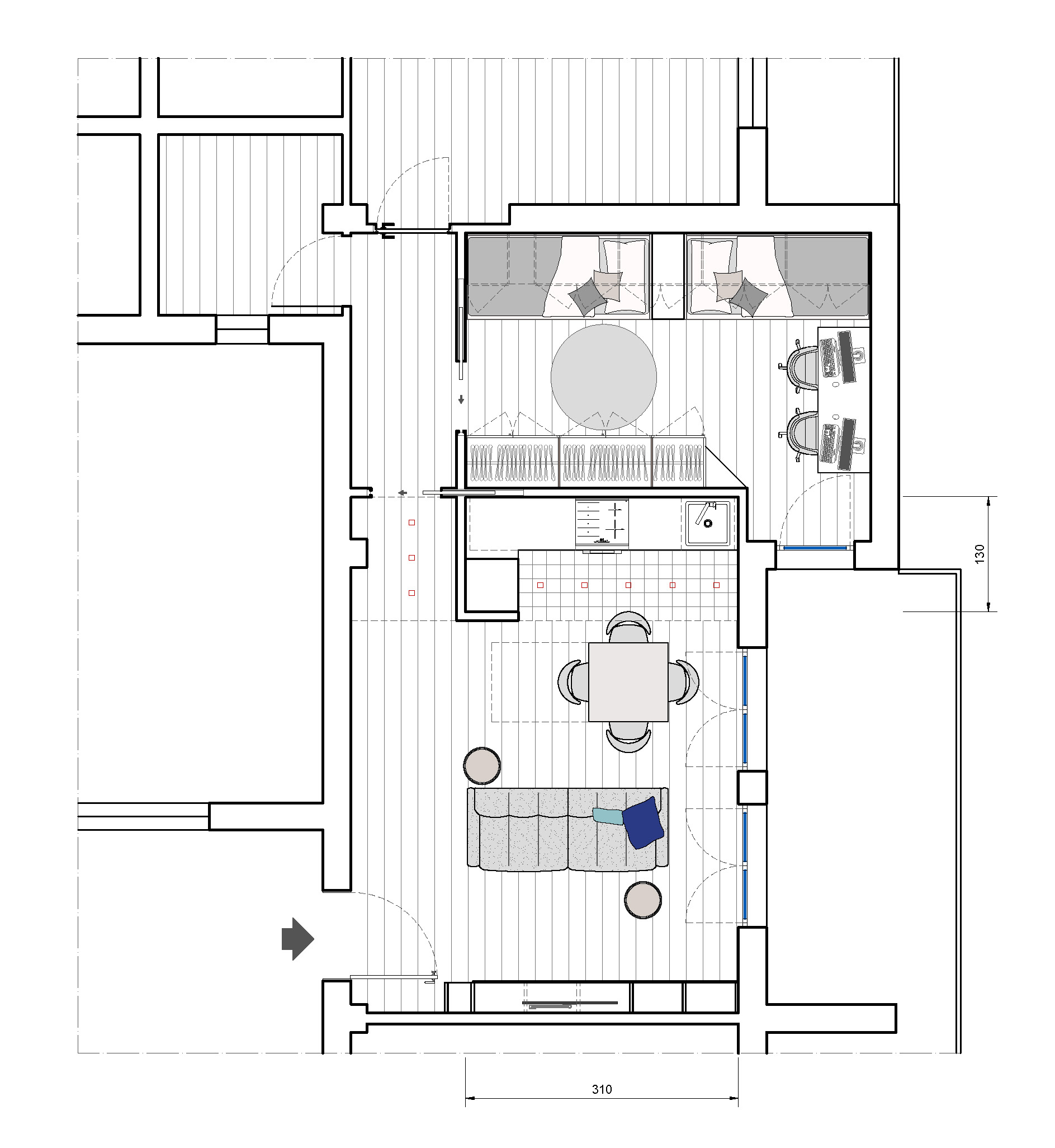
F – Sottraendo spazio al bagno
Spostando la parete del bagno di trenta centimetri si ottiene una cucina più ampia, la possibilità di inserire una penisola che aumenta i volumi contenitivi e separa visivamente l’angolo cottura dalla zona pranzo. Nell’antibagno è posizionato un arredo per lavatoio e lavabiancheria.

































































