Contenuti trattati
È meglio optare per la cucina a vista, più moderna e contemporanea, o per la cucina abitabile, separata da una porta e isolata per rumori e odori (oltre che per l’eventuale disordine che resta “nascosto”)? O meglio ancora trovare una soluzione intermedia come può essere quella di una separazione con ante a tutta altezza vetrate, così che la divisione è fisica ma non visiva. Vediamo insieme alcuni esempi e cominciamo dall’ultima opzione, quella della vetrata, che forse annulla gli svantaggi delle altre due soluzioni.
3 cucine con vetrata: separazione fisica e non visiva
La divisione dalla zona pranzo
In questo progetto, la cucina abitabile resta a vista dietro una vetrata di super tendenza. Inizialmente era un locale separato rispetto al resto della zona giorno, cui accedere attraverso una semplice porta a battente. Il nuovo progetto la ha ripensata come parzialmente aperta e messa visivamente in comunicazione con la zona pranzo.
Serramento con profili metallici, color ruggine
La cucina in laccato bianco è stata recuperata dalla vecchia abitazione e riadattata. Il nuovo ambiente è stato integrato visivamente nella zona giorno, da cui è però separato grazie all’inserimento di una vetrata, con profili in un colore caldo che scalda le tonalità fredde del verde, presente nelle cementine e a parete.

Progetto arch. Valentina Fantin e Tommaso Lingeri, studioariamilano. Foto Cristina Galliena Bohman, styling di Laura Mauceri. Clicca qui per vedere le foto di tutta la casa.
Un infisso ad arco vetrato divide cucina e soggiorno
La soluzione che rende indipendente l’area operativa, pur lasciandola a vista, e aggiunge un tocco industrial con il serramento vetrato in ferro verniciato, realizzato su misura dal fabbro, seguendo le curve dell’arco fra cucina e soggiorno, in omaggio alla tradizione mediterranea, con stondature non in muratura, ma modellate ad hoc in cartongesso.

Progetto: Studio ABBW, Martina Franca (TA), Tel. 347/5858945 – abbw.it Foto: Studio Roy, styling Lidia Elisa Covello. Clicca qui per vedere tutte le foto della casa.
4. Cucina abitabile con piano snack o cucina a vista con isola più tavolo?
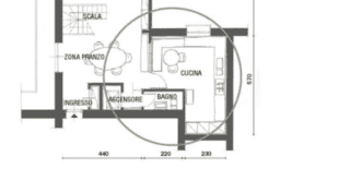
Per l’appartamento dalla suddivisione razionale, con ambienti di dimensioni adeguate e zona giorno e notte nettamente separate, abbiamo previsto entrambe le soluzioni: nel primo progetto la cucina rettangolare è separata, arredata su due lati, con la zona pranzo collocata in soggiorno; nel secondo la cucina è a vista sul soggiorno con penisola a muro. Nel primo, il tavolo di forma rotonda, che si inserisce nello spazio d’angolo, può essere anche di tipo allungabile perché lo spazio intorno ne consente l’apertura. L’armadio della camera matrimoniale è presente solo nel progetto 1, mentre nel 2 è prevista la cabina armadio. Dopo il 5° progetto, più sotto, puoi vedere questo progetto in dettaglio.
5. Cucina separata o cucina open space? Due progetti con pro e contro

La proposta A della cucina separata è adatta a tutti quelli che temono nel tempo di non poter scendere a patti con tutti gli “aspetti negativi” della zona cottura aperta sul living.
La seconda proposta, la B, è quella che disegna una zona giorno più adatta alla convivialità, più godibile e ampia, ma quella che può presentare alcuni inconvenienti: non bisogna infatti avere timore di vedere il disordine dei piatti da risistemare in lavastoviglie, di sentire gli odori del pranzo o il rumore di sottofondo di piatti, bicchieri e stoviglie, e peggio ancora della cappa e della lavastoviglie in funzione. Clicca qui per sapere di più dei progetti.
SOGGIORNO E CUCINA INSIEME
6. Soluzione intermedia: la cucina aperta sul soggiorno ma schermata
Tra cucina separata o a vista, spesso si cerca una soluzione intermedia con la zoan cottura in parte schermata, defilata, specie se l’ingresso di casa dà proprio sulla zona giorno. Se le dimensioni ridotte e lo sviluppo planimetrie del locale non consentono di poter ricavare una cucina abitabile separata dalla zona giorno, la via intermedia è più che auspicabile. Clicca qui per sapere di più su questa opzione.
7. Soggiorno-cucina in un unico ambiente, vicino all’ingresso
Quando la posizione degli impianti non è ottimale, può essere difficile individuare una soluzione d’arredo funzionale per soggiorno e cucina insieme. In questo appartamento, la zona giorno open space era caratterizzata dalla presenza della canna fumaria in una precisa posizione e altri due elementi costituivano due punti fermi del locale: la posizione dei termosifoni (sulla parete del camino) e degli attacchi della cucina. Non potendo proporre nuovi lavori si è cercato dunque di sfruttare lo stato di fatto in modo positivo: i caloriferi vengono sostituiti da termoarredi con finiture e colori che possono esser scelte a piacere. La cucina si trova dall’altro lato dell’ambiente, con lavello di fronte alla zona d’ingresso. La vicinanza alla porta di ingresso suggerisce inoltre che la prima delle armadiature a colonna della cucina, pur esteticamente legata ad essa, venga adibita a guardaroba per giacche e cappotti, pratico vicino all’entrata. Clicca qui per vedere tutto il progetto

CUCINA A VISTA SULL’INGRESSO
8. Come definire la zona di ingresso aperta sulla cucina? Una stanza nella stanza, grazie a penisola e portale

Di fronte a una casa da ristrutturare, anche senza prevedere rilevanti modifiche strutturali o di diversa distribuzione degli ambienti, non si può eludere la domanda cruciale, che in ogni casa attuale viene posta al momento di prevedere lavori di restyling o rinnovo totale: mantenere la cucina separata come in origine o inserirla a vista nel soggiorno open space?
Prendiamo in esame l’appartamento della lettrice Rosanna M., per mostrarle un progetto per entrambe le opzioni, cucina a vista e cucina separata, con relative proposte d’arredo per la zona giorno e la zona notte.
Che cosa serve sapere per progettare la cucina
Progettazione
- Come arredare la cucina? 10 progetti con soluzioni e idee da copiare
- Cucine con isola: più di 50 progetti con tantissime idee da copiare
- Progettare la cucina: angoli ben risolti nell’open space
- Cucina con bancone: composizione dinamiche
- Cucine con penisola, ideali nell’open space o negli ambienti doppi
- 3 progetti cucina per una pianta “difficile”
- Progettare bene la cucina. Per aspiranti chef
- Una cucina trasformata dalla luce e nello stile: foto del prima e dopo la ristrutturazione. Seconda puntata
Scegliere il colore della cucina
- Quali colori scegliere per una cucina moderna?
- Cucine bianche: 27 modelli in un colore sempre di moda, per ambienti grandi o piccoli
- Cucine grigie: 25 modelli, moderni e classici
- Cucine in vero legno: 30 modelli di qualità, di stile sia classico sia contemporaneo





















































