Con l’obiettivo di trasformare in un’unica casa “BIO” due vecchie unità abitative in un edificio dell’800 sulle colline, si è realizzata una ristrutturazione totale, mirata ad ottenere ambienti salubri oltre che confortevoli, eliminando ed evitando qualsiasi fonte di inquinamento indoor. Per questo sono stati scelti materiali naturali e privi di sostanze volatili (VOC) o con un bassissimo livello di emissione delle stesse. L’edificio era in pessime condizioni di manutenzione a causa degli interventi “fai da te”, effettuati negli anni dai precedenti proprietari, che ne avevano peggiorato la vivibilità e alterato con smalti e vernici gli originari elementi in muratura e in legno.
Il principale obiettivo progettuale è stato quindi quello di modificare la distribuzione interna con la creazione di una sola unità dalle due preesistenti e quello di sanificare la situazione precedente, realizzando condizioni di benessere e salubrità ottimali. In fase progettuale, l’input seguito è stato quello di valorizzare gli interni con più “ Spazio, Aria, Luce” per aumentare il comfort interno creando locali il più spaziosi e illuminati possibile. Con queste premesse sono stati ampliati gli ambienti, demolendo alcune pareti divisorie e rimuovendo i solai che ne riducevano l’altezza, riproposte finestre che nei vari interventi precedenti erano state tamponate e aggiunti nuovi lucernari.
Pensata e progettata per un caso particolare, per una persona che non può venire a contatto con sostanze chimiche, generalmente tollerate dai più, questa abitazione è però un esempio perfetto per chiunque voglia avere interni liberi da sostanze inquinanti di qualunque tipo. Laddove possibile, è stato quindi eliminato (o reso innocuo) ogni possibile elemento di “disturbo”. Si è quindi proceduto alla demolizione e rimozione dei vecchi intonaci e delle vernici e all’eliminazione di tutte le tracce del passato, che potessero in qualche modo compromettere il risultato.
Tutte le pareti sono state intonacate e trattate con calce naturale e successivamente tinteggiate con idropittura lavabile ipoallergica (Painting natural di Boero) e rasate con gesso bio ecocompatibile, che assorbe e abbatte le sostanze nocive indoor (bio gesso della Kerakoll mangia-VOC). In tutta l’abitazione lo stile è essenziale e minimalista, con arredi realizzati con materiali naturali (legno non trattato, vetro, metallo). A terra è stato posato un pavimento in ceramica dalla tonalità molto chiara, che aumenta la luminosità negli ambienti ma evoca il calore del legno imitando l’estetica delle doghe. Dettaglio molto importante per la salubrità degli interni, è stato l’utilizzo per la messa in opera delle piastrelle di collanti ecocompatibili e riciclabili, e di stucco a bassissima emissione di sostanze organiche volatili. Le finestre sono in alluminio a taglio termico, verniciate a polvere epossidica a oltre 180° C, procedimento grazie al quale non vi sono emissioni di sostanze volatili.
Per evitare i moti convettivi tipici degli impianti tradizionali di riscaldamento, si è scelto un impianto di tipo radiante a pavimento con caldaia a condensazione che è stata nascosta nell’intercapedine della parete.
Per alcuni elementi, si è provveduto a “un’incapsulamento”: il solaio soprastante per esempio, costituito da travetti e tavelle trattati in precedenza con numerose mani di smalto di dubbia qualità, è stato incapsulato con un controsoffitto in uno speciale cartongesso (Saint Gobain con tecnologia Activ’ Air (allegato1) che contribuisce a eliminare parte della formaldeide presente negli ambienti interni e, quindi, a purificare l’aria in modo continuo e duraturo. Inserendo all’interno del controsoffitto, un materiale speciale (di Actis) si è provveduto all’isolamento termico.
Anche la canna fumaria è stata incapsulata. Questa attraversa la casa ed appartiene a proprietà sottostanti; ciò ha reso impossibile l’intervento dall’interno. Quindi, si è passati a interventi alternativi: nello specifico è stata sigillata con l’applicazione di un prodotto impermeabilizzante (Mapei); successivamente si è applicata calce naturale a più riprese con lo scopo di impedire la fuoriuscita di esalazioni all’interno dell’abitazione.
Contro l’inquinamento elettromagnetico, la centralina dell’impianto televisivo, che precedentemente era collocata all’interno dell’appartamento, è stata riposizionata nel corridoio condominiale. Per lo stesso motivo anche l’impianto elettrico è stato realizzato all’esterno della camera da letto (la stanza in cui si trascorrono più ore) e si sono utilizzate tecnologie ai led per l’illuminazione.
Ultimo intervento “speciale”, per una eventuale bonifica dei locali, si è lasciato un foro di ventilazione verso l’esterno per poter collegare un apparecchio purificatore d’aria IQAir®.
Clicca sulle immagini per vederle fullscreen. Più sotto trovi le immagini commentate.
- Nella zona giorno di quasi 30 mq si trovano sia la cucina a vista, sia la sala da pranzo. La cucina è realizzata completamente in acciaio inox, un materiale igienico, facile da pulire e intaccabile da muffe e acari. Volendo creare un ambiente più salubre possibile, si è scelto un piano cottura elettrico a induzione che, a differenza dei modelli a gas, non emana fumi durante la cottura delle pietanze. ‹ Piano cottura di Smeg
- Sempre nella zona giorno è stata ricavata un originale libreria a muro, in cui i libri sono “sottovuoto”: in questo caso la stampa di libri e giornali creava disturbo alla proprietaria, ma questo sistema è un’ottima soluzione anche contro l’accumulo di polvere, specie per chi soffre di allergie. L’accostamento di acciaio e vetro con la pietra viva della parete a vista crea un netto ma interessante contrasto con lo stile piuttosto rustico dell’edificio. ‹ Libreria vetrata di Lucani Srl
- Anche il pavimento in ceramica dalla tonalità molto chiara che riproduce l’estetica delle doghe di legno è stato posato con collanti ecocompatibili e riciclabili e stuccato con prodotti specifici a bassissima emissione di sostanze organiche volatili, a garanzia di un rivestimento salubre. Una grande finestra per tetti assicura luce diretta al corridoio che attraverso il disimpegno porta al bagno. › Pavimento di Florim › Colla H40® Eco Extraflex ‹ Stucco Fugabella® Eco 2-12 di Kerakoll
- Nella camera vi è soltanto il letto realizzato in legno naturale non trattato. Da qui si ha accesso alla cabina armadio, ricavata dietro la zona lavanderia. L’illuminazione è stata realizzata con tecnologie a LED; per limitare al massimo l’inquinamento elettromagnetico nell’ambiente, l’impianto elettrico si trova all’esterno della stanza. Il riscaldamento a pavimento non crea il problema dei moti convettivi tipici di termosifoni e ventilconvettori. ‹ Impianto di riscaldamento a pavimento di HS Srl di Canali Ivan
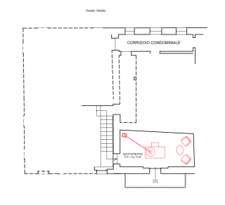
- Attraverso la scala in ferro bianca, si sale dalla camera a un piccolo ambiente sottotetto, utilizzato come studio-rifugio. Tutti i serramenti dell’abitazione sono in alluminio a taglio termico, verniciati a polvere epossidica a oltre 180° C, un trattamento che impedisce l’emissione di sostanze volatili. ‹ Serramenti di Lucani Srl
- Nel “rifugio” al piano superiore, da cui si gode una stupenda vista sulle colline circostanti, sono state utilizzate – come nel resto dell’abitazione – finestre ad anta unica con apertura oscillobattente, che permette la rotazione dell’anta sia sull’asse verticale sia su quello orizzontale inferiore. Il solaio è stato incapsulato con un controsoffitto in cartongesso utilizzando una specifica tecnologia che contribuisce a eliminare parte della formaldeide presente nell’ambiente interno e quindi a purificare l’aria in modo continuo e sicuro. ‹ Cartongesso con tecnologia Activ Air di Saint Gobain
- Il bagno resta separato dal disimpegno da una parete in vetro che lo lascia a vista. Tutte le pareti dell’abitazione sono state intonacate e trattate con calce naturale e poi pitturate con idropittura lavabile ipoallergica prodotta senza l’aggiunta di composti organici volatili e conservanti. Per la rasatura si è utilizzato un gesso bio ecocompatibile, attivo nell’assorbimento e abbattimento degli inquinanti indoor. ‹ Idropittura Bellarya di Boero ‹ Gesso Bio Gesso Intonaco mangiaVOC® di Kerakoll
- L’ampio bagno di quasi 5 mq ha anche una zona relax da usare dopo l’idromassaggio: il piano di appoggio del lavabo è sagomato in modo da proseguire più in basso e trasformarsi in una panca, allineata al bordo della vasca.
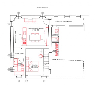
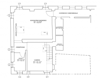
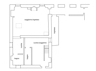
L’immobile si estende su una superficie netta calpestabile di 70 mq ed è composta da:
LAVANDERIA di 2,04 mq: data la presenza di lavatrice e asciugatrice, che sono fonte di umidità e quindi di muffe e acari, il locale è accessibile esclusivamente dal corridoio condominiale.
soggiorno-CUCINA: il soggiorno di 28.30 mq ospita anche le funzioni di cucina e pranzo. La cucina a vista è costituita completamente di acciaio, materiale facile da pulire e igienico, non attaccabile da muffe ed acari.
BAGNO di 4,75 mq: vi si accede dall’antibagno che disimpegna anche la camera.
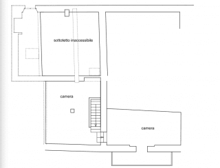
CAMERA DA LETTO di 17,10 mq è arredata dal solo letto in legno naturale non trattato, come guardaroba, una cabina armadio, ricavata nella zona retrostante la lavanderia. Da qui, inoltre, attraverso la scala in ferro bianca, è possibile raggiungere la piccola soffitta che si rivela essere un prezioso rifugio dal quale godere della vista delle colline circostanti.
Impresa costruttrice: Panta Edil, Parma (Tel. 0521/674026)
Foto: Sara Soliani

































































