Il progetto ha salvaguardato molti tratti caratteristici dell’edificio industriale preesistente. Come l’orditura in legno del tetto, le cui capriate sono state ripristinate, e i mattoni faccia a vista, che rivestono la canna fumaria del camino. A questi si aggiungono poi le pietre autentiche che ricoprono la struttura del focolare, recuperate dopo l’opera di demolizione. Nuove, ma ispirate a quelle del passato, le finiture: il parquet in listoni e il pavimento in cotto artigianale, ma anche l’intonaco di tipo tradizionale. L’arredamento si integra perfettamente al contesto, valorizzando il carattere degli interni con pezzi di antiquariato mixati a quelli vintage e ad altri costruiti in muratura.
Clicca sulle immagini per vederle full screen
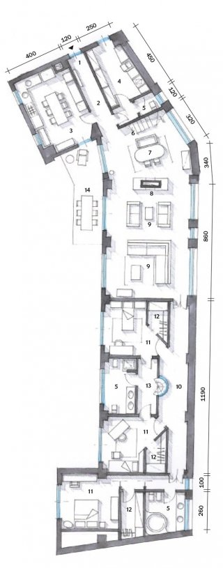
Di ampio respiro e luminoso, l’ambiente giorno è affacciato direttamente sul giardino e gode di doppio riscontro d’aria. Fulcro dell’abitazione, prevede alle estremità la parte privata da un lato e quella dei servizi dall’altro, ed è concepito come uno spazio fluido privo di ripartizioni, scandito solo dalla successione degli elementi presenti, la cui posizione centrale lascia passaggi laterali. Nell’insieme spicca l’imponente camino bifacciale in muratura che separa la zona pranzo da quella relax. La prima abbina al tavolo tipologie di sedute differenti, fra cui una panca alla quale è stata aggiunta un’alta cuscinatura per adattarne l’altezza. Il salotto è a sua volta risolto in porzioni indipendenti e contigue, arredate rispettivamente con due divani in pelle posti di fronte e uno in muratura angolare rivolto verso l’esterno. Predominante in tutto il soggiorno è la citazione del passato, grazie a un ideale fil rouge che lega l’edificio antico alla nuova configurazione, il cui tramite sono i materiali originali riconvertiti.
- Nel living, come in tutta la casa a eccezione della cucina, il pavimento è un parquet in listoni prefiniti, essenza doussié, incollati sul massetto. L’effetto mélange è dovuto alle diverse sfumature che questo legno assume, accentuate anche dalla verniciatura.
- All’interno della casa le pareti sono trattate con intonaco di tipo tradizionale, ottenuto miscelando in opera sabbie, leganti e additivi. Secondo la tecnica “a fresco”, la tinteggiatura è stata contestuale all’applicazione di questo impasto, pigmentato con ossidi per ottenere un effetto antico. La zona pranzo è arredata con mobili di recupero, rinnovati nell’aspetto grazie ai complementi tessili. Gli oggetti sul piano sono di Jardin d’Ulysse e di Pomax. A terra un kilim, tappeto dal caratteristico tessuto a trama con fili di diversi colori.
Eredità della destinazione d’uso originaria è l’altezza di 650 cm degli interni, sfruttata in più punti della casa per aggiungere un livello sopraelevato. Nel grande soggiorno è stato per esempio realizzato un soppalco, accessibile tramite una rampa lineare alle spalle del tavolo; affacciato sullo spazio sottostante, è utilizzato per un ulteriore salotto. Tutta la sua struttura è in ferro: leggera e integrata nell’ambiente grazie alla verniciatura in tinta neutra satinata che la rende quasi impercettibile. Gradini e pavimento sospeso sono invece in tavole di legno doussié, stessa essenza del parquet al piano inferiore per avere un effetto di continuità visiva. La scala è agganciata da un lato alla parete, mentre dall’altro è sorretta da un profilo metallico che segue la sagoma della salita ed è fissato all’inizio a terra e all’arrivo al muro esterno. La ringhiera è di tipo tradizionale con tondini posati in verticale. La statica del piano di calpestìo è garantita da travetti, anch’essi in ferro, posti in senso traversale e incassati nella muratura alle estremità.

La cucina si trova nella porzione iniziale del fabbricato, che è interamente dedicata ai locali di servizio; alla stanza si accede tramite un corridoio d’ingresso che disimpegna anche gli altri vani (lavanderia e il bagno) e conduce al soggiorno. Di forma regolare e aeroilluminata con due aperture attraverso le quali gode della vista diretta sul giardino, questo ambiente è arredato su due lati con una composizione angolare che si sviluppa anche sotto le finestre; al centro un ampio tavolo in essenza – disposto secondo l’asse longitudinale per sfruttare la lunghezza – risponde all’esigenza di pranzare in un’atmosfera calda e accogliente. L’arredamento rispecchia lo stile della casa e della sua architettura, con soluzioni “classiche” adattate alle abitudini contemporanee, che prevedono realizzazioni su misura (basi in muratura con contenitori in legno) ed elementi di produzione.
- La zona cottura è attrezzata con il piano in acciaio a incasso filo top, dotato di cinque fuochi a griglie singole in ghisa. In corrispondenza, la cappa cilindrica a parete, modello Latina di Boffi del 1992.
- Al centro della stanza al grande tavolo in essenza sono abbinate sedie di colore differente, in tre tonalità – rosso, azzurro e legno naturale – che si armonizzano bene; sono stati prodotti negli anni ’80 per la linea Mondo di Cappellini.

Articolata in tre camere da letto e doppi servizi, la zona notte dell’abitazione è distribuita da un corridoio che parte dal soggiorno. Lungo questo passaggio, che poi si sviluppa a L, si aprono gli accessi alle stanze, dotate di cabina armadio e affacciate sul fronte del giardino. Il soffitto a falde, con l’originaria struttura a vista, prosegue in questa zona valorizzando le caratteristiche architettoniche degli interni. Identica anche la pavimentazione in legno, mentre alle pareti si è optato per una tonalità più intensa, senza rinunciare all’effetto “antico”.
- In soggiorno il passaggio verso la zona notte è scandito da una serie di nicchie ricavate nella parete esterna, sfruttando lo spessore di 60 centimetri. All’interno, vasi e oggetti decorativi.
- La camera doppia è arredata in modo essenziale, con il letto in metallo e due tavolini in alternativa ai comodini. Ai colori caldi del legno del pavimento e delle pareti abbina le tonalità celesti della biancheria e della testata. In essenza anche i serramenti nuovi, che sono in rovere tinto scuro.
- Nel bagno i lavabi ovali in ceramica sono a incasso sotto top. Questo è formato da una lastra unica levigata di pietra di Luserna. È abbinata rubinetteria monoforo da appoggio sul piano, ispirata ai modelli in stile (serie Olivia di Fima Carlo Frattini). Per le pareti, trattamento con marmorino impermeabile.
Del corpo originario dell’abitazione è stato possibile mantenere solo la prima porzione, quella ora destinata ai servizi, mentre tutto il resto è stato demolito e ricostruito fedelmente.
● Anche i vecchi muri divisori sono stati eliminati per lasciare posto alla nuova ripartizione, che si basa sulla separazione in tre aree funzionali distinte.
● Il lay-out tiene conto anche del doppio affaccio di cui gode l’edificio, posizionando gli ambienti verso il giardino e i passaggi verso il lato strada. In corrispondenza della zona pranzo, un bersò prolunga all’esterno lo spazio attrezzato.

2 Corridoio
3 Cucina
4 Lavanderia
5 Bagno
6 Scala per soppalco
7 Zona pranzo
8 Camino bifacciale
9 Salotto
10 Corridoio zona notte
11 Camera
12 Cabina armadio
13 Disimpegno
14 Bersò in giardino



Interior designer: Marco Preti, mpreti1@libero.it, Stylist: Barbara Vecchi, info@barbaravecchi.it – Foto di Cristina Galliena
































































