Contenuti trattati
Soprattutto nelle case di dimensione contenuta è importante che gli spazi siano flessibili e, quando possibile, anche trasformabili. Un sistema che rende facile un cambio di profondità e di prospettiva è quello di inserire pareti scorrevoli che modificano in un gesto l’assetto di un ambiente, come nell’appartamento che vi presentiamo.
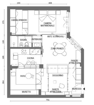
Si tratta di circa 55 mq ristrutturati di recente in antico palazzo dell’800, ampliato ai primi del ‘900 con la costruzione di un edificio aggiuntivo che ospita quest’appartamento di dimensioni contenute. Qui si è inserito un infisso scorrevole per trasformare un soggiorno-zona pranzo in un open space che, in maniera insolita, comprende anche la camera da letto. Situato al secondo piano, è affacciato sulla corte interna che in passato ospitava le scuderie.
Il progetto architettonico ha portato a ottimizzare gli spazi del bilocale ristrutturato tramite la realizzazione di blocchi multifunzione su disegno come quello tra l’ingresso e il soggiorno e quello della cucina, una composizione angolare a L, bianca ma ravvivata da un’alzata verde e grigia in piastrelle.
Inoltre, un sistema divisorio scorrevole ha permesso di vivere l’abitazione ora come un bilocale con zona notte separata, ora come un open space costituito da un volume unico.
Altra soluzione adottata per valorizzare il bilocale ristrutturato, è stata quella di trasformare il cavedio in mini patio, un’estensione del soggiorno gradevole e fruibile.
Foto 55 mq
Un consistente intervento di demolizioni e costruzioni ha modificato il layout del bilocale ristrutturato secondo un progetto che amplia il soggiorno eliminando il cucinotto e optando invece per una zona cottura più in vista; collega il living alla camera sostituendo la parete divisoria con un sistema di porte scorrevoli; ripensa parzialmente la posizione e le dimensioni dell’unico ambiente di servizio che è ora affiancato alla cucina e preceduto da un antibagno come prescrive la normativa. 
- L’angolo tra il soggiorno e la cucina del bilocale ristrutturato è occupato da un patio di 8 mq che, accessibile da entrambi gli ambienti, è posto a una quota di circa 60 cm superiore. Scoperto in alto, è circondato da muri perimetrali di contenimento sui due lati affacciati verso l’esterno.
- L’antibagno ha una doppia via d’accesso: dalla zona pranzo e direttamente dalla camera. Entrambi i passaggi sono chiusi da porte scorrevoli interno muro.
- Due larghezze diverse caratterizzano la pianta del bilocale ristrutturato che, più ampia in corrispondenza dell’ingresso e dell’area living, si restringe invece in fondo, nella zona occupata dalla camera matrimoniale. A raccordare i due volumi, all’altezza del tavolo da pranzo, è una porzione di parete obliqua, con vetrate a tutt’altezza che costituiscono la principale fonte di luce naturale dell’abitazione.
- La camera matrimoniale del bilocale ristrutturato si sviluppa sul lato più corto della casa, dalla parte opposta rispetto all’ingresso. La forma di rettangolo allungato del locale ha permesso di dividerlo internamente, ritagliando il volume di una cabina armadio lungo la parete priva di aperture.

Soggiorno e zona notte della piccola abitazione, anche se due porte scorrevoli permettono all’occorrenza di separare gli ambienti, sono direttamente comunicanti. L’area pranzo è in corrispondenza della parete finestrata con andamento obliquo che aggetta verso l’esterno, e forma una sorta di bow window; lo spazio è arredato da un tavolo allungabile modello Belina di Actona e da sedie di colori diversi, giallo, rosa, rosso, azzurro e ciano, e con gambe in legno; a illuminare il piano, una lampada a sospensione in metallo e vetro. Il parquet in rovere è di A.R. Parquets.

In soggiorno i moduli che compongono la parete attrezzata, delimitata dal pilastro in corrispondenza della vetrata ad angolo, sono stati tutti realizzati su disegno; il radiatore è installato in una nicchia ricavata nello spessore del muro perimetrale. Il divano rivestivo in pelle nera è un modello di fattura artigianale realizzato dalla ditta Fratelli Porro; di fronte, la sedia verde basculante ha la base in legno massello e acciaio e la scocca in materiale plastico. Il tappeto color bianco panna è di Kasthall, i cuscini sono di Coincasa. Il parquet della zona giorno è stato posato ex novo, cercando di non discostarsi – nel colore e nelle geometrie – da quello della camera, che è il solo originale. I listelli, in rovere massello di prima scelta, sono tagliati in misura fuori standard e posati secondo uno schema a spina di pesce all’italiana. La finitura “al naturale” è stata effettuata con una vernice all’acqua.
Progetto: il mobile angolare a ponte che definisce l’ingresso
Nel bilocale ristrutturato, a destra e a sinistra dell’ingresso – che si trova in posizione d’angolo e si apre direttamente sul living – le pareti perimetrali sono state sfruttate in tutta la loro lunghezza e altezza con una soluzione modulare multifunzione.
La struttura, realizzata su misura dal falegname, incornicia anche la porta d’entrata, riempiendo con vani contenitori la fascia tra lo stipite superiore e il soffitto.
Sul lato del living (3,8 m circa), di fronte alla zona conversazione, è stato progettato un sistema “a ponte” che alterna pieni e vuoti: sotto un mobile-tv basso, in alto una doppia fila di pensili a giorno e scomparti chiusi.
Sul lato ortogonale, la parete attrezzata (5,6 m circa) è arredata invece con colonne a giorno alternate a scomparti chiusi (con maniglie fresate) che integrano un vano centrale con appendiabiti per i cappotti.
L’alternanza di finiture – mdf laccato bianco sopra e grigio tinteggiato a poro aperto sotto – alleggeriscono l’effetto dando l’impressione che il mobile superiore, appoggiato su quello inferiore di tonalità più scura, sia sospeso da terra.
Il cavedio diventa patio, fonte di preziosa luce
Una delle soluzioni vincenti del progetto del bilocale ristrutturato è sicuramente il recupero e la valorizzazione del volume d’angolo tra soggiorno e cucina.
In origine si trattava di un semplice cavedio: il pavimento, a una quota di circa 60 cm superiore rispetto a quella dell’abitazione, è la soletta di un locale dell’unità immobiliare che si trova al piano sottostante dell’edificio.
In fase di ristrutturazione, sono stati installati – verso il living e verso l’angolo cottura – nuovi serramenti in alluminio a taglio termico (in parte fissi e in parte apribili); quello che era ormai diventato un vero e proprio patio, è stato pavimentato in gres e piastrellato lungo le pareti perimetrali, in relazione con l’area giorno.
Questo “sbocco all’aperto”, a pianta quadrata e con superficie di circa 8 mq, è una delle principali fonti di luce naturale della casa.
Lungo il perimetro sono stati realizzati muretti rivestiti con piastrelle esagonali in gres; tali strutture vengono utilizzate nella parte superiore come piani d’appoggio per i vasi; su uno dei due lati, il piano in cemento integra anche un lavabo da esterno e la parte inferiore ospita un ampio scomparto per contenere, chiuso da ante scorrevoli.
Nell’angolo della zona giorno lo spazio esterno, circondato sui quattro lati da vetrate con infissi in alluminio a tenuta e da muri di contenimento, è aperto soltanto in alto: un “pozzo di luce” per tutta l’area del living e della cucina.
Sono bastati pochi interventi per trasformarlo in un terrazzino a tutti gli effetti: un graticcio a parete per i rampicanti, muretti piastrellati in continuità con la cucina e il living, un tavolino e sedie pieghevoli da outdoor per creare subito una piccola zona relax o snack

Il patio si trova più in alto rispetto alla quota di pavimento della casa, con un dislivello di oltre mezzo metro. Per accedere all’esterno, attraverso la portafinestra del soggiorno, è stata pensata un’alternativa ai tradizionali gradini. A fungere anche da “scaletta” è infatti il coffee table realizzato raggruppando e legando in un cubotto le fascette di listelli avanzati dopo la posa del parquet.
La continuità tra il patio e l’interno della casa è sottolineata anche dai rivestimenti. Le piastrelle esagonali, in una combinazione a tre colori che alterna bianco, grigio e verde evidenzia i muretti perimetrali dello spazio esterno ed “entrano” anche in casa, sono infatti le stesse che incontriamo nella composizione della cucina.

Sui due lati del patio le piastrelle esagonali in gres porcellanato sono il modello Extrabright di Tonalite nelle finiture bianco, grigio e lime (formato 15,3 x 17,5 cm). Il pavimento è rivestito in gres laminato Slimtech Re-evolution SRC020 di Lea Ceramiche con spessore di soli 3 mm. Il tavolo e la sedia pieghevole da esterno in metallo verniciato giallo sono di Maisons du Monde.
La cucina bianca ravvivata dalle piastrelle dell’alzata
La cucina, resa indipendente da una porta scorrevole che la separa dal resto della zona giorno, rimane in comunicazione visiva con il living attraverso le vetrate del patio, sul quale si affaccia.
La composizione su due lati sfrutta a pieno le pareti anche in verticale, fino all’altezza del controsoffitto, con una tripla fila di pensili di profondità differenziate.
Nella cornice total white dei mobili e degli elettrodomestici con estetica in vetro temperato bianco, risalta la fascia centrale dell’alzata, rivestita con esagoni in gres.
Il piano della cucina è in un materiale brevettato, nella stessa finitura bianco-lucido dei frontali dei mobili.
Si tratta di una superficie in quarzo-resina, resistente ai graffi, al calore e alla macchie, non porosa e molto igienica; previene la proliferazione batterica ed è di facile manutenzione.
Salvaspazio: cucina ad angolo con pensili a due profondità per sfruttare al centimetro
La composizione, realizzata su disegno per il bilocale ristrutturato, si sviluppa su due lati sfruttando la porzione corta della parete perimetrale per inserire la zona lavaggio; e il tramezzo di confine con il bagno per installare il piano cottura e le colonne del frigorifero e del forno.
I pensili occupano tutte le altezze disponibili, arrivando a filo del controsoffitto. Questa struttura in cartongesso, che ribassa il plafone della zona operativa da 310 a 270 cm circa, integra diverse funzioni tecniche.
Il volume contiene all’interno l’unità motocondensante dell’impianto di climatizzazione canalizzato, il sistema d’allarme, il condotto della cappa aspirante; consente inoltre l’incasso delle griglie di erogazione dell’aria e dei faretti per l’illuminazione d’ambiente.

In cucina il pavimento è rivestito con lastre in gres porcellanato laminato Slimtech Re-evolution SRC020 di Lea Ceramiche, le stesse utilizzate all’esterno. Il materiale è caratterizzato dagli spessori ridotti di soli 3 mm: una scelta che si è resa necessaria in quanto il rifacimento degli impianti tecnici a pavimento aveva comportato un innalzamento del massetto. I contenitori in sughero appoggiati sul piano a ribalta sono di Calligaris, i bicchieri di Ikea, la coppetta e il vassoio di Asa Selection. Nel sottofinestra è stato montato un piano snack costituito da una consolle a libro: quando è chiusa, i due pannelli di uguale misura che la compongono si sovrappongono sul radiatore; si apre verso l’esterno, raddoppiando in profondità.
Una parete scorrevole tra soggiorno e camera per ampliare la prospettiva
Due ambienti separati oppure un unico open space: una parete scorrevole a scomparsa rende flessibili gli spazi del bilocale ristrutturato.
A seconda delle ore della giornata, la camera – con la mappa dei cinque continenti a decorare la parete di fondo – è vissuta come parte integrante dell’area living o come stanza indipendente che si chiude scomparendo del tutto alla vista.

Per le aperture affacciate verso corte, sono stati conservati gli infissi originali a tutt’altezza, nota caratteristica dell’edificio. Si tratta di “ferro finestre” con profili metallici di spessore molto sottile che lasciano spazio ad ampie superfici vetrate. Non molto performanti dal punto di vista energetico, hanno però il vantaggio di un’elevata resistenza meccanica e un peso contenuto.
Per separare il living dalla camera del bilocale ristrutturato ma consentire, all’occorrenza, una completa apertura tra i due ambienti è stata adottata una soluzione scorrevole esterna realizzata su disegno.
Il sistema è costituito da due pannelli a filo del controsoffitto (larghi circa 130 cm e alti 270 cm).
Considerate le ampie dimensioni, le due ante sono in tamburato, un materiale che assicura a un tempo leggerezza e stabilità durante lo scorrimento: si tratta infatti di un pannello “alveolare”, vuoto all’interno, costituito da due fogli di truciolato, MDF o compensato incollati su un telaio di legno.
Le ante scorrevoli sono appese a un doppio binario superiore incassato nel pannello in cartongesso; vanno a sovrapporsi per consentire l’apertura del vano di passaggio tra i due ambienti; quando questa è completa, i pannelli “entrano” nella camera e si allineano sopra la porta interno muro che chiude l’antibagno.
Tappezzeria super colorata dietro al letto
Di grande effetto scenografico, la carta da parati dietro al letto riproduce il planisfero e costituisce lo sfondo prospettico della camera da letto e dell’intera abitazione.
Multicolor, il fotomurale riprende le tinte delle sedie di design della zona pranzo, una soluzione cromatica audace che però è perfetta in una casa come questa con tanto bianco.
Disponibile in diverse misure in proporzione alla larghezza e altezza della parete, è riprodotto su un supporto in uno speciale materiale tessuto-non-tessuto, lavabile e resistente all’umidità.
Viene fornito il rotolo intero con la figura completa che viene ritagliato lungo linee preindicate in strisce larghe 50 cm ciascuna, facili da incollare al muro con un apposito adesivo.

Nella camera matrimoniale, il letto tessile con testiera e giroletto rivestiti in pelle bianca e contenitore sotto la rete è il modello Soho di Berto Salotti; le applique nere sono le Ogilvy di Made.com. Il copriletto e il plaid sono di Zara Home, i cuscini di Coincasa e Zara Home. La tappezzeria a parete che riproduce il planisfero è The map of happiness di Artgeist.
Portafilomuro si mimetizza sulla parete con armadio
Nella stanza, una porta filomuro con apertura a battente mimetizza, lungo la parete a lato del letto, l’accesso alla cabina armadio.

Sulla sinistra, la porta a scomparsa interno muro che chiude l’antibagno è il modello Synthesis Line di Eclisse; in questo spazio di passaggio tra il living e la camera che disimpegna il bagno è stato installato il mobile con il lavabo (foto sotto).
Progetto: arch. Cesare Loriano Galligani, Studio Planair, Milano, Tel. 02/39540822 – https://www.planair.eu
Foto: Studio Roy, styling Laura Mauceri
Rfr 0918
























































