Nei locali in passato adibiti a deposito per il legname, recupero di una casa tipica nel cuore della città: siamo a Bari e la piccola abitazione risale al periodo murattiano, ossia alla prima metà dell’800. L’origine del luogo e le sue caratteristiche peculiari sono state preservate grazie all’attento e intelligente intervento di recupero dei materiali e degli elementi architettonici che in molti casi erano stati occultati da ristrutturazioni precedenti, e ora sono ritornati alla luce. Gli sfondi delle pareti in tufo e delle pavimentazioni in pietra naturale, rifinite in diverse tonalità di bianco, contribuiscono ad aumentare la luminosità naturale: era questo uno degli obiettivi prioritari del recupero. La forte matericità degli ambienti, oltre a esserne elemento distintivo, ha permesso anche che risaltassero gli arredi di modernariato degli anni ’50 e ’60, accostati a pezzi storici del design “esposti” come in una galleria. Infatti la casa è anche un po’ un atelier in cui i progettisti mettono in mostra pezzi da collezione accanto ad altri realizzati da loro stessi su disegno.
Clicca per vedere full screen le immagini della casa
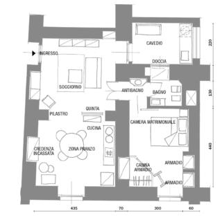
La pianta si sviluppa intorno a un piccolo cavedio che occupa l’angolo tra il soggiorno e il bagno. L’intervento di recupero dell’abitazione non ha comportato grosse modifiche nella distribuzione, se non la demolizione del muro che in precedenza divideva i due ambienti della zona giorno e che ora sono collegati in modo diretto. È invece portante, e quindi vincolante, la muratura che separa il living dalla zona notte, dove si trovano la camera e il bagno, allineati al cortile interno.
L’ingresso della casa si apre sul living, collegato con l’ambiente adiacente dove sono sistemati il tavolo da pranzo e la zona operativa della cucina. I due spazi sono divisi soltanto da una quinta in vetro, ma la presenza dei due pilastri portanti segna nettamente la linea di passaggio.
Il cavedio aperto in alto, oltre a essere una fonte di luce per gli ambienti interni è anche uno spazio di servizio utile, che funge da lavanderia. È collegato con la zona doccia, aggettante rispetto al volume principale del bagno.

Tra il living e la zona pranzo, divisi solo da una quinta vetrata, prendono vita – enfatizzate dalla luce del sole – le superfici materiche dei muri e del pavimento in pietra, tratto peculiare della casa di recupero. A terra, sulla destra, la striscia più scura è determinata da una “gettata” in cemento e conchiglie fossili che di sera s’illumina grazie alla fibra ottica.

Nella zona conversazione del living il divano Sleep O Matic è un pezzo di modernariato anni ’60 di Arflex, non più in produzione; dello stesso periodo il tavolino con piano in cristallo, modello Alanda disegnato da Paolo Piva. Anche la libreria a parete che alterna contenitori e ripiani è vintage. Il tappeto proviene dal Marocco ed è realizzato artigianalmente in lana dalle tribù berbere. A sinistra, il carrello in legno è un pezzo di “archeologia industriale” utilizzato ai primi del ‘900 in un cotonificio.
1. Pareti e pavimenti in pietra
I muri perimetrali dell’edificio, di elevato spessore, sono in tufo, uno dei materiali più usati dall’antichità nelle costruzioni della zona. I pavimenti sono invece in pietra di Trani (o chianca bianca) una tipologia locale che, ora molto rara, in passato trovava largo impiego nella realizzazione delle strade dei centri storici e di molti palazzi di pregio. In questo caso, il materiale è stato rifinito con uno strato di biomalta, sempre allo scopo di schiarirlo e di rendere l’insieme più luminoso.
2. Soffitti in legno, ma sembra cemento
La struttura che forma la soletta è in legno ed era stata realizzata durante una precedente ristrutturazione risalente agli anni ’50. La novità è stata quella di rifinire rispettivamente in bianco e in grigio chiaro l’assito e le travi che assumono una matericità differente, simile nell’aspetto estetico a quella del cemento nel suo colore naturale.
3. Divano-letto vintage
Un’unica seduta per la zona conversazione: dalla struttura agile, l’imbottito senza braccioli, con schienale monoblocco e piedini in metallo si trasforma facilmente in letto. Progettato da Marco Zanuso, il divano è un modello che – a distanza di oltre 50 anni – risulta ancora attualissimo. Qui, nella versione con rivestimento in blu ottanio e cordoncino sartoriale, diventa l’elemento focale della stanza.

Nell’ambiente comunicante con il soggiorno e occupato dalla zona pranzo e dalla cucina, la nicchia ad arco lungo la parete opposta a quella della zona operativa è stata riportata alla luce durante la ristrutturazione, rimuovendo la copertura realizzata in un precedente intervento. Nella rientranza, che in passato conteneva una cisterna per la raccolta dell’acqua piovana, è stata inserita una credenza con ante in legno forato. Una soluzione analoga è stata adottata nel living, dove un’altra nicchia recuperata, profonda 80 cm, contiene ora la tv, lo stereo e altri dispositivi elettronici.
Ispirazione vintage nell’open space, tra produzioni nate dalla creatività dei progettisti stessi e pezzi da collezione selezionati, in un mix and match di grande gusto e carattere. Le essenze rovere e acero degli elementi d’arredo, dei complementi e degli oggetti esposti sui ripiani, contribuiscono a scaldare l’ambiente. Tra living e cucina c’è continuità di stile, e dall’equilibrio d’insieme non è esclusa neppure la zona operativa, che si concentra in un blocco compatto inserito in un’ampia rientranza lungo la parete delimitata dal pilastro.

Nella zona pranzo il tavolo rotondo con piano in cristallo e struttura in tubolare di metallo è il modello Nomos di Tecno, design Norman Foster; le sedie girevoli su ruote sono anni ’60, in palissandro con seduta e schienale rivestiti in tessuto rosso (modello da ufficio design Ico Parisi per Mim).
4. Mobile giorno o cucina?
La zona operativa è tutta concentrata nel mobile a parete realizzato, su disegno, assemblando moduli in legno di acero, laccati in bianco o trattati effetto acciaio corten. L’idea era quella di “mimetizzare” il più possibile la cucina, rendendola poco visibile: a parte la presenza degli elettrodomestici e di due taglieri rotondi in marmo nero, la composizione può infatti assolutamente sembrare una consolle da soggiorno; è anche completata da pensili molto più easy rispetto a quelli tradizionali da cucina.
5. Da ufficio, ma non soltanto
Le sedie intorno al tavolo nascono come modelli progettati per il luogo di lavoro o per l’home office. Seduta e schienale ergonomici, insieme alla praticità del movimento su ruote le rendono però multifunzione, adatte per comodità anche alla zona pranzo.

6. Revival anni ’60
Sono numerosi nella casa di recupero, come abbiamo già avuto modo di osservare, i mobili di modernariato proposti nei diversi ambienti. Appartiene alla collezione anche la libreria a giorno completa di cassettiera fissata davanti alla quinta divisoria, ma completamente indipendente rispetto a essa. I due semplici montanti in legno che formano la struttura sono fissati sia a pavimento sia a soffitto. Lo stile della composizione è lo stesso della parte attrezzata in soggiorno, sulla parete di fianco al divano.
7. La quinta in vetro serigrafato
Il passaggio tra zona pranzo e living è segnato da una quinta verticale. Caratterizzata da bordi stondati, è in vetro sabbiato decorato con un motivo che richiama i mattoni in tufo dei muri dell’edificio. Il pannello è fissato in basso su un basamento in legno (la lastra scorre all’interno di un’apposita scanalatura) e anche in alto tramite due plinti sempre in legno verniciato bianco.
La camera matrimoniale è un ambiente di piccole dimensioni, poco più della superficie minima prescritta dalla normativa per questo ambiente. Tuttavia, attraverso la realizzazione di una mini cabina armadio angolare e di due armadi in nicchia, è stato posssibile ricavare durante il recupero adeguati spazi per contenere, a ingombro minimo; non soltanto, queste soluzioni introducono movimento nell’ambiente individuando anche, davanti alla finestra, la profondità per inserire uno stender.

Prevalgono nella stanza i colori neutri, ancora una volta con dominanza del bianco nelle finiture degli sfondi. Sulla parete dietro il letto, è proprio il contrasto in chiaroscuro a mettere in risalto, come in un negativo, il soggetto umano della gigantografia, realizzata da un artista e intitolata, appunto, “Hombres”.
8. La cabina angolare
Di fronte al letto, nell’angolo vicino alla finestra è stato ritagliato lo spazio per un mini guardaroba a pianta irregolare che, internamente, contiene anche il volume di un pilastro. Delimitato da pareti in cartongesso e chiuso frontalmente da ante con griglie metalliche microforate e ossidate, ha le dimensioni interne di un piccolo camerino.
9. Due armadi in nicchia
Lungo la parete di fianco al letto, due rientranze a colonna, in precedenza occupate da canne fumarie in disuso, sono state chiuse da ante specchiate a battente e trasformate in armadi. La profondità di circa 60 cm consente comodamente questo nuovo tipo di utilizzo.

Nel bagno, il lavamani a sezione triangolare e con un lato appoggiato alla parete è in pietra nera, realizzato su disegno e completato da un miscelatore a parete.
10. Isolamento invisibile in cartongesso
Dal momento che il bagno per la sua posizione nella casa era un ambiente piuttosto umido, nonostante la presenza del vespaio aerato sotto il massetto, il muro perimetrale e il tramezzo che divide l’ambiente di servizio dalla camera sono stati protetti internamente realizzando, in fase di recupero, delle contropareti in uno speciale cartongesso idrorepellente e lasciando un’intercapedine isolante: lo spessore totale di queste nuove struttura è di circa 4 cm. Le superfici sono state poi intonacate e rifinite a resina.
Dal piccolo disimpegno che svolge la funzione di filtro tra zona giorno e zona notte, si accede alla camera. Dettagli di stile si rivelano fondamentali nel definire questo mini spazio: così la semplice postazione con il lavabo, di fronte all’ingresso della stanza, è valorizzata dalla composizione di geometrie tra specchio e rubinetteria, e dalle finiture dorate

Nell’antibagno, lo specchio rotondo fissato alla parete è decorato a foglia oro. La borsa appoggiata sotto il lavabo sospeso è realizzata con vele di recupero (Masquemas).
11. Quanti lavabi?
Nello spazio di passaggio del disimpegno che distribuisce la camera è installato un lavabo sospeso in pietra serena con frontale sagomato. Ma un altro lavabo, sempre realizzato su disegno nello stesso materiale, trova posto nell’adiacente bagno; e un altro ancora, con funzione di lavatoio, si trova infine nel cavedio esterno.
12. Sistema scorrevole in tonalità blu
Il pannello in laccato opaco con maniglia incassata, appeso in alto a un binario, scorre esternamente lungo la parete della camera. Il telaio e la veletta, rifiniti nella stessa tonalità blu dell’anta, incorniciano il passaggio, dando continuità alla struttura.

Dal living, attraverso la doppia persiana si raggiunge il bagno passando dal disimpegno. In fondo, la porta dell’ambiente di servizio è ricoperta a tutta altezza da una fotografia in bianco e nero realizzata da Roberto Grazioli.
13. Bianco a calce
Le pareti in tufo sono state rifinite in chiaro a calce per moltiplicare la luminosità degli ambienti, che sono al piano terra e dotati di aperture piccole. La calce, prodotto utilizzato fin dall’antichità nelle costruzioni dell’area mediterranea, ha la proprietà di rendere le superfici trattate traspiranti e igieniche, protette da muffe e batteri; migliora anche il comfort termico in estate e inverno.
14. Persiane tra giorno e notte
Un vano ad arco collega il soggiorno al disimpegno che si trova a una quota di pavimento leggermente superiore e che distribuisce la camera e il bagno. Al posto di un tradizionale serramento da interno, sono state utilizzate persiane di recupero dello stesso edificio: il legno è stato riportato al vivo lasciando tracce della vecchia vernice e non ulteriormente rifinito, così da sottolineare l’aspetto antico e vissuto.
15. Maioliche di recupero
Per la pavimentazione dell’antibagno-disimpegno sono state utilizzate bicotture di Vietri della fine dell’800, con uno sfondo tinta unita (un grigio quasi bianco) intervallato da decori. Si tratta anche in questo caso di materiali di recupero di provenienza locale: le piastrelle sono state selezionate una per una e posate su una gettata in biomalta.

La casa murattiana: un po’ di storia
L’abitazione, che come abbiamo visto si trova al piano terra, ha il lato della cucina e della camera da letto affacciato su uno spazio verde interno delimitato da muri di contenimento. Si tratta di un “giardino murattiano”, le cui origini e significato storico risalgono all’epoca di costruzione dell’edificio. Quest’ultimo, come molti altri del quartiere in cui sorge, fonda infatti le sue radici intorno al 1813, quando Gioacchino Murat – generale dell’armata napoleonica e re di Napoli – firmò il progetto urbanistico del nuovo borgo della città di Bari, a lui intitolato. Il piano elaborato da Murat prevedeva – tra le varie innovazioni architettoniche – che tutti i blocchi abitativi progettati e costruiti in quell’epoca, non solo a Bari ma anche in altre città e cittadine del Sud Italia, avessero al loro interno dei giardini soprannominati “eden”; erano stati studiati per essere i polmoni verdi nei complessi residenziali che nascevano in quel periodo, alle soglie della rivoluzione industriale.

Collegato sia con il bagno sia con il soggiorno, il cavedio di servizio è pavimentato in ghiaia e coperto da un tendaggio avvolgibile in carbonio, realizzato dal recupero della vela di una barca di Coppa America di cui si vede ancora un parte del numero (il 40). A parete, il lavatoio in cemento a forma di trapezio, realizzato su disegno, nel vano centrale nasconde la lavatrice; sul top, la X in ceramica è opera dell’artista Jasmine Pignatelli.
Progetto: arch. Stefano Straziota, Bari, Tel. 080/5212826 – https://www.misiaarte.com – Foto: Studio Roy, Stylist: Chiara Dal Canto



















































