Contenuti trattati
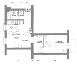
A Milano, nella zona semi centrale di corso XXII Marzo, il mini bilocale acquistato negli anni ’80 era sempre stato affittato e lasciato a lungo nello stato di fatto, senza un radicale intervento di ristrutturazione. Ma quando il proprietario decide di andarci ad abitare sente l’esigenza di un progetto che venga incontro alle sue esigenze, personalizzi maggiormente gli ambienti del mini bilocale e modifichi – per quanto consentito – gli spazi così da ottimizzare la metratura ridotta di circa 45 mq.
Infatti, senza grandi modifiche nella distribuzione, il restyling del mini bilocale ha riguardato essenzialmente le scelte d’arredo, con soluzioni su misura: dalla cucina con funzioni a scomparsa al ribassamento del soffitto sopra l’ingresso per ricavare un ripostiglio in quota, fino all’armadio divisorio della cabina armadio passante.
A richiamare l’epoca del mini bilocale alcuni tratti architettonici tradizionali come le travi a vista, dipinte però di bianco. Un non colore che fa da filo conduttore agli ambienti, luminosi, accoglienti e leggeri.
Foto bilocale 45 mq in bianco e legno
Progetto e lavori
Nel mini bilocale di soli 45 mq, la suddivisione in due ambienti distinti – zona giorno e camera – è determinata dalla forma stessa della pianta che sviluppa un percorso a elle a partire dall’ingresso; il layout è vincolato anche dalla presenza di un muro di spina che accentua questa suddivisione senza molte possibilità di apportarvi modifiche.
Le opere di demolizione e costruzione sono state infatti minime.
Il bagno risulta ora disimpegnato dalla cucina; quest’ultima è a vista sul living e il tavolo da pranzo funge da raccordo tra due aree adiacenti, ciascuna delle quali è dotata di una propria apertura poiché in precedenza i due spazi erano separati da un tramezzo.
La zona dell’ingresso del mini bilocale distribuisce l’ambiente di servizio preceduto da antibagno come prescrive la normativa. La superficie di questo spazio di disimpegno, chiuso da una porta scorrevole esterno muro, è di soli 1,5 mq, sufficienti per installare il lavabo.
La cucina in linea del mini bilocale, delimitata a un’estremità dal muro perimetrale e dall’altro da una spalla in muratura appositamente realizzata, risulta come inserita in una rientranza.
Il soggiorno e la zona del guardaroba sono collegati da un varco aperto, privo di serramento; una porta a battente integrata nel blocco dell’armadio chiude invece il passaggio all’adiacente stanza matrimoniale.
Una porzione di muro di spina di elevato spessore divide il soggiorno dalla camera. La stanza, illuminata da una finestra che si affaccia sul lato opposto rispetto a quello del living è introdotta da una zona adibita a spogliatoio-guardaroba e attrezzata con un armadio.
Soggiorno e cucina insieme per guadagnare spazio

Il parquet in rovere vaporizzato e spazzolato per un effetto opaco è posato in tutti gli ambienti con schema a spina di pesce: nella variante “alla francese” i listelli sono tagliati a 45° sui lati corti. Questa geometria classica ispirata addirittura al ‘700 è stata preferita in quanto in linea con l’impianto architettonico tradizionale dell’abitazione.Nella mini zona giorno, tra area living e tavolo da pranzo, la cavità del preesistente camino lungo la parete è stata conservata e trasformata in libreria (l’uso dei camini è stato vietato in città per contenere lo smog): la semplice finitura in bianco ne rende la presenza discreta. Il divano-letto rivestito in fresco tessuto di cotone è di Ikea, la poltroncina di design anni ’50 è il modello DAW di Vitra, design Charles & Ray Eames. Il tappeto in pvc con decoro a losanghe bianco su nero è Max di Pappelina, come i cuscini optical appoggiati sul divano. La lampada da terra con base in marmo è Alzabile di Tato.

In cucina i mobili della composizione con struttura e ante in nobilitato bianco, bordo in ABS e top in laminato antigraffio, sono su disegno del progettista; il frigorifero a libera installazione è della serie Fab di Smeg. L’applique che illumina il piano di lavoro è Riga di Fontanaarte, quella appoggiata sulla cassettiera a lato è Taccia di Flos, design Achille & Pier Giacomo Castiglioni. Al centro, il tavolo con piano rotondo in marmo rende agevoli i movimenti tra l’angolo cottura e il soggiorno; le sedie in legno sono pezzi vintage rivestiti in tessuto pied-de-poule di Kirkby Design, mentre quella bianca è il modello DSW di Vitra, design Charles & Ray Eames.

All’ingresso dell’abitazione il soffitto è stato ribassato di circa 60 cm, così da definire e riproporzionare l’area di passaggio. È stato inoltre possibile ricavare il volume di un ripostiglio in quota, accessibile dal lato living.

Nella zona cottura tutti gli elementi sono integrati nella mini composizione in linea, lunga poco più di 250 cm; una semplice mensola sostituisce i tradizionali pensili in modo da alleggerire l’impatto visivo della parete. Unica eccezione a libero posizionamento per quanto riguarda gli elettrodomestici è il frigorifero dalle linee bombate in stile anni ’50, in bianco.
Dalla cabina armadio passante si entra in camera
L’abitazione si trova al primo piano di un edificio degli anni ’20: sono stati conservati in evidenza alcuni tratti caratterizzanti, in particolare i soffitti in legno con travi a vista, tinteggiate di bianco.
Anche in camera come nel living, il serramento in legno verniciato, completo di scuri e affacciato su un mini balconcino, è stato rifatto sul modello di quelli originali.
Letto a baldacchino in ferro bianco

Nella camera matrimoniale, alla struttura in metallo verniciato bianco del letto a baldacchino (di Cargo) è agganciata la lampada conica modello Mayday di Flos che diffonde la luce verso il basso. Il coordinato tessile è di Marina C., i cuscini di Villa Nova. Il parquet in rovere, posato a spina di pesce, è stato acquistato da Superskin.
La cabina passante “risolve” la camera
Nel mini bilocale la zona notte ha una posizione obbligata, determinata dalla presenza del muro di spina di elevato spessore che attraversa la casa. Il locale presentava in partenza una serie di difficoltà dovute alla forma allungata della pianta e alla posizione delle aperture: risultava quindi difficile arredarlo collocando sia il letto matrimoniale sia un armadio abbastanza capiente.
Da qui l’idea progettuale di dividere la stanza in due, utilizzando circa un terzo della superficie disponibile per ricavare una cabina armadio passante che funge anche da filtro rispetto passante tra il soggiorno e la stanza.
L’intervento non ha comportato opere murarie nel mini bilocale in quanto è il volume dell’armadio, e non un tramezzo, a svolgere la funzione di elemento di separazione tra i due ambienti, integrando anche una porta larga 70 cm che, incernierata a parete, completa la composizione.
L’armadio-parete non fino al soffitto
La struttura, in mdf laccato bianco opaco (realizzata su misura dal falegname), sul lato della camera fa da sfondo al letto a baldacchino; verso il guardaroba, l’armadio si apre con due ante scorrevoli a tutt’altezza che si sovrappongono; ciascuna è completata all’estremità da una maniglia verticale in rovere che, sporgente e comoda da impugnare, ne facilita l’apertura.
La scelta di non fare arrivare l’armadio fino al soffitto è stata determinata da due motivi: lasciar passare l’aria e la luce nel guardaroba ma anche non interrompere la continuità del solaio ligneo con travi a vista.

La struttura dell’armadio divisorio, che ha una lunghezza di circa 240 cm e una profondità di 65 cm, è attrezzato all’interno con barre appendiabiti e cassettiere. L’altezza è di circa 210 cm, perfettamente a filo con quella dell’anta della porta a battente che – sul lato della camera – quando è chiusa va ad allinearsi al retro della struttura.
Bagno (irregolare) diviso in due
Nell’ambiente di servizio del mini bilocale, le piastrelle sono state posate solo all’interno del box doccia mentre per tutte le altre superfici verticali si è scelta una finitura in marmorino grigio, rivestimento decorativo a base minerale che ha un effetto simile a quello di una resina opaca, con costi inferiori; è adatto per proteggere le pareti da acqua e umidità. La presenza di un muro con andamento obliquo fa sì che – a un’estremità – il locale vada sensibilmente restringendosi.
Quest’irregolarità della pianta risulta però appena percettibile grazie alle scelte fatte nella disposizione degli elementi: lo spigolo della parete inclinata è infatti inglobato all’interno del volume della doccia che occupa, a misura, il lato corto del bagno, opposto alla porta d’entrata. Mentre, di fianco, i sanitari sospesi sono installati in modo da sfruttare la porzione di parete perimetrale rettilinea tra il box e la spalla divisoria.

Nell’ambiente di servizio, il lavabo consolle in ceramica è di Duravit, così come i sanitari sospesi. Lo specchio è il modello Stockholm di Ikea. La doccia con piatto in acciaio smaltato è di Kaldewei. La parete di fondo è rivestita con piastrelle della serie Azulej di Mutina, design Patricia Urquiola. La lampada a soffitto e quella a parete nella zona lavabo sono le Glo-Ball di Flos, design Jasper Morrison.
Semplicità del tondo
Al di là della sua funzione primaria, lo specchio nella zona lavabo è anche un complemento decorativo. Per una buona resa estetica, importante è rispettare le proporzioni: nei modelli tondi, che hanno un impatto visivo leggero nei bagni piccoli, il diametro non dovrebbe superare la misura del lavabo o del mobile che lo integra. Dubbi per la posizione sulla parete? A meno di specchi dalla sagoma irregolare o dalle forme insolite, la posizione centrata rispetto al lavabo è sempre consigliabile per assicurare una gradevole simmetria compositiva.
Progetto: arch. Isabella Franco per Lupettaatelier via Lupetta 2, Milano
Foto: Cristina Galliena Bohman
Styling: Vanessa Pisk Studio
Rfm 0918














































