L’appartamento di 60 mq, una mansarda situata all’ultimo piano di un condominio di recente costruzione, presentava una distribuzione tradizionale, cucina a vista sul soggiorno, corridoio, bagno, camera da letto con anticamera passante. Le finiture erano nuove ma non di particolare pregio.
L’idea progettuale è stata quella di stravolgere completamente il layout tradizionale dell’appartamento, con una soluzione funzionale ma di forte impatto. Dato che tutte le partizioni non erano portanti, si sono potuti demolire tutti i muri esistenti e realizzare così un volume più basso, staccato dalla copertura, che contenesse, legasse e dividesse al contempo tutte le funzioni, mantenendo la sensazione di spazio unico.
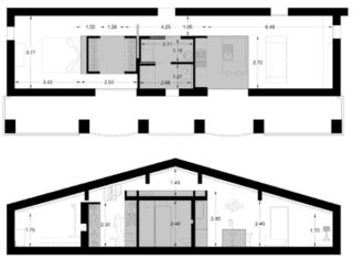
È stato quindi realizzato – all’interno dell’intera superficie vuota della casa, coperta da falde in legno con travi e travetti a vista – un “parallelepipedo” principale, una “scatola” che è stata poi suddivisa e abbassata ad altezze diverse (ndr, nell’immagine sopra, nella pianta, la superficie a terra della scatola è evidenziata in grigio).
Il volume centrale ospita bagno e antibagno; sui lati esterni sono inglobate da un lato la cucina, affacciata sulla zona living, e dall’altro la zona armadi.
Nella parte notte della mansarda, il retro del secondo armadio diviene testata attrezzata per il letto.
Il colore dell’involucro realizzato ha giocato un ruolo fondamentale nella creazione di questa struttura: nero, liscio, extra opaco e al tatto morbido, il Fenix ha rivestito tutte le pareti esterne; gli interni della scatola, per contrasto, sono della stessa tonalità di nero ma di altro materiale: la resina.
I punti in cui il blocco costruito a forma di parallelepipedo è stato abbassato fino a toccare il pavimento sono stati realizzati in resina nera, complanare al parquet in legno di rovere.
Nella mansarda, l’isola antistante la cucina è racchiusa virtualmente dalla porzione di pavimento in resina, così come la zona fra i due armadi, che dialogano frontalmente, sono divisi fra di loro dalla medesima pavimentazione.

Nella mansarda, la cucina grigia scura è attrezzata con l’isola centrale, collegata alla composizione a parete da un bancone snack angolare in legno. L’alzata dietro i fuochi è rivestita in in piastrelle decorate tipo cementina effetto patchwork (rivestimento ceramica Azulej di Mutina). Sospensione sull’isola della cucina Big Bang di Foscarini.
Nella mansarda tutto è stato progettato tutto su misura, curando ogni dettaglio, dalle luci, in parte integrate nei mobili, alla cura dei piccoli dettagli, come la porta a scomparsa, un pannello scorrevole in Fenix, che all’occorrenza “esce” dal blocco centrale per schermare alla vista la zona notte dalla zona giorno.
Le finiture giocano tutte sul contrasto legno e nero, che troviamo anche all’interno del bagno dove si alternano mobili in rovere, pareti e pavimento in resina e inserti in ceramica Azulej di Mutina. Le uniche porte presenti sono proprio quelle che chiudono bagno e antibagno, scorrevoli e completamente a scomparsa (di Eclisse), in continuità con le pareti.
Gallery bagno: sanitari Flaminia, mobili su misura, piastrelle Mutina, radiatore un pezzo unico su misura

Il radiatore del bagno è un pezzo unico, fatto costruire appositamente su disegno da un’azienda che lavora il metallo, di cui il proprietario della casa è il titolare.
Progetto: pianta e sezione
Progettazione e direzione lavori: SuMisura Architetti, Arch. Michela Curadini e Arch. Serena Manzi, info@sumisuraarchitetti.com, https://www.sumisuraarchitetti.com
Foto: Arch. Serena Manzi
Gallery: riguarda tutte le foto della mansarda!























































































