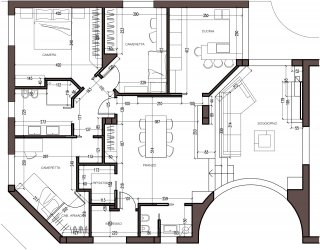
Il progetto prevede la ristrutturazione e la riconversione in appartamento di locali che erano stato adibiti ed adattati alla funzione di uffici. L’assenza nella situazione iniziale di una chiara definizione degli spazi e di una gerarchizzazione degli ambienti ha guidato le scelte progettuali verso una ridistribuzione che tenesse conto della morfologia stessa dell’appartamento, caratterizzato dalla presenza di un dislivello. Tale dislivello diventa appunto il cardine del progetto ed è valorizzato proprio come elemento distintivo della zona giorno: il muretto basso rivestito in resina crea la separazione tra le due diverse quote del pavimento e allo stesso tempo e sancisce la continuità, facendo da schienale al divano.
Dall’ingresso, piccolo ambiente a sé, infatti si accede in un ampio locale, che oltre ad avere la funzione di contenere armadi guardaroba in nicchia, ospita la zona pranzo, nonché un ripostiglio e il bagno di servizio, per poi dare accesso sia alla zona notte sia alla cucina. Questo ambiente, snodo principale dell’abitazione, affaccia attraverso la creazione di un muretto basso, che funge da protezione, sulla parte più bassa, e diventa un tutt’uno con i gradini rivestiti in resina e con l’illuminazione a pavimento, che portano al divano sagomato con schienale addossato al muretto. Frontalmente a questo la zona tv ed il camino fanno da sfondo all’intero ambiente. Su questa parte ribassata si è deciso di far affacciare attraverso una vetrata anche la cucina, che gode così anche della luce delle grandi portefinestre delle terrazze.
L’area notte è stata distribuita mantenendo nella parte centrale il bagno padronale, prevedendo due camerette di cui una con cabina armadio ed una camera matrimoniale con armadio in nicchia.
Clicca sulle immagini per vedere full screen il progetto in 3D dell’Architetto & Interior Designer Elisa Coffinardi, https://www.archcoffinardi.weebly.com
Clicca sulle immagini per vedere full screen le foto della casa così come è stata realizzata.
ARREDI:
- ZONA PRANZO: tavolo e mobili soggiorno artigianali in vendita nel negozio Etno Mobili, in provincia di Bergamo (www.etnomobilietnici.it) SOGGIORNO: Divano Dance di Mondo Convenienza, Chaise longue Eva di Semeraro, Camino Viva 80 di MCZ
- CUCINA: Start Time di Veneta Cucine



- La parete tv/camino fa da sfondo e riprende gli stessi materiali della zona pranzo, come il legno e la pietra.



- La cucina, che affaccia sul soggiorno attraverso una vetrata che segue l’inclinazione della falda, si sviluppa per essere più funzionale possibile: con le armadiature a colonna che occupano un’intera parete, si lascia lo spazio per le basi a ferro di cavallo con penisola. La parete attrezzata offre molto contenimento e la possibilità di incassare vari elettrodomestici. Inoltre, incassandole in nicchia, si elimina visivamente il loro ingombro. La rientranza è poi arricchita a soffitto da una mensola illuminata da strip led.

- Il muretto basso rivestito in resina crea la separazione tra i due livelli e allo stesso tempo sancisce la continuità facendo da schienale al divano; la zona pranzo è arricchita dall’abbassamento in cartongesso con faretti che “delimita“ le zone di passaggio.

- La camera matrimoniale molto semplice e lineare. Per arredare la parete dietro il letto, è stata scelta una tinta scura in contrasto con il tessile dell’imbottito ed è stata fissata al muro una composizione di tre quadri di diversa misura centrati rispetto alla testiera. Ha l’armadio con ante scorrevoli nella parte più alta della falda.

- La cameretta dalla forma irregolare ha comunque tutto quel che serve, anche una zona studio e una comoda cabina armadio in muratura.


- Il bagno, su richiesta della proprietaria, è totalmente realizzato in resina ed ospita una grande doccia anch’essa caratterizzata da soluzioni nelle pareti con all’interno luci led.




































































