L’appartamento si sviluppa su due piani ed è stato organizzato dai proprietari per suddividere nettamente zona giorno e spazi notte e soddisfare le necessità abitative di una famiglia di cinque persone: al piano inferiore cucina aperta sul soggiorno, studio, bagno, lavanderia e ampio terrazzo coperto, che d’estate può funzionare da utile ambiente aggiuntivo per mangiare o conversare; al piano superiore, parzialmente mansardato, una camera matrimoniale dotata di bagno privato, una camera doppia, una singola e un bagno.
Clicca sulle immagini per vederle full screen

- L’ingresso dell’appartamento, da cui parte la scala per accedere al piano superiore, è stato ribassato con pannelli di cartongesso per installare faretti a incasso, che ovviano scenograficamente alla mancanza di luce naturale. Ed è studiato per ampliarne sia le funzioni (dietro alla porta scorrevole si cela un armadio su misura per borse e cappotti, così come nella spalla colorata del muro sono alloggiati impianti tecnici) sia otticamente la profondità, grazie allo specchio (Hemnes di Ikea), con cornice sagomata laccata di bianco che riprende il gioco cromatico dello zoccolino e della fascia di stacco tra pareti e soffitto. L’andamento a correre delle doghe del pavimento di rovere naturale spazzolato e verniciato con effetto cera (Parchettificio Toscano) dà continuità allo spazio, accompagnando visivamente verso l’area giorno.

- Lo spazio unico della zona giorno, su cui si apre anche la cucina, ospita fluidamente, senza alcuna separazione, l’area pranzo e l’angolo conversazione e tv. Filo conduttore dell’insieme la scelta cromatica di base del bianco, ritmato da inserti rosa shocking e grigi di diverse tonalità, ma anche il sistema di illuminazione a soffitto progettato dai proprietari, che con pochi semplici elementi costruttivi, acquistabili in qualsiasi centro per il bricolage, dona un tocco di originalità all’insieme. Contrasto di grigio e bianco anche per il tavolo (New Edro di Bontempi) con struttura di alluminio laccato e piano di composito indeformabile (perfetto per un utilizzo quotidiano) e le sedie con schienale alto e sottili gambe di acciaio. Tutti i mobili contenitori sono stati realizzati su misura.

- L’angolo conversazione sfrutta una rientranza della parete perimetrale, sottolineata dal colore grigio della superficie di fondo, con una serie di mensole e di contenitori realizzati su misura, che permettono di trovare anche alla televisione una collocazione nascosta alla vista rispetto all’ingresso. La posizione del divano (G.B.M. Salotti) permette di separare in modo netto lo spazio dell’intrattenimento dalla zona pranzo, senza tuttavia interrompere la visuale.

- I contrasti di colore aiutano ad alleggerire la presenza nella zona giorno del volume dei servizi (bagno e lavanderia) e dello studio, che si aprono dietro alle porte (Equa /1 di Ferrero Legno) con finitura Trame Bianco (spazzolata e verniciata a poro aperto per esaltarne la matericità) e con sottile inserto orizzontale di metallo. Pulizia formale e aspetto tecnico per il climatizzatore Kirigamine Zen di Mitsubishi Electric posizionato sopra alla porta del disimpegno, quasi a riprendere, con la sua finitura argento satinato, la fascia grigia sopra ai pensili della cucina.

- La cucina interamente realizzata su misura (Cappellini cucine) è aperta sul soggiorno, ma nettamente delimitata, dal punto di vista funzionale, da una penisola-bancone e dal cambio di pavimentazione (gres porcellanato smaltato e rettificato Zero Nut della collezione Brixdesign di Brix, posato senza fughe per uniformarne la superficie e dare così un effetto più contemporaneo. Gli sgabelli al bancone sono lo stesso modello delle sedie, in versione anta, per dare continuità stilistica all’insieme. Le ampie porte-finestre d’estate permettono di “allargare” la casa raddoppiando l’area giorno.

- La penisola che completa la cucina ha funzione di bancone ma anche di area cottura, dato che è fornita di un piano a induzione Scholtès praticamente invisibile dalla parte del soggiorno. Una scelta minimalista utile per lasciare prevalere la pulizia formale del piano di quarzite, replicata anche per il lavello sottopiano, totalmente nascosto. La cappa a isola (Elica), simile a un lampadario, contribuisce a trasformare la cucina da ambiente operativo e tecnico a zona giorno.

- Il bagno della zona giorno, destinato soprattutto agli ospiti, è declinato nelle gradazioni del tortora del rivestimento di gres porcellanato e del muro sopra al rivestimento, che riprende il colore della fascia marcapiano più scura. I sanitari sospesi (collezione Starck 3 di Duravit) alleggeriscono l’effetto visivo dell’ambiente; della stessa marca il lavabo soprapiano da appoggio; la cromatura dello scaldasalviette (Flauto di Irsap) contribuisce a dare un tono tecnico all’insieme.

- Gli arredi su misura del bagno del piano di sopra aiutano a sfruttare tutto lo spazio possibile, incluso quello a lato dello specchio, che diventa un angolo per avere sottomano tutto ciò che si usa di più senza ingombrare il piano del lavabo.

- I sanitari sospesi Duravit Starck 3 nel bagno pertinente la camera matrimoniale aiutano a ridurre la percezione della superficie ridotta, così come la scelta di optare per un rivestimento chiaro e luminoso, fatto risaltare dalle tinte più scure della pavimentazione di ceramica e del mobile del lavabo, con ante laccate goffrate opache.

- La camera matrimoniale mansardata prende luce da una finestra raso tetto che ne amplia otticamente il volume e garantisce una luce naturale diffusa quasi zenitale. Il letto (collezione Design di Elli F.lli), così come i comodini, originariamente tinta noce, è stato rilaccato di bianco per aumentare la luminosità dell’insieme, aggiungendo nella testata anche un profilo di metallo che riprende il medesimo gioco grafico delle ante dell’armadio. Utili i piccoli piani sospesi di cristallo per le lampade da lettura, che “avvicinano” la luce notturna e nel contempo liberano i top dei comodini.

- Lo spazio inagibile del tetto spiovente nella camera da letto è stato brillantemente risolto grazie a una serie di armadiature su misura, che, sfruttando ogni possibile angolo della camera, ne aumentano sensibilmente la capacità contenitiva. E la diversa profondità degli armadi più alti lascia comunque un comodo spazio ai piedi del letto per l’apertura delle ante e il passaggio.

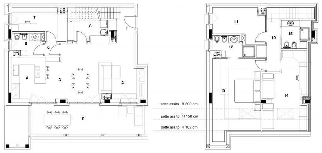
Legenda
1 Ingresso – 2 Zona conversazione – 3 Zona pranzo – 4 Cucina – 5 Bagno – 6 Antibagno – 7 Studio – 8 Lavanderia – 9 Terrazzo – 10 Corridoio – 11 Camera – 12 Secondo bagno – 13 Camera matrimoniale – 14 Camera – 15 Terzo bagno

















































