Contenuti trattati
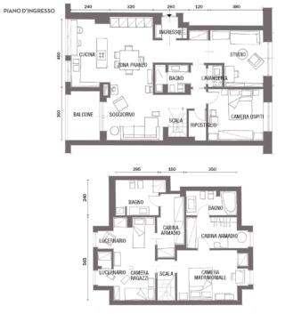
A Torino, l’edificio degli anni ’50 che ospita questa casa si trova su corso Francia, uno dei principali assi viabilistici che portano fuori città; l’affaccio è panoramico, sul parco urbano della Tesoriera con le sue storiche ville settecentesche. Con il recupero del sottotetto, il livello superiore è stato suddiviso nei diversi ambienti notte con annessi i vani di servizio. Il progetto di recupero del sottotetto viene incontro alle specifiche esigenze di una famiglia di quattro persone e prevede la possibilità di modificare nel tempo la destinazione dei singoli spazi. Al momento, infatti, un’unica grande camera è occupata dalle due bambine ancora piccole, ma in futuro ciascuna di loro potrà disporre di uno stanza privata: con il recupero del sottotetto la metratura è infatti ampia, circa 160 mq, con un piano d’ingresso più grande e un livello superiore di dimensioni più contenute. L’intervento di recupero del sottotetto ha avuto risvolti impegnativi dal punto di vista tecnico, con la realizzazione di due blocchi funzionali che contengono e mimetizzano rispettivamente il volume della scala e il bagno: una soluzione architettonica che ridefinisce i percorsi interni ma assume anche una forte valenza estetica grazie alla scelta delle finiture di rivestimento, coordinate alle tonalità e allo stile della casa.
Foto casa 160 mq con il recupero del sottotetto
Il progetto
La ristrutturazione con il recupero del sottotetto ha comportato una rivoluzione del layout ai due livelli della casa. Al piano d’ingresso (circa 95 mq), la realizzazione di nuovi blocchi in muratura ha permesso non soltanto di mimetizzare il bagno, il volume della scala e il ripostiglio, ma anche di ridefinire i passaggi interni. L’ambiente di servizio, posizionato come un’isola al centro della pianta, permette di delineare un percorso circolare che parte dall’ingresso, gira intorno all’abitazione – dal soggiorno open space alla zona notte – e riporta poi al punto di partenza. Prima del recupero del sottotetto (circa 65 mq) non sussistevano invece nello stato di fatto suddivisioni interne di rilievo che sono state decise nel corso dell’intervento: con incastri al centimetro sono state ritagliate due camere e i relativi vani di servizio.

L’area studio, adiacente alla camera degli ospiti, è aperta sulla zona d’ingresso, senza serramenti interposti. sottraendo solo pochi metri quadrati alla superficie della stanza è stato ritagliato il volume di una mini lavanderia, accessibile dal corridoio, proprio davanti al bagno.
La stanza dei ragazzi, realizzata con il recupero del sottotetto sul lato opposto rispetto alla stanza matrimoniale, è illuminata da due lucernari. Lo schema distributivo prevede il collegamento con una cabina armadio passante che fa da filtro rispetto al bagno a uso esclusivo.
La camera matrimoniale, chiusa da una porta scorrevole interno muro, è organizzata secondo uno schema molto simile a quello della stanza dei ragazzi: comunica con un guardaroba passante che precede l’ambiente di servizio dedicato.

Nell’open space del living, a lato della zona conversazione, il vano della scala in metallo che porta al piano del sottotetto è parzialmente schermato dal volume in muratura che racchiude il bagno: il sottoscala rimane libero, con il retro dei gradini a vista senza tamponamenti. Le finiture in grigio e i rivestimenti in carta da parati definiscono il carattere dell’ambiente, arredato con mobili contemporanei, lampade di design e pochi pezzi di famiglia che risaltano sugli sfondi scuri, rifiniti in grigio o rivestiti con carta da parati.

Nella zona conversazione del living il divano a tre posti, rivestito in velluto, è completo di elemento chaise-longue che forma un angolo; la lampada da terra è un modello vintage con paralume in tessuto e stelo tornito. La carta da parati in grigio con decori, che riveste solo alcune porzioni di pareti, è il modello Sonata SON 301 di Khroma. Le due applique bianche a incasso nella parete, sopra la credenza in legno massello, sono il modello Vela di Viabizzuno. I tendaggi in tessuto sono di Kvadrat.

La porta d’ingresso non si apre direttamente sull’open space della zona giorno, ma è disimpegnata da una sorta di “bussola” anticamera che funge da filtro. Uno spazio non certo sprecato: oltre a rendere meno brusco il passaggio tra esterno e interno della casa, è stato anche sfruttato a misura per inserire lungo le due pareti libere pratici elementi contenitori completi di piani d’appoggio; i moduli sono stati realizzati su disegno in modo da adattarsi alla presenza di pilastri portanti che vengono così mimetizzati. Il vano di passaggio verso il living, rivestito con carta da parati è aperto e privo di serramenti.

Gli ambienti di servizio al piano d’ingresso – bagno e lavanderia – sono stati realizzati ex novo al centro del volume aperto e sono definiti da murature di nuova costruzione; è stato quindi necessario intervenire anche sugli impianti con modifiche alla posizione delle condutture idrauliche per effettuare i nuovi collegamenti. Per l’esigenza tecnica di ottenere le pendenze minime per gli scarichi, gli ambienti di servizio, la zona d’ingresso e la zona giorno sono stati quindi rialzati di circa 15 cm rispetto all’adiacente zona studio. Il gradino è a metà del corridoio, prima del guardaroba per i cappotti ubicato lungo la parete.

Nel grande open space della zona giorno, le diverse aree funzionali risultano nettamente scandite. Tra l’area living-pranzo e la zona operativa, a segnare il passaggio è il bancone a isola con top metallizzato, sistemato in senso trasversale in corrispondenza di due porzioni di murature portanti; anche il radiatore d’arredo installato in verticale contribuisce a definire questa sorta di portale. Come si vede bene dall’immagine a destra, lo stacco tra le due zone dell’ambiente gioca anche sul contrasto cromatico nelle finiture, con la cucina identificata da una maggiore luminosità. La zona pranzo, sistemata in posizione centrale nell’open space tra l’isola e la zona office della cucina, è arredata dal tavolo quadrato con piano in vetro, realizzato su disegno, e da tre sedie nere Chair One di Magis; la quarta seduta è un modello ergonomico per bambini. Le lampade a sospensione a cono, in due finiture differenti, sono le Aplomb di Foscarini. Nel blocco funzionale a parete, la colonna forno con il multifunzione e il microonde uno sotto l’altro, è disposta in posizione centrale.

In cucina lo spazio operativo, in piena luce intorno alla vetrata affacciata sul parco, è chiuso dal volume del bancone a isola in basso e in alto dalla struttura a parallelepipedo in cartongesso che nasconde l’impianto della cappa a scomparsa. I mobili sono stati realizzati su disegno da Vibo Cucine. I rivestimenti in gres a terra e a pavimento sono della serie Azulej Nero di Mutina, design Patricia Urquiola. Oltre l’isola centrale, verso la vetrata, l’area della cucina è definita da un rivestimento ceramico decorativo, a pavimento e sulle pareti. Le piastrelle in gres hanno motivi uno diverso dall’altro: in bianco e grigio riprendono le finiture dei mobili ed enfatizzano la luminosità naturale dell’ambiente.

Tra il tavolo da pranzo e la zona conversazione, l’apparecchio di dimensioni compatte poggia su una lastra in acciaio che protegge il pavimento. La canna fumaria – obbligatoria per questi modelli – non è a vista, ma nascosta nel volume della controparete realizzata sul retro e collegata a essa tramite un tubo di raccordo. Il pellet è un combustibile del tutto naturale, costituito da scarti di lavorazione del legno pressati tra loro ad alte temperature, senza l’aggiunta di prodotti chimici né collanti; la sua combustione non produce emissioni dannose. La classe di efficienza e i consumi delle stufe a pellet sono riportati sull’etichetta energetica, obbligatoria per legge dal 2018.

Scenografica, con struttura dei gradini a vista, la scala che porta al sottotetto ha però un ingombro contenuto ed è parzialmente racchiusa e schermata in un involucro in muratura. Il vano è rivestito all’interno con la stessa tappezzeria utilizzata anche per altre pareti del living La parete che delimita il vano scala è rivestita con una carta da parati grigia caratterizzata da decori tono su tono: è il modello Sonata SON 301 di Khroma. Il parquet in rovere spazzolato è di Cerlogne Pavimenti.

La scala “in scatola”
Con il recupero del sottotetto è stata realizzata, sul lato opposto a quello della porta d’ingresso, una scala interna con andamento a U e sviluppo rettangolare in pianta in modo da colmare il dislivello occupando il minor spazio possibile: la struttura è simile a quella di una rampa a chiocciola ma con una maggiore ampiezza. In lamiera metallica piegata, verniciati color bianco sporco, i gradini sono fissati a una piastra portante centrale; il volume della rampa è racchiuso da una sorta d’involucro in muratura; le pareti che delimitano la scala sono tamponate internamente in cartongesso: scalini e corrimano sono fissati al telaio metallico cui sono avvitati i pannelli, rivestiti con una carta da parati grigia a decori tono su tono. Per seguire l’andamento della salita, i primi gradini della rampa hanno forma di piè d’oca per poi proseguire in linea.

Con la nuova distribuzione degli spazi, il bagno e la lavanderia al piano d’ingresso sono stati entrambi riprogettati ex novo. Pur essendo divisi tra loro da un breve corridoio-disimpegno costituiscono in effetti un blocco unico, identificato visivamente dall’esterno dal rivestimento in tappezzeria decorata e all’interno dalle finiture in gres porcellanato grigio. La doccia walk-in in muratura occupa a misura il lato corto del locale, quello opposto alla porta d’entrata. In questa posizione, il volume può sfruttare tre pareti e anche integrare un pilastro strutturale portante: sulla sinistra, questo delimita il varco d’accesso, privo di serramenti, del box doccia. Il soffitto è stato leggermente ribassato per consentire l’incasso di un grande soffione quadrato e anche di faretti resistenti all’acqua. Il piatto doccia è realizzato in uno speciale materiale flessibile e manipolabile che si può adattare a qualsiasi spazio e forma. Nel bagno i pavimenti e le pareti sono rivestiti con lastre in gres porcellanato dalla texture leggermente irregolare. Il lavabo d’appoggio con bordi stondati è il modello Link di Ceramica Flaminia, la rubinetteria di Bellosta. Il contenitore rotondo è della serie I Componibili di Kartell. Lo scaldasalviette d’arredo appeso a parete è il modello Kuad di Brem. Il piatto doccia incassato è Elax di Fiora.

Con il recupero del sottotetto, questo è raggiunto dalla scala di nuova costruzione. Era in origine uno spazio unico che è stato ora suddiviso per ricavare gli ambienti della zona notte. Con altezze medie elevate nonostante l’inclinazione dello spiovente e grazie all’apertura di nuovi lucernari in falda, le camere sono ariose e luminose: quella delle bambine, che insieme al bagno a uso a esclusivo occupa un intero lato del piano, è personalizzata da una tonalità rosa shocking. All’interno dell’ampia stanza la disposizione dei letti, distanti tra loro e ciascuno sistemato in prossimità di uno dei lucernari, è stata pensata in modo da avere – per le bambine – aree notte distinte e una certa autonomia reciproca. Uno dei due letti singoli si rivolge verso la finestra e ha il lato corto appoggiato alla parete alta del sottotetto. La tinteggiatura fucsia di questa sola superficie, in tonalità coordinata con i rivestimenti tessili e tanti piccoli dettagli della camera, introduce un elemento decorativo forte temperato dal bianco intorno.

Nella camera delle bambine i due lucernari si aprono paralleli sul lato dello spiovente. Sfruttando il volume tra le due aperture (foto nella pagina a destra) è stato ricavato un capiente contenitore, accessibile da uno sportello laterale; davanti è appoggiata invece una cassettiera. La poltrona nel sottofinestra, in polietilene stampato, è la Proust di Magis, design Alessandro Mendini, nella versione total white: rivisitazione contemporanea e “ironica” dei modelli classici.

Nel bagno del sottotetto a uso della camera delle bambine il lavabo sospeso in teknotop con piano d’appoggio laterale e il mobile sottostante in laccato grigio opaco sono il modello Ginza G2 di Kios con rubinetteria Lea di Paffoni. Il radiatore-scaldasalviette a parete è Perla di Brandoni. Le piastrelle in gres posate a parete fino a 120 cm di altezza sono della serie Azulej di Mutina, designa Patricia Urquiola.
Recupero sottotetti: la normativa in Piemonte
L’intervento ha comportato, come abbiamo visto, il recupero del sottotetto che in precedenza non era abitabile. In Piemonte, Regione in cui si trova la casa, il recupero del sottotetto è regolamentato dalla legge regionale 6 agosto 1998 n.21; quest’ultima fa riferimento agli edifici esistenti destinati o da destinarsi in tutto (o in parte) a residenza. Il recupero del sottotetto è consentito al solo scopo residenziale. L’altezza media interna, calcolata dividendo il volume interno lordo per la superficie interna lorda, è fissata in non meno di 240 cm per gli spazi a uso abitazione; è riducibile a 220 cm per quelli accessori o di servizio. l’altezza della parete più bassa, sotto lo spiovente del tetto, non può essere inferiore a 160 cm per i locali a uso abitazione e a 140 cm per quelli accessori e di servizio. I rapporti aeroilluminanti, che intercorrono cioè tra la superficie dei pavimenti e quella delle aperture, deve essere pari a 1/8. Il recupero del sottotetto in Piemonte è consentito solo nel caso in cui gli edifici interessati siano serviti dalle urbanizzazioni primarie e laddove siano rispettate tutte le prescrizioni igienico-sanitarie riguardanti le condizioni di abitabilità previste dai regolamenti vigenti. Il progetto di recupero ai fini abitativi deve prevedere idonee opere di isolamento termico anche ai fini del contenimento dei consumi energetici dell’intero fabbricato.

La camera nel sottotetto è attualmente la matrimoniale occupata dai genitori, ma l’idea è di utilizzarla invece in futuro come seconda stanza delle figlie, quando saranno cresciute e ciascuna avrà bisogno di un proprio spazio. Nell’ambiente, dominato dalla presenza caratterizzante delle strutture portanti in legno, la disposizione degli elementi si adatta all’andamento digradante della falda: è sfruttata anche la zona più bassa on un piccolo scrittoio. Bianco e beige dei rivestimenti tessili si uniformano ai toni chiari delle finiture. La stanza è illuminata da un lucernario installato nella zona inferiore della falda inclinata, sotto la trave portante:la mini zona studio è così in piena luce. La finestra da tetto in legno, che ha apertura manuale, garantisce un’ottima tenuta e può essere all’occorrenza schermata da un sistema oscurante integrato. A sinistra, la zona bassa è stata invece sfruttata per ricavare un volume contenitore,chiuso frontalmente da ante in legno lavorato. Nella camera matrimoniale nel sottotetto, il letto tessile con testiera morbida trapuntata rivestita in tessuto bianco di cotone e i comodini sospesi sono di Pianca; stessa produzione per l’attrezzatura interna della cabina armadio nella pagina a fianco. La zona lettura è illuminata dall’applique a braccio orientabile Tolomeo Micro di Artemide. Il parquet in rovere spazzolato è di Cerlogne Pavimenti.

Due porte a battente del tipo filomuro mettono la cabina armadio passante in comunicazione rispettivamente con la camera matrimoniale e l’ambiente di servizio. Il guardaroba è un locale a tutti gli effetti, nel quale l’illuminazione e il ricambio d’aria sono assicurati, come negli altri spazi del sottotetto, da un lucernario sulla falda inclinata. Per risparmiare spazio si sfrutta anche il sottofinestra: l’attrezzatura prevede semplici stender aperti e mini cassettiere.

Nella cabina armadio, l’attrezzatura interna con stender, ripiani e cassettiere in laccato bianco è di Pianca. Nel bagno a uso esclusivo della camera matrimoniale, che si apre in fondo con una porta filomuro, i rivestimenti decorati in gres sono della serie Azulej Bianco di Mutina. Sanitari modello Full di Azzurra.
Progetto: FD Architect, arch. Francesca Diano con Roberto Bongiovanni – https://www.francescadiano.com
Foto: Marco Menghi
Styling: Chiara Dal Canto
Tratto da Cose di Casa numero di febbraio 2019























































