Nel cuore del quartiere milanese di Città Studi, importante sede di atenei universitari oltre che di istituti ospedalieri con un’elevata percentuale di giovani lavoratori e di studenti fuori sede alla ricerca di abitazioni dalla metratura ridotta. Il palazzo in cui è stato ricavato questo mini appartamento mansardato è tipico dell’architettura milanese elegante dei primi del Novecento, con portineria e grande giardino interno. Un radicale progetto di ristrutturazione del sottotetto ha permesso di trasformare quelle che erano un tempo le stanze della servitù in piccoli “monogioielli abitativi”, con superficie variabile da 18 a 27 metri quadrati, in cui ogni dettaglio è studiato. E, anche in poco spazio, sono garantiti tutti i comfort, oltre che la definizione di un’area giorno, della cucina, del bagno e della zona notte.
Clicca sulle immagini per vederle full screen

Dietro alla nuova porta d’ingresso blindata – rivestita esternamente con un pannello a riquadri color crema che richiama lo stile dei serramenti della vecchia Milano – si apre direttamente la zona giorno dell’appartamento, su cui si affaccia il soppalco dell’area notte. Il bianco, declinato in tutte le sue tonalità, è stato scelto per dare un’idea di contemporaneità e di sobrietà diffusa ma anche aumentare la luminosità.

Le aree funzionali dell’appartamento si fondono senza soluzione di continuità, in modo da ampliare la percezione visiva. Effetto potenziato dalle ante a specchio dell’armadio, che riflettono luce e prospettive. Gli arredi sono scelti per la loro particolare flessibilità di utilizzo, come ad esempio la consolle che si apre per diventare un tavolo. Sono di Ikea il guardaroba Pax, la sedia pieghevole Terje e il tavolo a ribalta Norden di Ikea.

Il parquet prefinito di rovere sbiancato porta un tocco di calore all’insieme, senza tuttavia precludere il segno tutto contemporaneo dell’architettura e dell’arredamento. Nota calda anche per il divano dalla linea morbidamente classica, con tessuto e cuscino nei toni neutri della sabbia e della terra. La zona notte è ricavata con un soppalco a vista, accessibile con una scaletta leggera. Le nicchie illuminate con faretti a led fungono da utili mensole d’appoggio, oltre a ritmare le superfici con gradevoli giochi di luce e ombra. * Tessuto Cargo High Tech

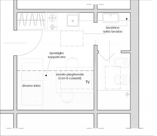
La funzionalità guida tutte le scelte di arredo del monolocale, dotato di mobili flessibili nell’utilizzo e trasformisti: libreria che serve anche da parete attrezzata per televisore e/o apparecchi tecnologici per l’intrattenimento, tavolo-consolle a ribalta, contenitori sia a giorno sia chiusi, sedia pieghevole salvaspazio. Tutto assolutamente total white per esaltarne il tratto minimalista e contemporaneo. Anche l’illuminazione è progettata in tal senso, con apparecchi integrati nelle strutture architettoniche che rendono protagonista solo la luce

L’angolo cucina è ricavato nello stesso ambiente della zona giorno, protetto alla vista dalla profondità dell’armadio. Lo spazio disponibile è studiato al centimetro, per riuscire ad ospitare lavello, piano cottura a induzione, lavastoviglie, contenitore a cassetti e pensili, oltre a una serie di utili accessori a parete per riporre utensili o piccole stoviglie. Il candore della composizione è spezzato dal piano di lavoro di rovere chiaro, che ripropone l’effetto di calda luminosità dell’essenza del parquet di rovere sbiancato. * Cucina sistema Metod di Ikea

Contiguo all’angolo cucina è l’antibagno, separato dal resto della mansarda da una porta scorrevole bianca che non interrompe la prospettiva visiva e posizionato, così come il bagno, nella porzione di sottotetto più bassa. Grazie a questo piccolo ambiente di servizio, che funziona anche da mini lavanderia, quando viene lasciata aperta la porta, non si ha la percezione della presenza di un bagno, dato che lavabo e sanitari risultano tutti nascosti.

L’antibagno, con pavimento in parquet e parete rivestita in marmo verde, ospita anche la lavatrice inserita sotto il piano d’appoggio su cui è installato il lavabo.

Tratto minimalista per l’antibagno: semplice ripiano laccato bianco con lavabo a vaschetta ad appoggio e lavatrice a vista sottopiano, specchio applicato direttamente a parete a filo muro, senza cornice o sostegno. Unica concessione al decoro il rivestimento alle pareti, realizzato con lastre di marmo verde Ming importate dall’Oriente e tagliate con spessori e dimensioni differenti.

Nel bagno del monolocale, ricavato nella parte della casa con la copertura spiovente ad altezza minore, prosegue lo stesso parquet prefinito di rovere sbiancato che caratterizza tutto il mini appartamento: una scelta che non preclude la praticità – i prodotti attuali di questo tipo sopportano anche utilizzi in ambienti umidi – e che deriva dal desiderio di dare continuità all’insieme spaziale e usare l’essenza come trait d’union delle diverse piccole aree funzionali. I sanitari sospesi e il box doccia di cristallo trasparente realizzato su misura esaltano il senso di leggerezza, controbilanciato dall’elegante gioco materico del rivestimento di marmo verde Ming, con lastre di spessore e dimensioni diverse. * Sanitari sospesi di Azzurra

L’altezza elevata del colmo del tetto ha permesso di ricavare anche un soppalco sopra la parte della zona giorno, illuminato naturalmente da un’ampia finestra a raso falda. Utilizzabile a seconda delle esigenze sia come ripostiglio, sia come zona notte, in questo secondo caso regala uno spazio privato suggestivo, aperto sul resto della casa seppure non incombente. * Finestra Velux
Progetto: arch. Fabrizio Arcoini e arch. Martina Margaria – Studio Abita, https://www.milanoabita.com
Foto: Jule Hering
















































