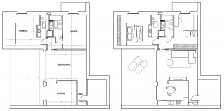
La mansarda, allʼultimo piano di una palazzina, è caratterizzata, tranne che per la camera matrimoniale che ha il soffitto piano, dal tetto a vista con travi in legno chiaro che rendono gli ambienti accoglienti e conferiscono senso di calore, effetto esaltato dalla scelta di posare il parquet a terra in tutti i locali tranne che nei bagni.
La zona giorno della mansarda si affaccia su un’ampia terrazza. Da un ingresso con uno spazio adibito a guardaroba si accede direttamente al soggiorno illuminato dalla grande vetrata scorrevole. Lʼarredamento molto semplice, divano e una base tv lineare, è pensato proprio per lasciare alla struttura stessa della casa di essere elemento predominante. La cucina separata da una quinta ma lasciata aperta per non perdere dal soggiorno la continuità delle vetrate.
Nella mansarda, i bagni – piccoli ma completi di tutto – sono studiati per sfruttare al meglio le altezze in quel punto più basse: quello principale con vasca ha anche lo spazio necessario per la lavatrice, mentre il secondo bagno ad uso privato della camera è con doccia.
La cameretta, anchʼessa mansardata e molto luminosa, è arredata con pochi semplici elementi; la stanza matrimoniale con soffitto piano è progettata con una quinta su cui poggia la testata del letto che maschera in parte la zona armadio retrostante.
Clicca per vedere full screen il progetto della mansarda dell’architetto Elisa Coffinardi

- La zona conversazione, arredata con un imbottito dal terminale a chaise longue morbido e squadrato al tempo stesso, è illuminata da una lampada da terra dal lungo stelo. Ampie vetrate affacciano sul terrazzo che amplia gli ambienti vivibili della casa con uno spazio esterno.

- Soggiorno e cucina sono divisi da una parete ma aperti uno sull’altro perché collegati da un’ampia apertura a tutta altezza. A pavimento, una superficie continua in parquet a grandi doghe.

- Nella camera matrimoniale è stata realizzata una quinta dietro il letto, che definisce la zona dedicata a cabina armadio e attrezzata con un guardaroba che si sviluppa in linea. Il nuovo tavolato divisorio permette di guadagnare una parete risparmiando spazio.

- La camera della figlia è giocata sulle tonalità del bianco ravvivato con toni del lilla e del viola, colori scelti per il mobile contenitore sospeso e per il pensile con vani a giorno e per il tappeto coordinato.

- Scrivania e sedia creano una zona studio essenziale; sullo sfondo, a parete, è stata posata una carta da parati bianca con scritte stampate a caratteri di diverse dimensioni che creano un originale gioco grafico.

- Uno dei due bagni è attrezzato con la vasca, in parte delimitata da un pannello in cristallo a delimitare un angolo per la doccia. Anche in questo ambiente è stato posato a terra il parquet.

- Per il secondo bagno, piastrelle décor a parete sui toni del grigio, colore che riprende una tonalità presente in modo elegante e discreto in vari ambienti della casa.













































