Clicca sulle immagini per vederle full screen
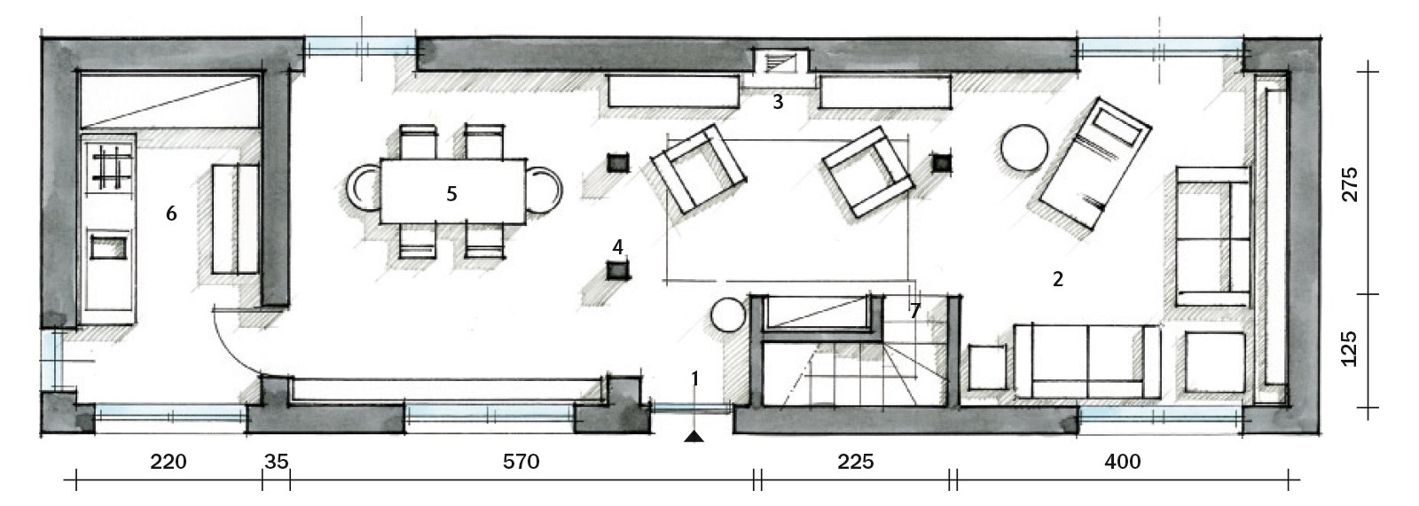
- La zona conversazione del living, in piena luce naturale, punta sul contrasto cromatico tra gli sfondi chiari e gli elementi d’arredo in tonalità decise. Rivestiti in tessuto rosso acceso, i divani su misura a due posti sono completati dalla chaise longue LC4 in pelle nera di Le Corbusier, Perriand, Jeanneret (collezione Cassina – I Maestri); è di Eileen Gray (Classicon) il tavolino a lato, in acciaio e cristallo trasparente. Al centro della parete sono disposte simmetricamente una serie di mensole a sbalzo in finitura wengé (Tisettanta); alla base è stata realizzata una panca in muratura che corre per tutta la lunghezza offrendo un ampio e profondo piano d’appoggio, rivestito in vetro.
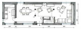
- Nel living l’ambiente centrale, tra il pranzo e il soggiorno, è arredato con due poltroncine in pelle nera, il modello LC2, disegnato da Le Corbusier nel 1928 (collezione Cassina – I Maestri). Lungo la parete è installata la struttura del camino: il focolare è un monoblocco di Edilkamin protetto nella parte frontale da un vetro termico. Listoni di rovere prefinito verniciati di bianco con tecnica a poro aperto rivestono senza soluzione di continuità il pavimento: con questo tipo di finitura la superficie risulta opaca e anticata, come coperta da una leggera velatura, ma con venature del legno a vista.
I sottili elementi verticali presenti nel living non svolgono una funzione portante ma sono stati disposti secondo una sequenza ben precisa
allo scopo di scandire le zone e individuare i passaggi tra i diversi ambienti, mantenendo allo stesso tempo l’open space. I pilastri hanno sezione quadrata con lato di 25 cm: la loro struttura, leggera e cava all’interno, prevede un telaio perimetrale metallico al quale sono fissate, sui quattro lati, delle lastre in cartongesso. Le superfici, ricoperte con una garza in tessuto – non tessuto, sono state poi rasate a gesso e tinteggiate di bianco come le pareti.
Il living aperto è suddiviso in settori, reciprocamente schermati dai pilastri. Questo ha favorito la composizione di zone a vista ma in qualche modo separate, sottolineata anche dalla disposizione dei tappeti a terra. Una scansione che si riflette sulle scelte di stile, dove imbottiti moderni sono accostati a sedute e complementi del più classico design ’900, mentre nella parte pranzo prevale una decorazione di gusto floreale che si accompagna ai mobili d’epoca. Concepita come elemento di collegamento tra gli spazi, lungo la parete è stata realizzata una struttura in cartongesso che integra il focolare del camino e in alto nasconde il condotto della canna fumaria. Di fianco è stato creato un secondo volume identico che, oltre a disegnare la finta nicchia, dà la possibilità di ricavare, nella parte bassa, un vano contenitore chiuso da un’anta vetrata.
- La zona pranzo è arredata con un tavolo da pranzo fine ’800 toscano – restaurato e verniciato di bianco – completato da sedie in stile con cuscini a fiori; e le rose sono anche il soggetto della stampa appesa a parete. L’ambiente è collegato direttamente al giardino con un’ampia vetrata scorrevole: come gli altri serramenti al piano terra, tutti realizzati ex novo in fase di ristrutturazione, ha il telaio in alluminio anodizzato e vetrocamera di sicurezza basso-emissiva.
- La cucina, arredata con una composizione in finitura bianca di Varenna Cucine, è completata da una credenza artigianale inizio ’900 che ha l’alzata formata da cassettini in ceramica di varie dimensioni.
Al piano superiore la camera matrimoniale e quelle dei ragazzi sono collegate tra loro da un corridoio con funzione di disimpegno. Al centro del percorso, il cui andamento è sottolineato dalla posa a correre dei listoni di parquet, il volume del vano scala risulta schermato da una struttura muraria che lo nasconde completamente alla vista. La profondità di questo elemento è stata inoltre sfruttata per inserirvi una doppia cassettiera realizzata su disegno, ricavando anche un piano d’appoggio nella parte superiore. Se negli altri ambienti l’illuminazione è prevalentemente ottenuta con faretti incassati a soffitto o localizzati nelle nicchie, per il disimpegno e la scala è stata invece scelta una sospensione: protetta da un diffusore opalino curvato, produce una luce diffusa rivolta verso l’alto.
- Al livello superiore il corridoio che collega le camere disimpegna anche il bagno, il cui accesso è di fronte al vano scala. In questo ambiente l’altezza del sottofinestra è sfruttata per inserire un mobile sospeso in finitura wengé: realizzato su misura, è formato da due elementi separati, congiunti da un top con il lavabo, un modello sagomato di Ceramica Flaminia. Le pareti sono rifinite a stucco con un prodotto Sikkens.
A differenza degli altri ambienti della casa, dove i muri sono rasati a gesso e tinteggiati con idropittura bianca, nei bagni è stato invece utilizzato uno stucco sintetico che offre maggiore protezione all’umidità e all’acqua. Si tratta di un prodotto che, steso a spatola in 2-3 mani, permette di ottenere una superficie a effetto lievemente nuvolato, liscia al tatto, lucida oppure opaca nella finitura. Per migliorare l’impermeabilizzazione è però necessaria una ceratura finale che deve essere periodicamente ripristinata.
- La casa è circondata da un giardino, con spazi abitabili che si articolano lungo il perimetro, evidenziati dal rivestimento a terra in pietra naturale. La zona pranzo all’aperto è stata sistemata in corrispondenza del balcone che la copre parzialmente.
L’abitazione unifamiliare, a pianta lunga e stretta, è stata ristrutturata recuperando gli spazi del sottotetto per ottenere un secondo piano abitabile per la zona notte. Ciò è stato possibile demolendo il preesistente tetto a falda, innalzandole pareti in modo da ottenere un’altezza di 270 cm e chiudendo poi con una nuova copertura, questa volta piana. Al piano terra, tutte le precedenti divisioni sono state eliminate a favore di un ambiente unico con doppio soggiorno e zona pranzo che si susseguono intervallati da elementi divisori verticali; la cucina occupa invece un locale indipendente. In posizione centrale, una scala che si sviluppa a U conduce al piano superiore. All’arrivo, un piccolo disimpegno introduce sulla destra la camera matrimoniale; sulla sinistra due stanze passanti che ospitano le camere dei ragazzi.

2 Soggiorno
3 Camino
4 Pilastro
5 Zona pranzo
6 Cucina
7 Scala


2 Disimpegno
3 Bagno
4 Camera matrimoniale
5 Camera singola

Progetto: Studio Giovanni Cattaneo, Interior Designer, Como, Tel. 031/272377, cattaneostudio@gmail.com – Foto di Cristina Galliena
























































