L’abitazione su due livelli è stata completamente ristrutturata recuperando parte del sottotetto e ridisegnando la distribuzione degli spazi. Arredata nel rispetto dell’impianto originario e con una particolare attenzione ai dettagli, offre molti spunti decorativi che evocano interni di gusto francese. Nella zona giorno, la cucina in linea è chiusa all’interno di un’armadiatura con ante in legno laccato e inserti colorati in vetro cattedrale. In camera da letto due guardaroba sono mimetizzati da ante personalizzate con tessuti e motivi floreali. Il bagno è disimpegnato da un antibagno rivestito con un insolito patchwork di carte da parati.
Clicca sulle immagini per vederle full screen
- Nella zona giorno, caratterizzata dal tetto a falde con travi a vista, l’angolo conversazione è raccolto intorno a un camino in marmo. Sopra questo, un antico specchio con cornice in gesso a decoro floreale foglia oro arreda la parete sporgente che nasconde la canna fumaria, riproporzionando l’altezza della stanza in corrispondenza del colmo del tetto.
Il salotto è arredato con una dormeuse, detta anche agrippina, e un divano tradizionale. Sono due pezzi che rispondono a requisiti sia estetici sia pratici. La prima, priva di schienale, è ideale nello spazio sottofinestra perché consente di aprire le ante. Il divano, grazie alla disposizione in diagonale, agevola invece i passaggi nella stanza e allo stesso tempo offre confortevoli sedute. Alle forme morbide ma semplici degli imbottiti si contrappone la ricchezza dei tessuti, dei tendaggi e delle passamanerie. Altrettanto preziosi sono i complementi, come le piccole console e le applique dorate, disposte simmetricamente ai lati del camino. L’equilibrio e la sobrietà dell’intero contesto derivano dalla scelta di colori tenui, con la predominanza dei toni celeste.
- Nella zona pranzo il tavolo d’epoca è completato da sedie in noce fine ‘700 con schienale in paglia di Vienna e seduta con cuscini realizzati artigianalmente. La credenza in legno decapato, sullo sfondo, è valorizzata dal dipinto antico che ritrae una natura morta, mentre sul piano sono appoggiati oggetti in argento e una lampada in vetro soffiato. La pavimentazione dell’intero appartamento, compresi i bagni, è realizzata con parquet d’acero sbiancato formato da listoni 18x2x30 cm. Cordonetti bicolore: anche le nappine che fissano i cuscini alle sedie sono in azzurro e oro, coordinate al resto dei decori tessili.
- La cucina è nascosta. La zona cottura occupa una nicchia, larga 240 cm, ed è attrezzata con una composizione realizzata su misura. È formata da due moduli laterali a colonna che contengono il frigorifero e il forno, e una parte centrale con base e pensili. Qui trovano posto le zone lavaggio e cottura, quest’ultima limitata a un piano con doppia piastra. Rifinita in laminato rosa, è chiusa da un sistema di ante a libro, con struttura in legno dipinto di azzurro e formelle in vetro variamente colorato, che aggiungono all’ambiente un gradevole contributo cromatico. Citazioni neoclassiche: i piccoli “rosoni” applicati al centro delle ante sono in gesso, come quelli che si utilizzano di solito sui plafoni.
- Il top della cucina è in multistrato rivestito da un foglio di laminato che lo uniforma al resto della composizione. La stessa finitura è utilizzata anche per l’alzatina, mentre la porzione di muro è protetta da uno strato di smalto dello stesso colore delle pareti.
- Nella camera da letto soppalcata e illuminata da un lucernario, mobili e complementi d’epoca si affiancano a un semplice sommier che è arricchito da un cuscino alla francese. Al posto della testata, al centro della parete bianca spicca la composizione di piccoli quadri sormontati da due fregi. La finestra ovale ricavata nella parete si affaccia sul soggiorno sottostante: in corrispondenza del comò tardo ‘700 e con la cornice dipinta come le travi, ha soprattutto una funzione ornamentale.
- Dalla scala illuminata si sale in camera e poi al bagno: al termine della scala che collega la zona giorno a quella notte è stato creato un piccolo disimpegno, chiuso da una porta che contribuisce all’isolamento acustico della camera.
- Per gli armadi ante creative: il guardaroba della camera, realizzato su disegno, ha ante con telaio in legno riquadrate secondo lo stile delle finestre all’inglese. La scelta di schermare l’interno con tende arricciate mitiga l’impatto della struttura a tutta parete. L’altro armadio, ricavato nella nicchia accanto alla porta d’ingresso, è invece chiuso da pannelli dipinti con soggetto floreale. Fiori a bassorilievo: La finitura delle ante e il disegno sono realizzati a mano. Sulla superficie dipinta a smalto con il pennello per aumentare l’effetto artigianale, il decoro è disegnato con un impasto di resine che definisce i contorni a rilievo; dopo averlo sfumato, i dettagli sono stati eseguiti con colori acrilici.
- La finestra a riquadri: Le tendine leggermente arricciate sono fissate all’interno delle ante mediante strisce di velcro applicate sui profili superiore e inferiore del telaio. Questo sistema risulta il più pratico quando bisogna toglierle per lavare il tessuto.
- Un puzzle di decori: Rialzato di un gradino rispetto alla camera per consentire il passaggio delle tubature dell’acqua, il bagno è preceduto da un antibagno. Lungo 180 cm e largo 240 cm, questo è attrezzato su un lato con mobile a doppio lavabo. Di fronte si trova la vasca, che è stata scelta di linea classica con piedini decorati in metallo. Si uniformano allo stile anche la rubinetteria a stella e molti altri particolari dell’ambiente, dallo specchio con cornice dorata alle maniglie a pomolo delle porte, le cui ante bugnate vengono sottolineate dalla tinteggiatura in due tonalità.
- Tappeto di piastrelle: Nel pavimento in parquet, davanti al mobile, c’è un inserto in piastrelle di cemento decorato, dette “cementine”, che riproducono il disegno di un tappeto; raccorda i due materiali un profilo bianco.
- Anche il bagno della zona giorno è suddiviso in due vani indipendenti, uno con i sanitari, l’altro con il lavabo e la doccia in nicchia. Al posto del tradizionale rivestimento in piastrelle, le pareti sono tinteggiate con smalto satinato, come al piano superiore. È una finitura resistente all’acqua e all’umidità, adatta anche per il top sottolavello in legno. Il bordo decorativo rifinito con listelli dorati è composto da ritagli di tappezzerie d’epoca. Collage di carta da parati: Una fascia con effetto patchwork è stata composta unendo carte da parati di brocantage. Resa impermeabile da un sottile strato di resina vetrificata, ha i bordi delimitati da un listello di legno dorato. Il profilo intagliato: Il ripiano sottolavabo in legno è dipinto con smalto opaco. Il bordo inferiore è smerlato, una decorazione molto semplice ma d’effetto, che si addice all’atmosfera rétro dell’ambiente.
Due livelli ben suddivisi, accomunati dal tetto a falde
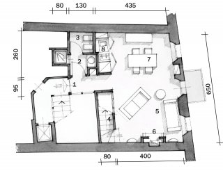
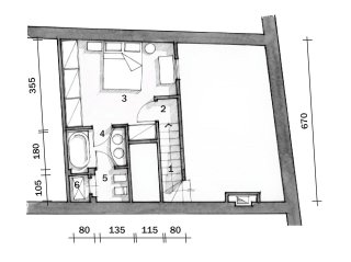
L’appartamento deriva dalla divisione di un’unica abitazione su un solo piano, cui è stata aggiunta una zona soppalcata ottenuta grazie al recupero di parte del sottotetto. ● Dalla ristrutturazione globale risulta una distribuzione razionale fra zona giorno e zona notte (ciascuna con un bagno), sistemate rispettivamente al primo e al secondo livello. ● Al soppalco si accede attraversi una scala in linea con alzate e pedate in legno, illuminate da led segnagradino. ● Il sottoscala, in salotto, è utilizzato come vano porta tv, chiuso da ante scorrevoli. ● Le opere di recupero del sottotetto hanno riportato in luce la struttura di travi e travetti in legno della copertura che, una volta ripristinata e smaltata, è stata lasciata a vista in tutti gli ambienti. ● Una scala conduce al livello superiore con la camera da letto. Da questa stanza, attraverso un antibagno rialzato con un gradino, si accede al bagno, attrezzato con una minilavanderia sistemata di fronte ai sanitari.
Piano terra:


Soppalco

Progetto d’interni: Giuseppe Tucci, Via Brunenghi 313, Finale Ligure (Sv) Tel. 019/693495 Foto di Rossella Murgia































































