In precedenza adibito a locale di sgombero, il sottotetto di questo appartamento al quarto piano di un palazzo milanese è stato completamente trasformato grazie alla possibilità di sopralzare la quota del colmo della copertura di oltre due metri. Si è così potuta ricavare un’ampia zona notte, con due camere da letto dotate ciascuna di cabina armadio e di bagno, collegata al preesistente piano sottostante da una graziosa scala a chiocciola in stile Liberty (recuperata da un rigattiere e riutilizzata dopo averla restaurata e riverniciata) e da una scenografica passerella interamente vetrata.
La nuova struttura portante del tetto, di carpenteria metallica lasciata a vista, conferisce al piano superiore un carattere vagamente industriale, trasformandosi strategicamente qua e là in dettaglio decorativo. Un aspetto controbilanciato dalla presenza fisica dei setti murari del piano destinato alla zona giorno, smaterializzati con tagli strategici e con l’uso sapiente della luce naturale, il vero e proprio componente architettonico trasformato in protagonista di ogni ambiente della casa.
Clicca sulle immagini per vederle full screen
Il livello inferiore dell’appartamento, situato al quarto piano, è adibito interamente a zona giorno, con ambienti luminosi separati solo da quinte ricavate smaterializzando parzialmente la struttura muraria portante. Il parquet scuro fa risaltare il candore geometrico delle partizioni e crea continuità tra i diversi spazi funzionali. Anche il lungo corridoio d’ingresso, di scorcio sulla destra nella foto, liberato da porzioni di muratura è reso più luminoso e risulta parte inclusa dell’insieme. Molti dei mobili sono di antiquariato, accostati a pochi pezzi contemporanei, come ad esempio il tavolo da pranzo e il lampadario.
- A metà del corridoio di ingresso una nicchia triangolare – ricavata aprendo la muratura perimetrale portante e sostituendola con una vetrata ad angolo – crea una piccola elegante area relax, affacciata sul verde del terrazzo. La panca di legno della seduta, il cui candore è spezzato dai cuscini etnici, serve anche per celare un basso calorifero, funzionale per contrastare il possibile sbalzo termico invernale causato dalla presenza della vetrata.
- Come collegamento tra il piano sottostante e la mansarda è stata scelta una scala chiocciola di epoca Liberty recuperata da un rigattiere e fatta restaurare, verniciandola in un contemporaneo colore bianco: una buona soluzione che ingentilisce la struttura portante del nuovo piano mansarda e nel contempo dona un tocco d’antan all’insieme.
- Il piano mansarda, destinato alla zona notte, è stato realizzato a nuovo alzando il colmo del tetto di oltre due metri, al fine di rendere abitabili gli ambienti sottostanti. La struttura portante di carpenteria metallica – che riduce sensibilmente gli incrementi di carico della nuova copertura rispetto ad altre soluzioni ingegneristiche – è lasciata volutamente a vista, per sottolinearne l’aspetto architettonico. Una scenografica passerella di cristallo e ferro verniciato anch’esso di bianco collega la scala a chiocciola con il solaio finito a parquet. In stile con l’aspetto vagamente industriale dell’involucro, i faretti “tecnici” Le Perroquet de IGuzzini, nati per il Beaubourg di Parigi.
- La camera delle bambine, posizionata sul fondo della zona notte, sfrutta la luce di due ampie aperture rasofalda e come nel resto della mansarda lascia vedere tutti gli elementi strutturali metallici serviti a sopralzare la copertura. Una scelta progettuale che dà carattere all’insieme e nel contempo alleggerisce la percezione della struttura portante, interamente declinata nei toni luminosi del legno chiaro e del bianco, ad eccezione del sobrio e austero armadio di antiquariato.
- Grande luminosità per la camera matrimoniale, posizionata nel sottotetto all’esatto opposto della camera delle bambine. Anche qui contrasti decisi dati dagli arredi in gran parte d’epoca e dai dettagli metallici del nuovo telaio metallico della copertura, trattati quasi come decorazioni architettoniche. Più discreta l’illuminazione artificiale, lasciata a piccole lampade puntuali, sia di antiquariato, come le due abat-jour gemelle sul comò, sia contemporanee, come l’esile stelo snodato sul comodino.
- La parete di fondo della camera, rivestita completamente con lastre di specchio, aiuta ad ampliare la prospettiva e soprattutto a moltiplicare i riflessi di luce naturale delle due grandi finestre a rasofalda quadrate. Una soluzione che smaterializza i confini strutturali dell’ambiente e rimanda all’infinito anche le trasparenze luminose della passerella di approdo e della balaustra di cristallo trasparente. La scelta di un sommier privo di testata e di volume sottostante contribuisce a focalizzare l’attenzione sui pezzi di arredo d’antiquariato e su un quadro in posizione volutamente defilata con cornice dorata ovale.
- Mix armonioso tra presente e passato per la cucina, affacciata su un piccolo spazio aperto separato solo da una parete vetrata per potenziarne la luminosità: la nuova cucina Ikea fronteggia il vecchio armadio della nonna, utilissimo come dispensa e per riporre stoviglie e servizi a vista. Dettagli caratteristici, come il lampadario d’antiquariato, le sedie scompagnate o la lunga scala su cui appoggiare gli strofinacci, rendono l’insieme nel contempo raffinato e familiare, togliendo la “freddezza” della struttura metallica della parete vetrata.
- Grande raffinatezza compositiva per il bagno della camera matrimoniale, con una bassa boiserie di legno che incornicia la vasca, ripresa da fasce geometriche orizzontali dello stesso materiale applicate al muro. Anche in questo ambiente, come nella stanza, gli specchi aiutano ad ampliare lo spazio e a riflettere la luce della finestra rasofalda. I sanitari sospesi Ala di Ideal Standard contribuiscono ad alleggerire l’insieme, così come lo sfondato sopra di essi, che sfrutta il lungo piano di muratura come base di appoggio per prodotti di bellezza e piccoli oggetti accessori.

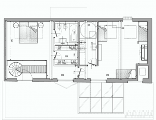
Pianta piano superiore: sottotetto con la zona notte

Progetto: arch. Vittorio Garatti con ing. Claudio Dotti
Foto: studio Vittorio Garatti



























































