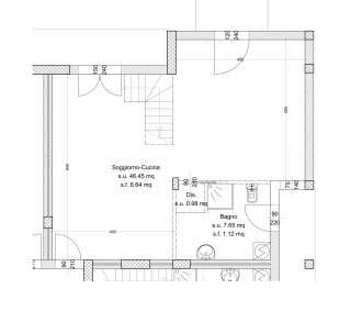
Parte di un edificio di recente costruzione, situato ai piedi della collina del Montello, in provincia di Treviso, l’appartamento dei nostri lettori Valter e Mara è stato organizzato in funzione delle loro necessità, apportando piccole modifiche distributive durante le fasi di realizzazione della costruzione stessa. Disposto su due piani (primo e secondo), è praticamente senza partizioni, al fine di lasciare lo spazio il più libero e fluido possibile; unici volumi chiusi quelli dei due bagni, uno per ciascun piano. Elemento espressivo di collegamento con la mansarda superiore è la scala autoportante con struttura metallica e gradini di legno, che funziona quasi da quinta tra il soggiorno e la cucina a vista nell’open space.
Clicca sulle immagini per vederle full screen
- Pulizia formale e praticamente total white per gli arredi dell’intera casa, la cui finitura bianco-avorio delle pareti a calce e il parquet di rovere sbiancato ne perseguono lo stile contemporaneo. L’ingresso non è protetto o separato: la porta si apre direttamente nella zona giorno per non precludere la vista e restringere lo spazio. Protagonista dell’area relax, il divano angolare bianco con chaise-longue, fronteggiato da un ampio e comodo piano d’appoggio basso, anch’esso candido.
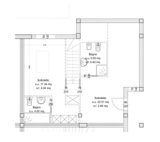
- Il collegamento tra il primo piano e la mansarda è realizzato con una scala autoportante a giorno sostenuta da un doppio fascione di acciaio verniciato con gradini di legno privi di alzata: una soluzione particolarmente espressiva, che funziona anche da quinta leggera a partizione dello spazio dell’area giorno. Sulla parete di fronte al divano una composizione attrezzata bianca risolve l’organizzazione dei libri e degli apparecchi per l’intrattenimento. ▪ Scala Flyer di Moirè Scale ▪ Libreria Novamobili
- Il segno geometrico della scala separa con un gradevole effetto vedo/non vedo il soggiorno dalla cucina, organizzata a vista e con pavimento del medesimo parquet dell’intero appartamento, nell’ottica della fluidità spaziale. Il bianco dei contenitori, dei pensili e del piano di lavoro di Corian® è spezzato dall’essenza lignea del lungo tavolo da pranzo, corredato da otto sedie dallo schienale alto. ▪ Cucina Cesar ▪ Tavolo B&B Mobili
- Legno chiaro e bianco contraddistinguono l’arredamento della cucina, aperta sul soggiorno e arricchita da complementi che ne trasformano un po’ il carattere tecnico-funzionale: il tappeto dall’inusuale effetto anticato, le sedie dallo schienale alto e una lunga panca contenitiva, versione bassa dei contenitori della cucina che diventano però in questo caso utile piano d’appoggio e seduta aggiuntiva quando necessario. ▪ Sedie Yespica di Sillc
- Per potenziare l’effetto open space e ampliare le prospettive visive, tutte le porte dell’appartamento sono scorrevoli a scomparsa, nella medesima finitura delle pareti. Una scelta estetica che si rivela anche pratica, dato che in questo modo i serramenti interni non rubano superfici utili anche negli spazi di servizio, come ad esempio il bagno lavanderia al piano inferiore.
- Toni chiari anche per la camera da letto matrimoniale in mansarda, ricavata in uno dei due spazi aperti del piano superiore, separati dalla scala di accesso. Il letto, posizionato quasi in nicchia, ha una testiera volutamente ridotta nell’ingombro ed è servito da due bianchi comodini sospesi, che alleggeriscono l’insieme e sostengono due piccole abat-jour dal gusto vagamente retrò. Minimali anche le finiture: rovere sbiancato a pavimento, come al piano sottostante, e pareti bianco-avorio, che rendono più sofisticata la biancheria e i cuscini declinati nei toni dell’écru.
- Il legno chiaro a pavimento nel bagno ammorbidisce il tono tecnico dei sanitari e del box doccia angolare, mentre la scelta di evitare qualsiasi tipo di rivestimento a parete (tranne nella doccia) riporta a un gusto contemporaneo e metropolitano. Sottolineato anche dalla linea squadrata di wc e bidet sospesi che non interrompono la continuità materica del legno a pavimento.
- Nel bagno della mansarda, illuminato dalla luce zenitale di una finestra rasofalda, la struttura portante del tetto in legno a vista è stata invece lasciata nella tradizionale tinta legno attenua il rigore contemporaneo delle linee dei sanitari e caratterizza l’ambiente in modo più caldo e accogliente.
- La seconda camera in mansarda, con letto a una piazza e mezza, funge sia da studio, sia da stanza degli ospiti ed è caratterizzata da una inusuale finestra a doppia anta a filo pavimento, che offre un gradevole scorcio sul verde. Due cassettiere alte rendono funzionale anche la parte più bassa dell’ambiente, in cui trova posto anche un semplice piano di lavoro. ▪ Cassettiere Novamobili


























































