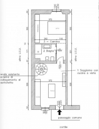
Il progetto di questo appartamento, in un palazzo d’epoca in cui gli abbaini sono stati trasformati in unità abitative con la possibilità di collegarli al piano inferiore, ha puntato su un elemento strutturale che diventasse il fulcro della casa, sia dal punto di vista funzionale, sia dell’arredo. E infatti, la scala elicoidale in ferro verniciato che collega i due livelli diventa il punto focale del locale d’ingresso che ospita la cucina a vista e la zona pranzo.
Da questo volume si accede, attraverso un disimpegno, alla camera da letto completa di guardaroba e al bagno che ha previsto un’ampia doccia chiusa da una parete trasparente.
Al piano superiore la mansarda dalla pianta a L è stata organizzata con soggiorno e annesso studio. Pareti, tetto e travi sono state dipinte in bianco opaco, e per dare più luminosità a questo spazio sono stati sostituiti gli infissi originali con lucernari di ampie dimensioni che catturano e lasciano entrare tutta la luce necessaria. Anche in mansarda, come al livello inferiore la moquette è stata sostituita con un pavimento di gres porcellanato effetto legno, uguale a quello posato in tutti i locali del piano inferiore.
I serramenti esterni sono stati sostituiti per esigenze di efficienza termica e risparmio energetico, mentre le porte interne sono state sostituite con un modello ad anta laccata bianca piena.
Clicca sulle immagini per vederle full screen

La cucina e la zona pranzo si trovano al livello inferiore mentre la scala elicoidale (Karma di PM Scale) in stile industriale che collega i due livelli dell’appartamento conduce al soggiorno e allo studio.

I mobili della cucina di Ikea in laccato bianco opaco sono rivestiti da un piano di quarzite realizzato su disegno da Bruno Rogari, con paraspruzzi dello stesso materiale; da notare il rubinetto Stick SK 176 di Paffoni e a parete l’orologio di Nava. Il tavolo rettangolare Eliot di Cattelan Italia ha top sottile in cristallo brunito e base in ferro. Intorno, sedie Victoria Ghost di Philippe Starck per Kartell. Per fare luce, lampada a sospensione Lillibet di Slamp. Sulla destra, l’ampia scala elicoidale Karma di PM Scale in ferro che porta al soggiorno in mansarda.

Nella zona pranzo, il tavolo di Cattelan con top in cristallo brunito è illuminato da uno scenografico lampadario di Slamp. Accanto, il mobile contenitore con finitura in laccato bianco, la porta che si apre sul corridoio della zona notte e la scala elicoidale Karma di PM Scale in ferro.

La stanza da bagno è organizzata con la doccia protetta da un cristallo trasparente fisso. Il pavimento è in gres effetto legno, come in tutta la casa. I sanitari sospesi sono di Ceramica Flaminia; Rubinetteria Stick di Paffoni. A parete, rivestimento in gres porcellanato di Marazzi, serie Mystone, declinato in tessere effetto 3D per la doccia.

Il corridoio porta alla camera da letto e al bagno. Sul fondo, letto Gressvik di Ikea e un tavolino in ferro e cristallo anni ’80 con funzione di comodino; specchio Songe .

Nella camera, oltre al letto tessile alla francese Gressvik è ospitato l’armadio guardaroba Pax laccato bianco, entrambi di Ikea. Per un migliore effetto estetico, per creare un effetto tutta parete, sopra l’armadio è stata realiazzata una veletta in cartongesso. Come illuminazione, sul comodino, lampada a pinza Tolomeo di Artemide e a parete, applique Garbì di Luceplan.

L’ampia scala elicoidale in ferro verniciato Karma di PM Scale, che unisce i due livelli dell’appartamento, è un elemento in stile industriale che dà personalità alla casa.

Il soggiorno in mansarda è arredato con il divano Soderhamn di Ikea in tessuto bianco sfoderabile. A completare la zona conversazione, due poltrone dell’800 rivestite con tessuto contemporaneo, il tavolino Tao di Bontempi e la lampada da tavolo di design Seria di Zonca.

Nel soggiorno mansardato la zona conversazione con coffee table in metallo di Bontempi è illuminata in modo naturale da ampie aperture realizzate nella copertura e chiuse con finestre per tetti Velux.

L’angolo studio è arredato con pezzi d’epoca: la poltroncina ‘800, la scrivania a tre cassetti e la sedia con seduta in paglia di Vienna. Design alla parete con l’applique Garbì di Luceplan.
Progettista:
Arch. Margherita Bacchetta,
margherita.bacchetta@hotmail.com; Studio Bacchetta, Milano,
tel. 02/49539760
Foto: Iacopo Federici




















































