Monolocale: la casa raddoppia

Gli interni, sfruttati al centimetro, sono valorizzati da finiture d’effetto in tonalità accese e da un sistema d’illuminazione ben progettato. Un soppalco di nuova costruzione ospita la zona notte.

Silvia Scognamiglio
A cura di Silvia Scognamiglio, Fotografa Cristina Fiorentini
Pubblicato il 05/05/2014Aggiornato il 21/09/2018
Monolocale: la casa raddoppia

Foto monolocale di 27 mq + 13 di soppalco

  • casa-berg-fiorentinI-soggiorno1
  • evi-casa-berg-fiorentini
  • casa-berg-fiorentinI-poltrona
  • casa-berg-fiorentinI-soggiorno
  • casa-berg-fiorentinI-sopplaco
  • casa-berg-fiorentinI-bagno
  • CASA-BERG-FIORENTINI
  • CASA-BERG-PIANO-2

casa-berg-fiorentinI-soggiorno1

  •  Il piccolo soggiorno che integra la cucina parzialmente a vista è connotato dalle finiture a tinte forti delle pareti e dei mobili, in un’alternanza di sfumature viola e fucsia. La zona conversazione è arredata con un divano e una poltrona rivestiti in velluto. Una serie di specchi amplifica visivamente le dimensioni dell’ambiente: quello sopra il divano proietta la luce naturale proveniente dalle aperture di fronte; l’altro, a tutta altezza, mimetizza la parete laterale che delimita la scala. In alto l’ambiente è attraversato da una trave strutturale che raddoppia in lunghezza nel riflesso dello specchio ed è attrezzata, sotto, con neon fluorescente; è di Viabizzuno, come le applique a braccio orientabile ai lati del divano.

casa-berg-fiorentinI-soggiorno

Una stanza in più nel sottotetto

Sfruttando anche in altezza lo spazio disponibile, è stato costruito un soppalco portante che permette di ricavare metri quadrati utili per la zona notte. Realizzato in corrispondenza della falda inclinata, è illuminato dall’alto attraverso un lucernario: alcuni elementi che fanno parte della struttura del tetto sono stati lasciati a vista, parzialmente mimetizzati dalle finiture a smalto. Il letto, sistemato proprio sotto lo spiovente, è un modello stile futon, costituito da un materasso appoggiato direttamente sulla stuoia in fibre naturali che ricopre il pavimento. Nella parte più alta dell’ambiente è stato invece ricavato un guardaroba salvaspazio senza ante.

casa-berg-fiorentinI-sopplaco

L’armadio a giorno: nella zona del soppalco in cui il soffitto ha altezza maggiore è stato sfruttato per ricavare uno spazio contenitore attrezzato, dotato di illuminazione interna. Ha una struttura formata da elementi in cartongesso che integra un guardaroba aperto e una colonna laterale con ripiani per i libri. Nella base, con apertura superiore, è nascosto un vano per riporre lenzuola e coperte. La barra appendiabiti in acciaio cromato è fissata da una parte al modulo libreria, dall’altra a un sostegno verticale in legno che fa parte della struttura portante della casa. I diversi elementi sono rifiniti con smalto marrone satinato all’acqua.

casa-berg-fiorentinI-bagno

  •  Il bagno, che si trova al livello del soggiorno e della cucina, è chiuso da una porta scorrevole interno muro in vetro acidato. Nell’antibagno sono stati installati il box doccia e una console con lavabo in ceramica da appoggio, modello Acqualight di Ceramica Flaminia; i sanitari occupano invece un vano separato. Come nel resto della casa il pavimento è in parquet di rovere prefinito di Domus Moquette.

Il progetto della casa piccola di 40 mq, con soppalco sopra la cucina di 13 mq

Al piccolo appartamento nel sottotetto, circa 27 mq, si accede da una scala semicircolare che, attraverso un vano aperto, immette nel soggiorno.
● L’ambiente comprende la zona conversazione e la cucina a vista, parzialmente schermata da porzioni di pareti.
● Il piano è stato in parte lasciato a doppia altezza, in parte ribassato da un soppalco di nuova costruzione realizzato sopra la zona cottura.
● Vi si accede con una scala che ha la pendenza e l’ingombro dei modelli a pioli, ma gradini più ampi. Dalla parte del bagno l’altezza del sottoscala è stata sfruttata per inserire il box doccia.
● Il livello sopraelevato, circa 13 mq, è occupato da una piccola camera e, all’estremità opposta, dalla cabina armadio, raggiungibile con una passerella in vetro protetta da balaustra.casa-berg-fiorentinI-poltronaL’ingresso si trova a un livello leggermente inferiore dell’abitazione. Il vano aperto che dà accesso al soggiorno si raggiunge salendo alcuni gradini.

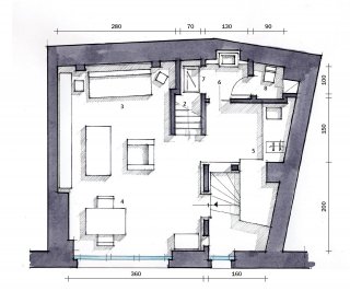
Piantina Piano terra 

CASA-BERG-FIORENTINI

1 Ingesso – 2 Scala – 3 Soggiorno – 4 Zona pranzo – 5 Cucina – 6 Antibagno

Piantina Soppalco
CASA-BERG-PIANO-21 Scala – 2 Passerella – 3 Guardaroba – 4 Letto – 5 Armadio a giorno

Progetto: arch. Gianmarco Cavagnino, https://www.gianmarcocavagnino.com

Foto di Cristina Fiorentini

Iscriviti alla nostra newsletter

Riceverai una volta alla settimana una mail con i più significativi articoli del nostro sito divisi per categoria. Riempi il form col tuo indirizzo mail e sarai automaticamente iscritto alla newsletter.
Come valuti questo articolo?
12345
Valutazione: 0 / 5, basato su 0 voti.
Avvicina il cursore alla stella corrispondente al punteggio che vuoi attribuire; quando le vedrai tutte evidenziate, clicca!
A Cose di Casa interessa la tua opinione!
Scrivi una mail a info@cosedicasa.com per dirci quali argomenti ti interessano di più o compila il form!