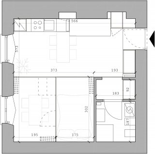
Per rendere pienamente vivibile e funzionale il piccolo bilocale di poco più di 30 mq netti si è puntato durante la ristrutturazione su soluzioni su misura di massima flessibilità. Si è così creato un ambiente, pur nei minimi spazi disponibili, accogliente, personalizzato e funzionale alle svariate attività quotidiane.
La ripartizione degli spazi tra living e zona notte è stata realizzata tramite partizioni mobili che vanno a formare una parete lunga quanto l’intero appartamento e sono apribili e chiudibili in base alle necessità del momento. In questo modo si è sfruttato interamente lo spazio a disposizione, come per esempio quello sotto il letto: alzando il pianale che lo sostiene “si aprono” contenitori che vanno a formare un’originale “cabina armadio”. Sia gli elementi mobili, sia quelli fissi sono stati realizzati artigianalmente su misura, utilizzando lo stesso materiale: listelli in essenza di frassino naturale.
Due ampie finestre sulla parete perimetrale esterna che dà sul giardino assicurano abbondante illuminazione al bilocale. Nella zona living si è scelto per le pareti un colore bianco luminoso, mentre nell’area privata si è optato per tonalità di grigio combinate con il colore naturale del legno di frassino di mobili fissi e divisori mobili.
Clicca sulle immagini per vederle fullscreen. Più sotto trovi le immagini commentate
Nel piccolo bilocale la parete, lunga poco più di 5,50 metri, è stata completamente attrezzata con elementi fissi: i mobili della cucina, la panca con imbottiti che funge da divano e all’occorrenza da letto, alcuni armadi e contenitori. Tutti i mobili, così come i pensili della cucina, sono stati realizzati su misura con listelli di massello in essenza di frassino naturale, molto chiara. A caratterizzare ogni elemento l’assenza di maniglie, sostituite da fori di diverse dimensioni che permettono l’apertura e la chiusura delle ante.
Lo spazio del living è delimitato da una parete mobile apribile lunga quanto l’intero bilocale, costruita nella stessa finitura della cucina e dei mobili contenitori e con lo stesso sistema a fori per l’apertura e la chiusura. Le pareti libere sono state tinteggiate di bianco, colore utilizzato anche per gli infissi della finestra, il radiatore e le tende leggere che cadono morbidamente a terra.
Il particolare mostra come si aprono le partizioni mobili. I fori non rappresentano soltanto un caratteristico segno distintivo e non sono funzionali soltanto all’apertura e alla chiusura, ma permettono anche una migliore aerazione dello spazio dietro la parete.
Anche il più piccolo spazio disponibile è stato sfruttato e attrezzato con mobili contenitori molto compatti, suddivisi al loro interno da ripiani. Alcuni si aprono tradizionalmente a battente, come gli armadi; i pensili della cucina invece hanno un’apertura a vasistas. Anche l’intero spazio dell’entrata è incorniciato da mobili contenitori.
Una sezione della ripartizione mobile, composta di ante che scorrono tramite ganci su binari fissati al soffitto e si richiudono a soffietto, lascia libero uno spazio aperto alla luce proveniente dalla seconda finestra del bilocale con vista sul giardino.
La porzione mobile aperta è in questo caso quella che offre l’accesso alla zona notte cui si sale tramite una piccola scala. Anche le pareti mobili che delimitano la stanza da letto scorrono su binari e sono dotate di fori di differenti misure utili sia per l’aerazione sia per l’illuminazione della camera.
La prospettiva dall’interno della camera mostra bene come funziona il meccanismo d’apertura delle pareti mobili della zona notte.
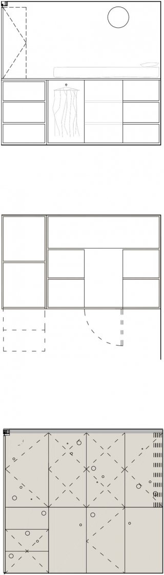
Una volta aperte completamente le pareti mobili della camera, si disvela il letto, un materasso futon che poggia su un piano anch’esso in legno massello in essenza frassino. Il piano è la parte superiore di una struttura sottostante suddivisa in spazi contenitori. Il soffitto e la parete perimetrale di fondo sono dipinti in tonalità nella scala del grigio, dal più tenue fino al più saturo, adatte al riposo notturno.
Il piano su cui poggia il futon è sollevabile. Una volta alzato, rimane aperto grazie a un sistema con pistoni a stantuffo, in questo modo si può accedere alla “cabina armadio” orizzontale realizzata con divisori e ripiani per biancheria e capi d’abbigliamento. Tutti gli elementi interni sono di colore bianco, così come gli interni dei mobili e dei contenitori fissi della cucina-soggiorno.
Nello spazio largo circa 2 metri tra la zona notte/guardaroba e la parete perimetrale dell’abitazione che dà sul giardino è sistemato un lungo tavolo il cui piano, anch’esso in legno essenza frassino, sfrutta grande parte della lunghezza disponibile di circa 3 metri. Questa zona è ben illuminata dalla luce naturale proveniente dall’ampia finestra. Anche in questo caso le tende bianche di tessuto leggero garantiscono massima luminosità all’ambiente.
Progetto: PLANAIR®, Arch. Cesare Galligani, https://www.planair.eu
Foto: Luca Broglia































































