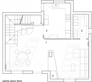
Nell’abitazione che si sviluppa su due piani sono stati abbinati i materiali della tradizione campana, come i pavimenti smaltati e la pietra lavica, ad arredi dalle forme modernissime. La presenza di un camino con canna fumaria ad angolo e di un pilastro posto al centro del living di 50 mq, che condizionavano l’intero ambiente, è stata risolta durante la ristrutturazione grazie a un elegante “nastro” in pietra lavica. Con questa nuova struttura si sono “uniti” camino e pilastro, creando un’ideale divisione tra l’area conversazione e quella pranzo senza per altro rinunciare a uno spazio aperto e dinamico.
Per la scala, anch’essa realizzata in pietra lavica, si è trovata una soluzione originale con un parapetto formato alla base da mobili realizzati su misura che fungono da madia da un lato e da mobili contenitori dall’altro lato; salendo si è invece usato un parapetto in cristallo.
Nel living, cui è annesso anche un bagno, sono stati scelti per i rivestimenti e gli arredi colori freddi, come il bianco, il ghiaccio e la carta da zucchero. Le pavimentazioni lucide rafforzano lo stile futurista dell’ambiente, mentre le controsoffittature “tagliate” e illuminate rimandano ad ambientazioni spaziali.
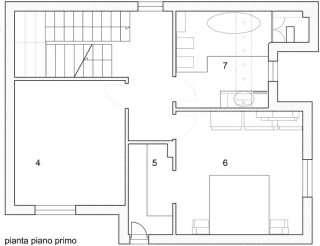
Nelle camere al piano superiore il pavimento ceramico lucido lascia posto al parquet, mentre nel bagno si sono abbinati rivestimenti in ceramica smaltata blu a mobili in legno su misura dalle forme sempre avveniristiche. Anche in questo ambiente l’accostamento di materiali della tradizione e linee moderne è in perfetta armonia.
Clicca sulle immagini per vederle full screen. Più sotto, trovi le immagini commentate.
▪Intorno al pilastro al centro del living è stata realizzata una specie di fascia di pietra lavica lucida, un materiale tipico della tradizione campana. La fascia collega idealmente il pilastro al camino con la canna fumaria che si trova sull’angolo. Questa struttura è ideale per contenere il televisore e funge anche da divisorio tra l’area conversazione e quella pranzo, senza creare barriere o chiusure, trattandosi di un elemento aperto.
Pietra lavica: Il basalto lavico deriva dal processo di solidificazione della lava vulcanica. Si tratta di una pietra di colore nerastro molto durevole, indistruttibile e resistente agli sbalzi termici utilizzata anche per gli arredi d’interni, per esempio per piani di lavoro in cucina, top in bagno, rivestimenti per pavimenti, scale e camini. Può essere lavorata sulla superficie a vista in modo da renderla lucida.
▪La fascia in pietra lavica al centro del living poggia su un mobile contenitore di colore bianco, come il pilastro, dotato di diverse ante visibili anche nella sua parte anteriore. Le superfici della fascia si possono usare come piani d’appoggio per oggetti di decoro da lasciare a vista.
▪La zona conversazione, in cui campeggia un divano in pelle ad angolo con isola, è evidenziata da tagli della controsoffittatura illuminati con LED. Davanti al divano è sistemato un tavolino con piano in cristallo dalle forme squadrate e lineari come quelle che caratterizzano gli arredi e i complementi d’arredo di tutto il living. Per tutta la zona giorno è stato scelto un pavimento smaltato dalle tonalità chiare, tipico rivestimento della tradizione campana. A decorare la parete vi sono soltanto un radiatore a tubi e un quadro moderno che, insieme ai cuscini del divano, dà una nota di colore all’ambiente. * Divano di Samoa * Tavolino di Presotto * Radiatori di Brem * Quadro di Jean Claude * Pavimento di Antiche Fornaci D’Agostino
▪Dalla zona conversazione si accede attraverso una porta a scomparsa a un piccolo bagno caratterizzato da piastrelle a parete di piccolo formato in svariati colori, ripresi in parte anche dal pavimento e dall’arredo bagno.
▪Anche la zona pranzo è delimitata dai tagli illuminati nella controsoffittatura, sotto la quale è sistemato un ampio tavolo rettangolare di colore bianco cui sono state accostate sedie trasparenti. Alle pareti si alternano, come in tutto il living, i colori freddi del bianco e della carta da zucchero che, insieme alle tonalità ghiaccio di alcuni accessori e complementi, contribuiscono a dare un tocco avveniristico a tutto l’ambiente. * Tavolo e sedie di Calligaris
▪I mobili bianchi dalle moderne forme geometriche che abbracciano la scala sono stati realizzati artigianalmente su misura. Si sviluppano in diverse altezze, andando anche a formare il parapetto alla base della scala, che in parte serve anche da madia per la zona pranzo. * Mobili su misura di Studio merA architetti
▪La scala, anch’essa realizzata in pietra lavica, porta alla zona notte al piano superiore, dove si trovano due camere e un bagno. Nella parte inferiore della scala il parapetto è formato da mobili; salendo è invece in cristallo.
▪Nella camera con guardaroba il parquet si sostituisce alla pavimentazione vetrificata. Anche qui sono riprese sia per le pareti sia per la biancheria del letto le tonalità del bianco e della canna da zucchero che caratterizzano il living. La struttura in legno del letto a sua volta armonizza bene con il colore caldo del pavimento in legno. Di gusto futurista sono la scenografica lampada a soffitto e l’opera d’arte appesa sopra la testata del letto.* Letto e complementi di Presotto * Lampade di Flos * Quadro di Maddalena Sardellino
▪In bagno sono stati utilizzati rivestimenti a parete e a pavimento lucidi, di grande impatto e tutti giocati nelle tonalità del blu. Le piastrelle ceramiche a parete sono decorate con motivi floreali tradizionali, mentre le forme geometriche del mobile lavabo in olmo realizzato artigianalmente e dell’illuminazione ribadiscono il gusto minimale, quasi “cosmico” che caratterizzano tutta l’abitazione. * Mobile lavabo su misura disegnato da Studio merA architetti e realizzato da falegnameria Passariello * Rivestimenti di Antiche Fornaci D’Agostino
▪Tradizione e forme moderne si alternano, in perfetta armonia, in tutto l’ambiente bagno. Le forme sinuose della vasca ovale freestanding con rubinetteria a pavimento si abbinano bene alle linee avveniristiche del mobile su misura ad angolo. Anche in questo ambiente, come in camera, si è utilizzato il legno in una tonalità chiara che si accompagna bene al bianco delle pareti e dei sanitari e al blu dei rivestimenti. * Rivestimenti di Antiche Fornaci D’Agostino * Mobile ad angolo su misura disegnato da Studio merA architetti e realizzato da falegnameria Passariello * Vasca di Cristalplant
Foto: Architetto Antonio Olderigi Mauriello





























































